shvedmax Опубліковано: 30 липня 2014 Автор Поділитись Опубліковано: 30 липня 2014 Спасибо,за Ваше мнение,это рабочий ещё вид,так сказать,общая концепция,возможно,камень будет только на цоколе. Посилання на коментар Поділитися на інших сайтах More sharing options...
shvedmax Опубліковано: 1 серпня 2014 Автор Поділитись Опубліковано: 1 серпня 2014 Подошли к перекрытию.С начало залили колонны и там где будут опираться длинные балки заменили кирпич на железобетонную подушку 510*380*140 с армировкой 8 арматуры с шагом 100 на 100мм сверху и снизу,так же в доме начал расти "стояковый лес" 4 Посилання на коментар Поділитися на інших сайтах More sharing options...
shvedmax Опубліковано: 1 серпня 2014 Автор Поділитись Опубліковано: 1 серпня 2014 места где заменил кирпич на железобетон 1 Посилання на коментар Поділитися на інших сайтах More sharing options...
shvedmax Опубліковано: 1 серпня 2014 Автор Поділитись Опубліковано: 1 серпня 2014 Устал от дел бетонных,думаю,погуглю я плитку в ванную и нашёл,ну просто,обалденную даму.Жене дал задачу оформить и выделить место шедевру,она пока против,выкладываю "изюменку". 3 Посилання на коментар Поділитися на інших сайтах More sharing options...
shvedmax Опубліковано: 7 серпня 2014 Автор Поділитись Опубліковано: 7 серпня 2014 Сегодня залили перекрытие,дом становится далеко не бюджетный 1 Посилання на коментар Поділитися на інших сайтах More sharing options...
svettl Опубліковано: 7 серпня 2014 Поділитись Опубліковано: 7 серпня 2014 Сегодня залили перекрытие,дом становится далеко не бюджетный Да одноэтажники свыше 140 кв ваще не бюджетные, одна крыша 20 к уе, но комфортныеее Посилання на коментар Поділитися на інших сайтах More sharing options...
shvedmax Опубліковано: 7 серпня 2014 Автор Поділитись Опубліковано: 7 серпня 2014 Да одноэтажники свыше 140 кв ваще не бюджетные, одна крыша 20 к уе, но комфортныеее Спасибо,Вам за поддержку Посилання на коментар Поділитися на інших сайтах More sharing options...
shvedmax Опубліковано: 8 серпня 2014 Автор Поділитись Опубліковано: 8 серпня 2014 Жара,езжу на стройку ухаживать за бетоном,думаю,ещё пару дней и перекрытие зацветёт:D Посилання на коментар Поділитися на інших сайтах More sharing options...
shvedmax Опубліковано: 8 серпня 2014 Автор Поділитись Опубліковано: 8 серпня 2014 Ухаживал,ухаживал и всё равно усадочные трещины есть местами,подскажите критично ли это на перекрытие? Посилання на коментар Поділитися на інших сайтах More sharing options...
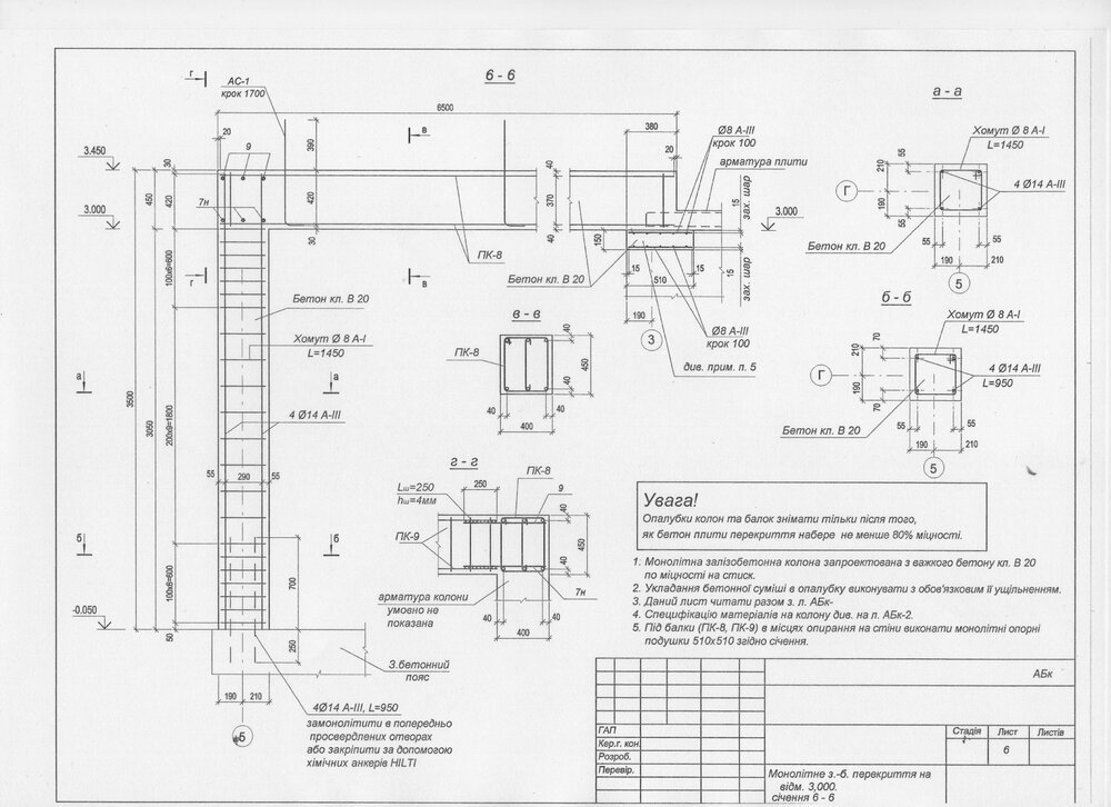
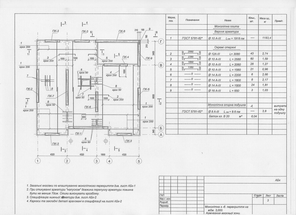
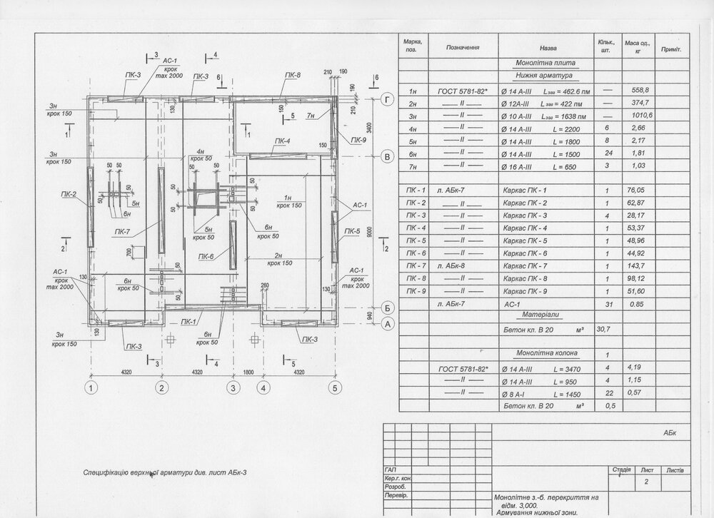
shvedmax Опубліковано: 8 серпня 2014 Автор Поділитись Опубліковано: 8 серпня 2014 Бетона ушло 30 кубов,высота перекрытия 150мм,арматуры ушло немерено,конструктор непобедим,кружлял возле него,давай там упростим,там шаг увеличим и был послан в сад на стройку с чертежами,выкладываю.Как узнал,что перемычки залил сам,а не купил готовые,предложил продублировать балками и залить вместе с перекрытием. Продублировали только большие пролёты. 1 Посилання на коментар Поділитися на інших сайтах More sharing options...
shvedmax Опубліковано: 19 серпня 2014 Автор Поділитись Опубліковано: 19 серпня 2014 Пока подбираю металл на крышу подумываю залить черновой пол.Из чего сделать гидроизоляцию по подбетонке перед армирующей стяжкой?спс Посилання на коментар Поділитися на інших сайтах More sharing options...
Max77 Опубліковано: 19 серпня 2014 Поділитись Опубліковано: 19 серпня 2014 Если не секрет - где именно строитесь в Житомире? Посилання на коментар Поділитися на інших сайтах More sharing options...
shvedmax Опубліковано: 19 серпня 2014 Автор Поділитись Опубліковано: 19 серпня 2014 Если не секрет - где именно строитесь в Житомире? Да,нет не секрет,Заречаны Посилання на коментар Поділитися на інших сайтах More sharing options...
shvedmax Опубліковано: 20 серпня 2014 Автор Поділитись Опубліковано: 20 серпня 2014 Поделитесь опытом из чего лучше сделать гидро-пароизоляцию полы по грунту сделал 30см щебня 20-40 трамбовка отсев 30см проливка,трамбовка далее думаю потбетонка и гидпро-пароизоляция,вот только из чего? мастика и 2 слоя рубероида или мембрана(с пупырышками) Посилання на коментар Поділитися на інших сайтах More sharing options...
shvedmax Опубліковано: 20 серпня 2014 Автор Поділитись Опубліковано: 20 серпня 2014 подземные воды на глубину 6 метров не обнаружено ,но мне рекомендуют,что пароизоляция должна быть,грибок там,сырость плитка паркет запутался немного Посилання на коментар Поділитися на інших сайтах More sharing options...
shvedmax Опубліковано: 20 серпня 2014 Автор Поділитись Опубліковано: 20 серпня 2014 с водой я понял щебень отсёк при потопе,если вдруг,а пар? с ним как? эппс можно считать пароизолятором ,если проклеить швы ? архитектор настаивает на пупырешной мембране гарантирует,что будет сухо и комфортно,завтра хочу пройтись по магазинам сколько хоть она стоит Посилання на коментар Поділитися на інших сайтах More sharing options...
Max77 Опубліковано: 20 серпня 2014 Поділитись Опубліковано: 20 серпня 2014 Да,нет не секрет,Заречаны Понял. То то смотрю места знакомые. А я на Малеванке. Добавлено через 8 минут Поделитесь опытом из чего лучше сделать гидро-пароизоляцию полы по грунту сделал 30см щебня 20-40 трамбовка отсев 30см проливка,трамбовка далее думаю потбетонка и гидпро-пароизоляция,вот только из чего? мастика и 2 слоя рубероида или мембрана(с пупырышками) Себе делал обратную засыпку цоколя песком (с проливкой и трамбовкой), поверх толстая двухслойная пленка, потом черновая стяжка, ЭППС, трубы теплого пола, чистовая стяжка, плитка. Никакой влаги и испарений не наблюдаю (при том, что у нас УГВ весной и иногда осенью равняется "0". 1 Посилання на коментар Поділитися на інших сайтах More sharing options...
shvedmax Опубліковано: 12 вересня 2014 Автор Поділитись Опубліковано: 12 вересня 2014 Добрый день,друзья.Нужен совет хочу заложить гильзу в дымоход для котла и камина.Утеплённую брать трубу или нет? 1.Котёл будет конденсационный атмосферный выброс газов через дымоход, холодный чердак 2.камин будет отопительный с разводкой по дому Добавлено через 1 минуту вентканал под котёл 270*140 на камин 270*270 Посилання на коментар Поділитися на інших сайтах More sharing options...
shvedmax Опубліковано: 12 вересня 2014 Автор Поділитись Опубліковано: 12 вересня 2014 Спасибо,собираю информацию перед походом в магазин. Посилання на коментар Поділитися на інших сайтах More sharing options...
Max77 Опубліковано: 13 вересня 2014 Поділитись Опубліковано: 13 вересня 2014 У меня конденсационник. Дымоход загильзовал нержавейкой 120мм. Под камин не гильзовал, где то метр дымоход выложен из огнеупорного кирпича, дальше с обычного. 2 Посилання на коментар Поділитися на інших сайтах More sharing options...
shvedmax Опубліковано: 23 вересня 2014 Автор Поділитись Опубліковано: 23 вересня 2014 пообщавшись с людьми и побегав по магазинам для себя решил,что газовый котёл гильзую нержавейкой AISI 202 это из недорогих кислотоустойчивых,так как в трубе в конденсат выпадают разные кислоты,и конденсата там много,дымоход для камина,если дымоход кирпичный можно не гильзовать,но для увеличения срока службы дымохода,надо гильзу,нержавейку надо брать жаростойкую,если немного добавить деньжат,то можно жаро-кислотостойкую,такую и выбрал AISI 321. Посилання на коментар Поділитися на інших сайтах More sharing options...
shvedmax Опубліковано: 23 вересня 2014 Автор Поділитись Опубліковано: 23 вересня 2014 добавлю,что получилось с пространством внутри с разных сторон,так же залили черновой пол 1 Посилання на коментар Поділитися на інших сайтах More sharing options...
shvedmax Опубліковано: 23 вересня 2014 Автор Поділитись Опубліковано: 23 вересня 2014 ещё немного 1 Посилання на коментар Поділитися на інших сайтах More sharing options...
shvedmax Опубліковано: 3 жовтня 2014 Автор Поділитись Опубліковано: 3 жовтня 2014 Начали возводить стропилку,так сказать рабочий процесс 1 Посилання на коментар Поділитися на інших сайтах More sharing options...
shvedmax Опубліковано: 15 грудня 2014 Автор Поділитись Опубліковано: 15 грудня 2014 Добрый день,друзья.Извините,что закинул тему.И так продолжаем... Работы идут медленно,так как не хочется делать тяп ляп,а дом это первый и приходиться "переспать" с каждой мелочью.Фото стропиловки,что у нас получилось. Если есть замечания выкладывайте,буду думать,спс Посилання на коментар Поділитися на інших сайтах More sharing options...
Рекомендовані повідомлення
Створіть акаунт або увійдіть у нього для коментування
Ви маєте бути користувачем, щоб залишити коментар
Створити акаунт
Зареєструйтеся для отримання акаунта. Це просто!
Зареєструвати акаунтУвійти
Вже зареєстровані? Увійдіть тут.
Увійти зараз