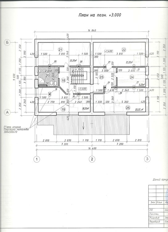
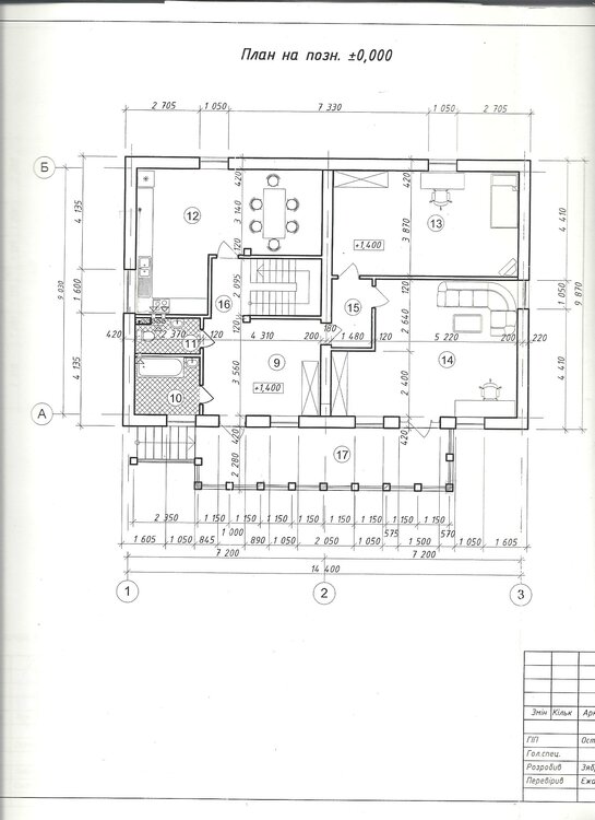
maliy.s.g Опубліковано: 18 серпня 2014 Поділитись Опубліковано: 18 серпня 2014 ПРОДАМ ПРОЕКТ ДОМА (свой) 1500 грн + консультация от фундамента до крыши, при желании всё покажу очно. Фото построенного дома вышлю на почту. Одноквартирний двоповерховий житловий будинок з мансардою . Загальна площя будинку 360 кв. м. Житлова площя будинку 147,56 м. кв. Кухня-столова 27,15 м.кв. Два санвузла 4 спальні 18,73 м.кв., 21,35 м.кв., 21,35 м.кв., 22,47 м.кв. Гардероб 7,75 м.кв. Кабінет 26,39 м. кв. Зала 30,15 м.кв. Тераса 21,54 м.кв. Площя підвалу 118,48 м.кв.(топочна,погреб,шість технічних приміщень) Фундамент збірний стрічковий із стінових фундаментних блоків по монолітній залізобетонній подушці. Стіни із полегшених перлітобетонних блоків марки М50 (200мм), засипаного утеплювача – перлітного піску марки М150 (100мм) та облицювальної цегли (120 мм) .Загальна товщина стіни 420 мм. Перекриття підвалу та першого поверху із залізобетонних панелей перекриття. 097 831 13 10 Сергей Посилання на коментар Поділитися на інших сайтах More sharing options...
maliy.s.g Опубліковано: 5 вересня 2014 Автор Поділитись Опубліковано: 5 вересня 2014 подниму темку !! Посилання на коментар Поділитися на інших сайтах More sharing options...
maliy.s.g Опубліковано: 23 квітня 2015 Автор Поділитись Опубліковано: 23 квітня 2015 подниму темку !! Посилання на коментар Поділитися на інших сайтах More sharing options...
maliy.s.g Опубліковано: 28 квітня 2015 Автор Поділитись Опубліковано: 28 квітня 2015 !!!!!!!!!!!!!!!!!!!!!!!!!!!!!! Посилання на коментар Поділитися на інших сайтах More sharing options...
Рекомендовані повідомлення
Створіть акаунт або увійдіть у нього для коментування
Ви маєте бути користувачем, щоб залишити коментар
Створити акаунт
Зареєструйтеся для отримання акаунта. Це просто!
Зареєструвати акаунтУвійти
Вже зареєстровані? Увійдіть тут.
Увійти зараз