perukar Опубліковано: 30 вересня 2014 Поділитись Опубліковано: 30 вересня 2014 Добра всем Ищу талантливого дизайнера который сможет оригинально перепланировать маленькую квартирку на современный стиль. оплату гарантирую Посилання на коментар Поділитися на інших сайтах More sharing options...
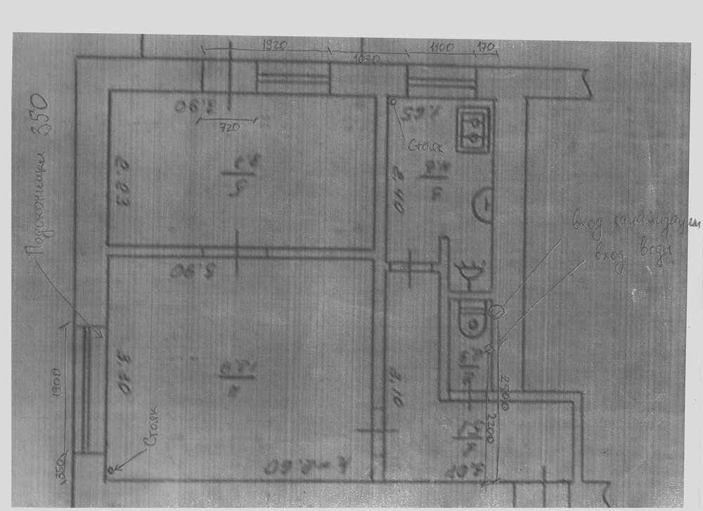
perukar Опубліковано: 2 жовтня 2014 Автор Поділитись Опубліковано: 2 жовтня 2014 Дом кирпичный (50 см ). Не тронуты будут только несущие стены, видны по тех.плану и оконные проемы. Ждем с нетерпением эскизы возможных планов квартиры Посилання на коментар Поділитися на інших сайтах More sharing options...
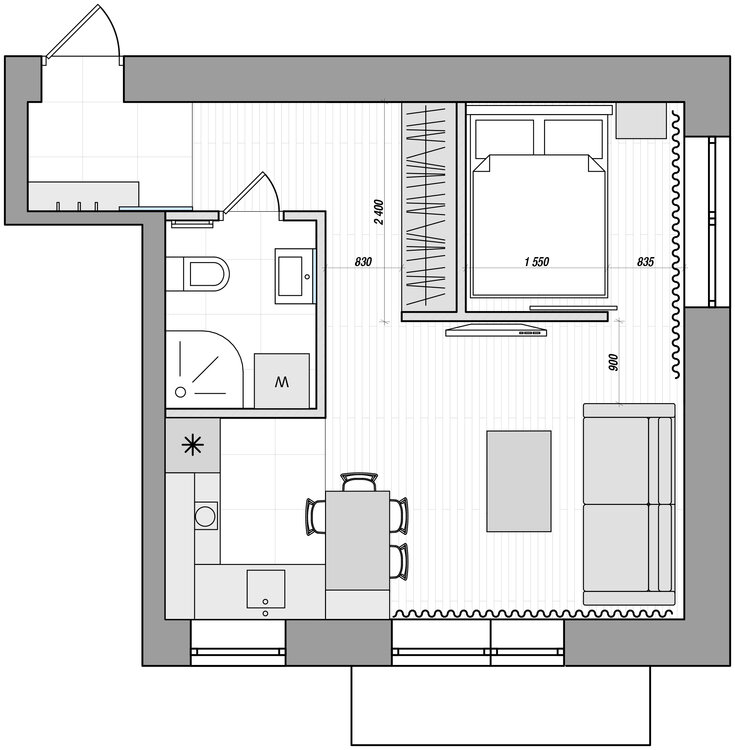
dorado_2820 Опубліковано: 2 жовтня 2014 Поділитись Опубліковано: 2 жовтня 2014 Дом кирпичный (50 см ). Не тронуты будут только несущие стены, видны по тех.плану и оконные проемы. Ждем с нетерпением эскизы возможных планов квартиры Понимаю Вам нужен просто проект перепланировки. Подетальный технический дизайн не нужен? Приблизительно интересует такой вид? Посилання на коментар Поділитися на інших сайтах More sharing options...
perukar Опубліковано: 3 жовтня 2014 Автор Поділитись Опубліковано: 3 жовтня 2014 Да нужны именно такие планы. Кто сможет сделать и за сколько? Планировка уже есть. Заранее благодарен. Посилання на коментар Поділитися на інших сайтах More sharing options...
KseniaTannet Опубліковано: 3 жовтня 2014 Поділитись Опубліковано: 3 жовтня 2014 Добрый день. Могу выполнить планировку квартиры. Ознакомится с моими работами Вы сможете на сайте tannet.com.ua/ _____________________________ С уважением,Ксения. Посилання на коментар Поділитися на інших сайтах More sharing options...
PProtsenko Опубліковано: 3 жовтня 2014 Поділитись Опубліковано: 3 жовтня 2014 Добра всем Ищу талантливого дизайнера который сможет оригинально перепланировать маленькую квартирку на современный стиль. оплату гарантирую Сделаем быстро и недорого!(цена в личное сообщение) Посилання на коментар Поділитися на інших сайтах More sharing options...
MaryAr Опубліковано: 3 жовтня 2014 Поділитись Опубліковано: 3 жовтня 2014 Ищу талантливого дизайнера который сможет оригинально перепланировать маленькую квартирку на современный стиль. Не забывайте, что есть ограничения на перепланировку (увеличение и перенос «мокрых» зон, снос перегородки между кухней и комнатой и другие популярные у дизайнеров, но «геморройные» при согласовании приёмы). Так что, общаясь с дизайнерами, будьте начеку 1 Посилання на коментар Поділитися на інших сайтах More sharing options...
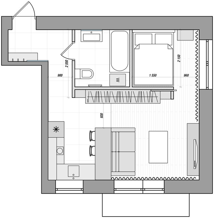
Vivatalla Опубліковано: 3 жовтня 2014 Поділитись Опубліковано: 3 жовтня 2014 Добрый день. Ваш вариант перепланировки не функционален((( Посмотрите мой вариант, думаю будет поинтересней и намного практичней. Будут вопросы звоните. 1 Посилання на коментар Поділитися на інших сайтах More sharing options...
dorado_2820 Опубліковано: 3 жовтня 2014 Поділитись Опубліковано: 3 жовтня 2014 Добрый день. Ваш вариант перепланировки не функционален((( Посмотрите мой вариант, думаю будет поинтересней и намного практичней. Будут вопросы звоните. И как будет происходить отвод канализации?) Про перенос мокрых зон не просто так говорилось. В целом неплохо выглядит! Посилання на коментар Поділитися на інших сайтах More sharing options...
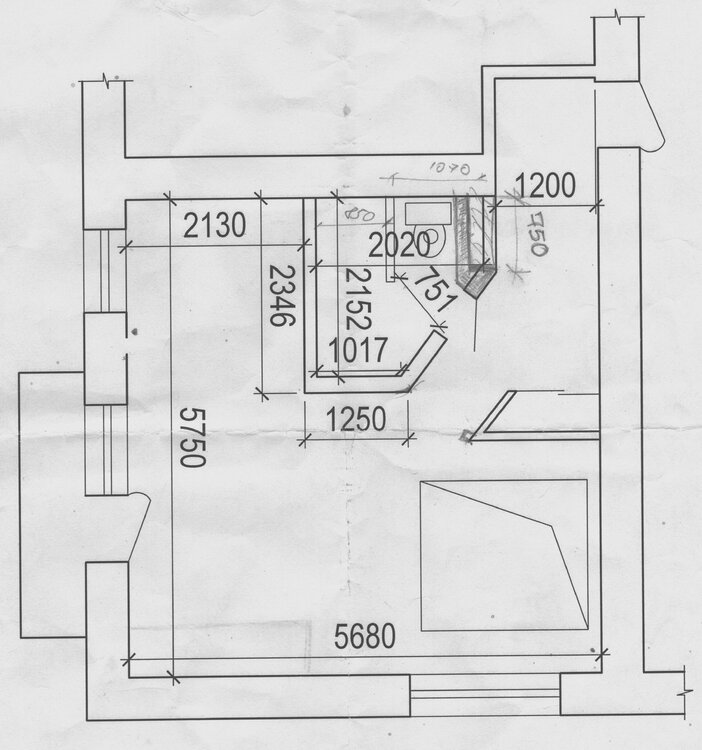
Vivatalla Опубліковано: 3 жовтня 2014 Поділитись Опубліковано: 3 жовтня 2014 Мокрые зоны переносят и переносили))) и решение принимает заказчик, согласен он на это или нет. Дизайнеры в свою очередь помогают сделать этот перенос стоящим, потраченных денег!!! Что касается канализации, но надо делать ступеньку и поднимать зону коридора и су. Посилання на коментар Поділитися на інших сайтах More sharing options...
dorado_2820 Опубліковано: 3 жовтня 2014 Поділитись Опубліковано: 3 жовтня 2014 Мокрые зоны переносят и переносили))) и решение принимает заказчик, согласен он на это или нет. Дизайнеры в свою очередь помогают сделать этот перенос стоящим, потраченных денег!!! Что касается канализации, но надо делать ступеньку и поднимать зону коридора и су. Ну понятно - ответственность дизайнер не несет за свои малевалки!) 1 Посилання на коментар Поділитися на інших сайтах More sharing options...
MaryAr Опубліковано: 3 жовтня 2014 Поділитись Опубліковано: 3 жовтня 2014 Посмотрите мой вариант, думаю будет поинтересней и намного практичней. Очень хороший вариант в смысле функционального зонирования, но проблемы могут возникнуть. Я имею в виду не инженерию. О ступеньке ТС предупреждён, значит сюрприза уже не будет (кстати, расстояние небольшое, и если демонтировать фрагмент существующей стяжки и опустить точку подключения, заменив часть коммуникаций, то можно обойтись и без ступеньки. Вопросы к ТС: - судя по планам - это не новострой? - газа, случайно, нет? Если есть, то студия исключается. - вентканалы с естественной вентиляцией? Значит для вентиляции санузла нужна "принудиловка", а это запрещено (хотя все нарушают). + нужно монтировать короб под подшивным потолком (короб + ступенька = (-20-30см). Какая там высота потолка? - узаконить такую перепланировку нереально даже за большие деньги (это типичный проблемный "самострой"). Конечно, если продавать, завещать, дарить и сдавать квартиру Вы не собираетесь никогда, то можно идти на риск. Но возникает угроза, что если внизу проживают злобные соседи, которым не понравятся звуки ремонта или (не дай Бог) ТС их затопит, то тщательно скрываемый "самострой" станет общеизвестным фактом - вот тогда начнутся проблемы. А вариант перепланировки очень хорош! Посилання на коментар Поділитися на інших сайтах More sharing options...
Vivatalla Опубліковано: 3 жовтня 2014 Поділитись Опубліковано: 3 жовтня 2014 вот вариант проще) ... и не усложняйте вы все так, господа хорошие)))) понятно что по плану который предоставлен строить нельзя, и масса вопросов для обсуждения... Просто так жалко было смотреть на уже принятую планировку, что решила помочь пока не поздно. А дальше уже владелец сих квадратных метров и сам справится если не потянет специалиста. Главное чтоб понятие современного интерьера, было действительно современным... 4 Посилання на коментар Поділитися на інших сайтах More sharing options...
Vivatalla Опубліковано: 3 жовтня 2014 Поділитись Опубліковано: 3 жовтня 2014 Ну понятно - ответственность дизайнер не несет за свои малевалки!) Заказчик !!! несет ответственность за свои пожелания... Никто, никогда и никого не принуждает, мало того предостерегает... Всегда есть выбор!!! Если Вам его не предоставили, требуйте))) Посилання на коментар Поділитися на інших сайтах More sharing options...
MaryAr Опубліковано: 3 жовтня 2014 Поділитись Опубліковано: 3 жовтня 2014 вот вариант проще) Уже ближе к реальной жизни! Если газа нет, то узаконить реально за большие деньги. Если газ есть - то проблема Эх! Если бы не эти ужасные строительные нормы - жизнь дизайнера была бы счастливой и безоблачной Добавлено через 1 минуту Никто, никогда и никого не принуждает, мало того предостерегает... Если предостерегает, то всё ОК. Посилання на коментар Поділитися на інших сайтах More sharing options...
dorado_2820 Опубліковано: 3 жовтня 2014 Поділитись Опубліковано: 3 жовтня 2014 Заказчик !!! несет ответственность за свои пожелания... Никто, никогда и никого не принуждает, мало того предостерегает... Всегда есть выбор!!! Если Вам его не предоставили, требуйте))) Если дом разрушился, виноват инженер, а не заказчик. За что отвечают и получают деньги дизайнеры - понимать отказываюсь. Добавлено через 5 минут Уже ближе к реальной жизни! Если газа нет, то узаконить реально за большие деньги. Если газ есть - то проблема Эх! Если бы не эти ужасные строительные нормы - жизнь дизайнера была бы счастливой и безоблачной Добавлено через 1 минуту Если предостерегает, то всё ОК. По-моему у дизайнеров и сейчас беззаботная жизнь. Научился рисовать розовую хрень - можно смело за это брать деньги. Не раз сталкивался с тем, что после дизайнера, инженеры выполняли кучу переделок - итог получался противоположный дизайну. Возникает вопрос: за что платят многим дизайнерам? Посилання на коментар Поділитися на інших сайтах More sharing options...
MaryAr Опубліковано: 3 жовтня 2014 Поділитись Опубліковано: 3 жовтня 2014 Никто, никогда и никого не принуждает, мало того предостерегает... Интересно, а как это предостережение выглядит на практике? (Вопрос с целью повышения квалификации). "Вот Вам, уважаемый заказчик, за Ваши деньги - вариант идеальной планировки. Но имейте в виду: так строить нельзя, потому что ..." (и перечень проблемных пунктов, в которых среднестатистический заказчик мало что смыслит, а значит, не может принять грамотное решение. Начинает работать правило "Если нельзя, но очень хочется, то - можно". А такой подход часто имеет печальные последствия... Добавлено через 2 минуты Не раз сталкивался с тем, что после дизайнера, инженеры выполняли кучу переделок - итог получался противоположный дизайну. Возникает вопрос: за что платят многим дизайнерам? За творческий подход и красивые картинки 1 Посилання на коментар Поділитися на інших сайтах More sharing options...
Vivatalla Опубліковано: 3 жовтня 2014 Поділитись Опубліковано: 3 жовтня 2014 Вы, отошли от темы) По моему в ветке идет речь о перепланировке и корректировка уже существующего плана. А Вы превращаете, доброе дело, в очередную ругань и поливание грязью дизайнеров. Вместо злобных комментариев предложите свой вариант... и я поучусь и человека порадуем)))) 4 Посилання на коментар Поділитися на інших сайтах More sharing options...
dorado_2820 Опубліковано: 3 жовтня 2014 Поділитись Опубліковано: 3 жовтня 2014 Вы, отошли от темы) По моему в ветке идет речь о перепланировке и корректировка уже существующего плана. А Вы превращаете, доброе дело, в очередную ругань и поливание грязью дизайнеров. Вместо злобных комментариев предложите свой вариант... и я поучусь и человека порадуем)))) я проектировщик. Ваш второй вариант - песня.! 1 Посилання на коментар Поділитися на інших сайтах More sharing options...
MaryAr Опубліковано: 3 жовтня 2014 Поділитись Опубліковано: 3 жовтня 2014 Вы превращаете доброе дело в очередную ругань и поливание грязью дизайнеров. Ой, извините, если что не так Ваш второй вариант - песня.! Я уже сказала в предыдущем посте, что мне нравится второй вариант Вместо злобных комментариев предложите свой вариант... и я поучусь и человека порадуем)))) Пока неизвестно - есть газ или нет - не вижу смысла что-то новое предлагать (подождём вводных от ТС). Но вызов принят Уважаемый ТС, тут неожиданно разыгрались нешуточные баталии! Есть вероятность бесплатно получить жизнеспособную перепланировку своей квартиры! Поэтому используйте свой шанс и озвучьте свои "хотелки": желаемое оборудование в ванной и кухне, предпочтения по мебели, состав семьи и т.д. Посилання на коментар Поділитися на інших сайтах More sharing options...
dorado_2820 Опубліковано: 3 жовтня 2014 Поділитись Опубліковано: 3 жовтня 2014 Короче автор нахватал бесплатных идей) Добавлено через 22 минуты Девушки, если будете делать дерево в интерьере, обращайтесь - изготовим с вашим процентом) 1 Посилання на коментар Поділитися на інших сайтах More sharing options...
perukar Опубліковано: 3 жовтня 2014 Автор Поділитись Опубліковано: 3 жовтня 2014 Спасибо за предложения Автор не хочет бесплатных идей.... Автор похоже находит специалиста который поможет с квартиркой) Короче автор нахватал бесплатных идей) Добавлено через 22 минуты Девушки, если будете делать дерево в интерьере, обращайтесь - изготовим с вашим процентом) Посилання на коментар Поділитися на інших сайтах More sharing options...
ketrin-n Опубліковано: 4 жовтня 2014 Поділитись Опубліковано: 4 жовтня 2014 Такие же планировки в доме возле меня, не далеко от севпстопольской пл. Раньше даже мысленно их перепланировала Посилання на коментар Поділитися на інших сайтах More sharing options...
avas Опубліковано: 18 жовтня 2014 Поділитись Опубліковано: 18 жовтня 2014 Пропоную свої послуги архітектора-дизайнера. Ціни від 80 грн. за м.кв. Силка на портфоліо: vpkleba.wix.com/vpkleba1 К.тел. 096 4367173 Посилання на коментар Поділитися на інших сайтах More sharing options...
ketrin-n Опубліковано: 7 грудня 2014 Поділитись Опубліковано: 7 грудня 2014 Добра всем Ищу талантливого дизайнера который сможет оригинально перепланировать маленькую квартирку на современный стиль. оплату гарантирую за такую площадь не возьмусь, а идеи подбросить могу. когда-то коллекционировала удачные проекты малогабаритных кв Посилання на коментар Поділитися на інших сайтах More sharing options...
Рекомендовані повідомлення
Створіть акаунт або увійдіть у нього для коментування
Ви маєте бути користувачем, щоб залишити коментар
Створити акаунт
Зареєструйтеся для отримання акаунта. Це просто!
Зареєструвати акаунтУвійти
Вже зареєстровані? Увійдіть тут.
Увійти зараз