Voxan Опубліковано: 13 жовтня 2014 Поділитись Опубліковано: 13 жовтня 2014 Добрый день. Нужен шкаф, фото во вложении. Интересует цена и сроки изготовления. г.Киев. Ну и желательно наличие рекомендаций. Спасибо! Посилання на коментар Поділитися на інших сайтах More sharing options...
EX-TRA Опубліковано: 16 жовтня 2014 Поділитись Опубліковано: 16 жовтня 2014 Добрый день! С какого материала хотите шкаф , и цвет профиля для раздвижных дверей? Посилання на коментар Поділитися на інших сайтах More sharing options...
olya1312 Опубліковано: 16 жовтня 2014 Поділитись Опубліковано: 16 жовтня 2014 Добрый день! С какого материала хотите шкаф , и какие фасады? Посилання на коментар Поділитися на інших сайтах More sharing options...
Voxan Опубліковано: 16 жовтня 2014 Автор Поділитись Опубліковано: 16 жовтня 2014 Добрый день. Посчитайте среднее по цене и качеству. Цвет профиля- под золото, наверное Посилання на коментар Поділитися на інших сайтах More sharing options...
Artiz Опубліковано: 16 жовтня 2014 Поділитись Опубліковано: 16 жовтня 2014 Добрый день. Посчитайте среднее по цене и качеству. Цвет профиля- под золото, наверное Прошу прощение Voxan, а Вы заявки на Натяжные потолки по такой же схеме принимаете? Или всё таки серьёзней к работе относитесь? Если желаете нормальный себе шкаф с правильными замерами и тем материалом который Вы хотите, обращайтесь О934О87О16, О9812ООО91 любая мебель под заказ с учётом Ваших пожеланий. Посилання на коментар Поділитися на інших сайтах More sharing options...
Yutxaus Опубліковано: 16 жовтня 2014 Поділитись Опубліковано: 16 жовтня 2014 Или укажите свой эл. адрес Посилання на коментар Поділитися на інших сайтах More sharing options...
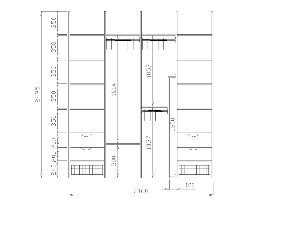
OlaR Опубліковано: 16 жовтня 2014 Поділитись Опубліковано: 16 жовтня 2014 Добрый день. Нужен шкаф, фото во вложении. Извините, что не по теме, но для чего планируется тот кусок, что 1600*100? Посилання на коментар Поділитися на інших сайтах More sharing options...
Voxan Опубліковано: 16 жовтня 2014 Автор Поділитись Опубліковано: 16 жовтня 2014 Извините, что не по теме, но для чего планируется тот кусок, что 1600*100? под гладильную доску Добавлено через 1 минуту Прошу прощение Скрыто, а Вы заявки на Натяжные потолки по такой же схеме принимаете? Или всё таки серьёзней к работе относитесь? Если желаете нормальный себе шкаф с правильными замерами и тем материалом который Вы хотите, обращайтесь О934О87О16, О9812ООО91 любая мебель под заказ с учётом Ваших пожеланий. Ну вы же профессионал в своем деле, верно? ;) вот и расскажите, что нужно для заказа шкафа. А уж я вам расскажу, что нужно для заказа натяжных потолков. Странный у вас подход к клиентам Есть личка, есть форум...спросите, что нужно для просчета шкафа и я вам отвечу. 1 Посилання на коментар Поділитися на інших сайтах More sharing options...
olya1312 Опубліковано: 17 жовтня 2014 Поділитись Опубліковано: 17 жовтня 2014 9000 грн дсп кроношпан система золото + зеркало Подробней по телефону 067-44-00633 Посилання на коментар Поділитися на інших сайтах More sharing options...
Танин Опубліковано: 17 жовтня 2014 Поділитись Опубліковано: 17 жовтня 2014 Добрый день. Посчитайте среднее по цене и качеству. Цвет профиля- под золото, наверное Добрый день! раздвижную систему на 2 двери или 4 двери....зеркало или ДСП... Посилання на коментар Поділитися на інших сайтах More sharing options...
Voxan Опубліковано: 18 жовтня 2014 Автор Поділитись Опубліковано: 18 жовтня 2014 Добрый день! раздвижную систему на 2 двери или 4 двери....зеркало или ДСП... 3 двери, зеркало+2 дсп Посилання на коментар Поділитися на інших сайтах More sharing options...
Voxan Опубліковано: 6 листопада 2014 Автор Поділитись Опубліковано: 6 листопада 2014 Тему можно закрывать, поставщика нашли , спасибо. Посилання на коментар Поділитися на інших сайтах More sharing options...
Рекомендовані повідомлення
Створіть акаунт або увійдіть у нього для коментування
Ви маєте бути користувачем, щоб залишити коментар
Створити акаунт
Зареєструйтеся для отримання акаунта. Це просто!
Зареєструвати акаунтУвійти
Вже зареєстровані? Увійдіть тут.
Увійти зараз