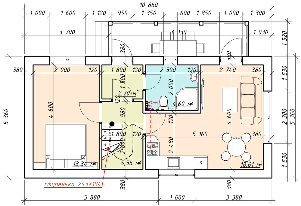
valavr Опубліковано: 7 грудня 2014 Поділитись Опубліковано: 7 грудня 2014 Дом новый, общей площадью 90 м2 (этаж + мансарда).1-й этаж: кухня/столовая-18.6 м2, спальня-13.3 м2, с/у-4.6 м2; 2-й этаж: спальня-15.5 м2, спальня-13.3 м2, с/у-6 м2. Стены - газоблок 400 мм, кровля – полимерпесчаная черепица. Инженерные сети разведены по дому. Газ(на участке), свет в доме. Септик, вода-скважина. Участок 5 соток в центре села (школа, детсад, почта, сбербанк, магазины, сельсовет, маршрутки, базарчик, церковь). Тихая, уютная улица, хорошие соседи, рядом лес. Киев 4 км (Троещина). Десна 5 км, озеро 2км (рыбалка, пляж). Метро «Черниговская» 11 км (17 мин на машине, 30 мин. на маршрутке). Цена 80000 у.е. Ввод в эксплуатацию - 2 месяца. Оплата возможна поэтапная. (ссылка устарела) 066-76-30-330 Валерий Добавлено через 1 час 47 минут Можно продать за 65.000 у.е. с участком 2 сотки Посилання на коментар Поділитися на інших сайтах More sharing options...
valavr Опубліковано: 9 грудня 2014 Автор Поділитись Опубліковано: 9 грудня 2014 Посилання на коментар Поділитися на інших сайтах More sharing options...
valavr Опубліковано: 15 грудня 2014 Автор Поділитись Опубліковано: 15 грудня 2014 Рассмотрю обмен с Вашей доплатой (1-комн. кв. в Киеве; земля в Погребах, Зазимье). Посилання на коментар Поділитися на інших сайтах More sharing options...
valavr Опубліковано: 18 грудня 2014 Автор Поділитись Опубліковано: 18 грудня 2014 Цена с учетом работ под финишную внутреннюю отделку, в том числе - отделка цоколя, благоустройство участка. Посилання на коментар Поділитися на інших сайтах More sharing options...
valavr Опубліковано: 24 грудня 2014 Автор Поділитись Опубліковано: 24 грудня 2014 Рассрочка от 2-х до 6 -ти месяцев, а может и дольше. Посилання на коментар Поділитися на інших сайтах More sharing options...
itskaterina Опубліковано: 28 грудня 2014 Поділитись Опубліковано: 28 грудня 2014 уточните что входит в цену "под финишную отделку"? что будет сделано внутри и снаружи? Посилання на коментар Поділитися на інших сайтах More sharing options...
valavr Опубліковано: 28 грудня 2014 Автор Поділитись Опубліковано: 28 грудня 2014 Что подразумевается "под финишную отделку": Стены протянуты по газоблоку (клей+сетка), полы - чистовая стяжка, потолок мансарды подшит гипсокартоном, сделаны откосы, смонтированы подоконники. Монолитная лестница. Электрика заведена в дом и разведена по дому. Отопление подведено к местам подключения котла и батарей. Водоснабжение и канализация разведены к местам установки сантехприборов. В дом заведена вода из скважины и выведена канализация в септик. Отделан цоколь, сделана отмостка. Естественно подшива "соффит" и водосточка. Посилання на коментар Поділитися на інших сайтах More sharing options...
valavr Опубліковано: 31 грудня 2014 Автор Поділитись Опубліковано: 31 грудня 2014 Можно продать за 60.000 у.е. с участком 2 сотки Посилання на коментар Поділитися на інших сайтах More sharing options...
valavr Опубліковано: 4 січня 2015 Автор Поділитись Опубліковано: 4 січня 2015 Рассмотрю обмен - авто+доплата Посилання на коментар Поділитися на інших сайтах More sharing options...
valavr Опубліковано: 6 січня 2015 Автор Поділитись Опубліковано: 6 січня 2015 Рассмотрю с меньшими показателями в отделке и, естественно, дешевле. Скажем - 74.000 куе Посилання на коментар Поділитися на інших сайтах More sharing options...
valavr Опубліковано: 10 січня 2015 Автор Поділитись Опубліковано: 10 січня 2015 Попробуем 73.000 ;) Посилання на коментар Поділитися на інших сайтах More sharing options...
valavr Опубліковано: 14 січня 2015 Автор Поділитись Опубліковано: 14 січня 2015 Актуально. В продаже. Посилання на коментар Поділитися на інших сайтах More sharing options...
valavr Опубліковано: 26 січня 2015 Автор Поділитись Опубліковано: 26 січня 2015 Поднимаем, цену не меняем Посилання на коментар Поділитися на інших сайтах More sharing options...
valavr Опубліковано: 28 січня 2015 Автор Поділитись Опубліковано: 28 січня 2015 Ввожу в эксплуатацию за месяц. Доделаю до 100% готовности за 2 месяца. Землю перепишу сразу после задатка. Оплата этапная. Посилання на коментар Поділитися на інших сайтах More sharing options...
valavr Опубліковано: 11 лютого 2015 Автор Поділитись Опубліковано: 11 лютого 2015 Актуально. В продаже. Посилання на коментар Поділитися на інших сайтах More sharing options...
valavr Опубліковано: 12 лютого 2015 Автор Поділитись Опубліковано: 12 лютого 2015 Снижаем до 69.000 Посилання на коментар Поділитися на інших сайтах More sharing options...
valavr Опубліковано: 17 лютого 2015 Автор Поділитись Опубліковано: 17 лютого 2015 Заканчиваем ввод в эксплуатацию. Посилання на коментар Поділитися на інших сайтах More sharing options...
valavr Опубліковано: 24 лютого 2015 Автор Поділитись Опубліковано: 24 лютого 2015 Актуально, в продаже Посилання на коментар Поділитися на інших сайтах More sharing options...
valavr Опубліковано: 1 березня 2015 Автор Поділитись Опубліковано: 1 березня 2015 Актуально, в продаже Посилання на коментар Поділитися на інших сайтах More sharing options...
valavr Опубліковано: 5 березня 2015 Автор Поділитись Опубліковано: 5 березня 2015 Поднимаем тему Посилання на коментар Поділитися на інших сайтах More sharing options...
valavr Опубліковано: 14 березня 2015 Автор Поділитись Опубліковано: 14 березня 2015 В продаже, рассмотрю любой обмен, даже на самое невероятное. Посилання на коментар Поділитися на інших сайтах More sharing options...
Рекомендовані повідомлення
Створіть акаунт або увійдіть у нього для коментування
Ви маєте бути користувачем, щоб залишити коментар
Створити акаунт
Зареєструйтеся для отримання акаунта. Це просто!
Зареєструвати акаунтУвійти
Вже зареєстровані? Увійдіть тут.
Увійти зараз