Перейти до публікації
Пошук в
  • Додатково...
Шукати результати, які містять...
Шукати результати в...

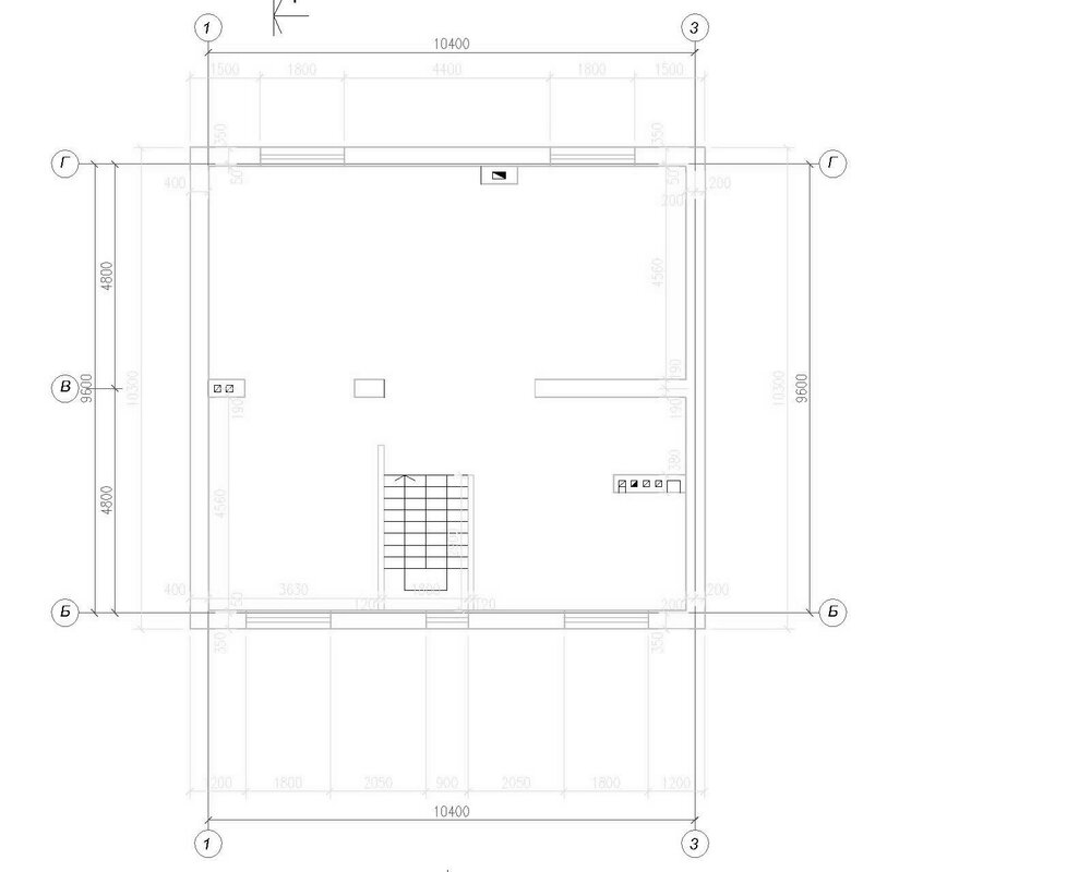
планування другого поверху

We$t

Рекомендовані повідомлення

прошу допомогти в плануванні кімнат 2 поверху, на даний момент готово те, що зображено на малюнку. Планування потрібне з розрахунку:

- 3 кімнати (2 дитячих, одна доросла, можливо одна дитяча більша, якщо буде третя дитина :) )

- гардероб

-ванна кімната

 

дякую

226472534_2.thumb.jpg.ba42149906195c070902d0a8621b7082.jpg

Посилання на коментар
Поділитися на інших сайтах

Створіть акаунт або увійдіть у нього для коментування

Ви маєте бути користувачем, щоб залишити коментар

Створити акаунт

Зареєструйтеся для отримання акаунта. Це просто!

Зареєструвати акаунт

Увійти

Вже зареєстровані? Увійдіть тут.

Увійти зараз
×
×
  • Створити...