ketrin-n Опубліковано: 20 грудня 2014 Поділитись Опубліковано: 20 грудня 2014 Квартира будет обустраиваться для семьи из с двумя детками. фото квартиры в том виде какой ее сдали строители 1 Посилання на коментар Поділитися на інших сайтах More sharing options...
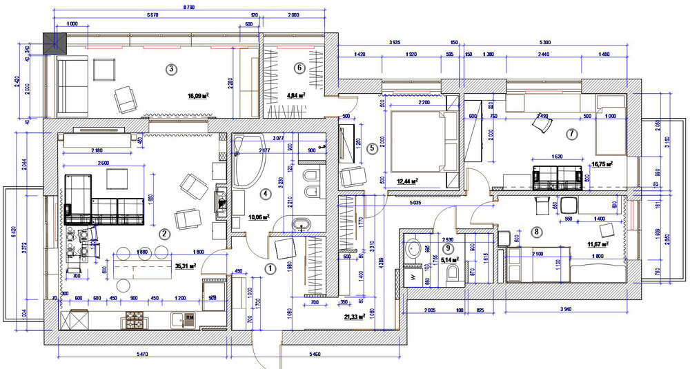
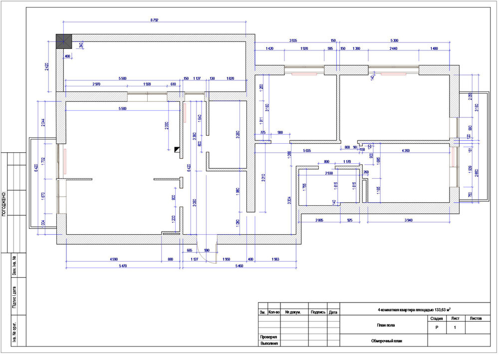
ketrin-n Опубліковано: 20 грудня 2014 Автор Поділитись Опубліковано: 20 грудня 2014 и первоначальный план 1 Посилання на коментар Поділитися на інших сайтах More sharing options...
ketrin-n Опубліковано: 21 грудня 2014 Автор Поділитись Опубліковано: 21 грудня 2014 Планировку кардинально не меняли. Я предложила убрать ненужный коридор (на первом фото), ведущий на не функциональную подобную вагончику террасу, на которую и так был еще один выход из гостиной. За счёт ненужного коридора увеличили ванну, таким образом там поместилась: большая ванна, душ, унитаз, биде, умывальник с большой столешницей, лавочка для вещей и (раздевания)одевания детей, шкафчик-пенал для хранения. со стороны спальни пробили выход на террасу, и часть этой террасы я отдала под гардероб. Так что терраса уже не такая длиннющая, ее остекляем и делаем там кабинет - по совместительству комнату отдыха или гостевую. 2 Посилання на коментар Поділитися на інших сайтах More sharing options...
ketrin-n Опубліковано: 5 лютого 2015 Автор Поділитись Опубліковано: 5 лютого 2015 выбор паркета, отдали предпочтение практичности и качеству. Паркетная доска Укр. производства, все три слоя полностью дуб., Муки выбора, выбрали ту что справа Посилання на коментар Поділитися на інших сайтах More sharing options...
ketrin-n Опубліковано: 5 лютого 2015 Автор Поділитись Опубліковано: 5 лютого 2015 Свежие фото ремонта: ванна, встроенный душ, ниша для зеркала, панно над ванной Посилання на коментар Поділитися на інших сайтах More sharing options...
ketrin-n Опубліковано: 5 лютого 2015 Автор Поділитись Опубліковано: 5 лютого 2015 гостиная-студио, терраса, коридор, Посилання на коментар Поділитися на інших сайтах More sharing options...
ketrin-n Опубліковано: 5 лютого 2015 Автор Поділитись Опубліковано: 5 лютого 2015 комнаты пока мало примечательны вся красота на потом Посилання на коментар Поділитися на інших сайтах More sharing options...
Lana_CK Опубліковано: 5 лютого 2015 Поділитись Опубліковано: 5 лютого 2015 гостиная-студио, терраса, коридор,там же не все гипсокартоном зашито? штукатурили/выравнивали после строителей? площадь квартиры - шикарна что в ванной - вообще не понравилось(( разве шо кроме кусочка стены с нишей и что ли мозаикой вокруг или плиткой под неё Посилання на коментар Поділитися на інших сайтах More sharing options...
ketrin-n Опубліковано: 7 лютого 2015 Автор Поділитись Опубліковано: 7 лютого 2015 там же не все гипсокартоном зашито? штукатурили/выравнивали после строителей? площадь квартиры - шикарна что в ванной - вообще не понравилось(( разве шо кроме кусочка стены с нишей и что ли мозаикой вокруг или плиткой под неё ниша под ТВ выбита в стене, но для лучшей звукоизоляции выбили полностью и зашили звукоизол. материалом, заменили стеновой блок на звукоизоляцию. и длинные стены коридоров разбавлены ГК выступами 4см. а так все выравнивали штукатуркой, и потолки тоже. в нише ванны мазаика 1х1, из такого же размера панно над ванной фотки не ах, но плитка красивая, хозяевам очень нравится Посилання на коментар Поділитися на інших сайтах More sharing options...
ketrin-n Опубліковано: 14 лютого 2015 Автор Поділитись Опубліковано: 14 лютого 2015 Выбор электро фурнитуры Посилання на коментар Поділитися на інших сайтах More sharing options...
ketrin-n Опубліковано: 25 лютого 2015 Автор Поділитись Опубліковано: 25 лютого 2015 почти закончили сан узлы Посилання на коментар Поділитися на інших сайтах More sharing options...
ketrin-n Опубліковано: 3 березня 2015 Автор Поділитись Опубліковано: 3 березня 2015 мой самый любимый момент - монтаж освещения, терраса до и после 1 Посилання на коментар Поділитися на інших сайтах More sharing options...
ketrin-n Опубліковано: 3 березня 2015 Автор Поділитись Опубліковано: 3 березня 2015 монтаж кухни Посилання на коментар Поділитися на інших сайтах More sharing options...
Рекомендовані повідомлення
Створіть акаунт або увійдіть у нього для коментування
Ви маєте бути користувачем, щоб залишити коментар
Створити акаунт
Зареєструйтеся для отримання акаунта. Це просто!
Зареєструвати акаунтУвійти
Вже зареєстровані? Увійдіть тут.
Увійти зараз