Перейти до публікації
Пошук в
  • Додатково...
Шукати результати, які містять...
Шукати результати в...

Посоветуйте способ (схему/рисунок) укладки напольной плитки

Livesms

Рекомендовані повідомлення

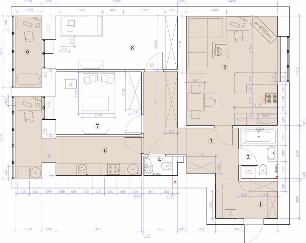
Планируем уложить напольную плитку в квартире.

Будет две "области" - одна большая цельная - от входной двери - прихожая, коридор, гостиная, кухня/котельная, лоджия.

Вторая - отдельная лоджия.

 

Плитку выбрали (ссылка устарела). Размер плитки - 17,5 * 50 см.

 

Подскажите, какой рисунок / схему укладки оптимально использовать для укладки такого помещения - такой формы, размеры и т.д.

 

Пока рассматриваем два варианта

- простой по диагонали "с смещением" от входной двери и дальше по всем помещениям (под углом 45 к стенам)

- елочкой от входной двери и дальше в помещения.

1237292875_-.thumb.jpg.d358ed0401f1e1d0c3596110f4353ae4.jpg

inzhenernaya_doska_boen_ukladka.gif.038352204a533faf22929a3ebc0e1168.gif

11938113.jpg.0da3cda33ed69d38653a751890519547.jpg

Посилання на коментар
Поділитися на інших сайтах

Диагональ наверное, будет самым оптимальным вариантом. В любом случае, если ложить цельную область - плиточнику придется "поиграться" с резкой.

Пусть плиточник проверит плитку - хоть она и 50 см, но может иметь приличный прогиб - тогда надо склоняться к укладке, где это меньше заметно. За последний год 2 раза видел такого плана плитку (производителя не помню) с огромнейшими прогибами (правда при размере 900-1000).

  • Лайк 1
Посилання на коментар
Поділитися на інших сайтах

Створіть акаунт або увійдіть у нього для коментування

Ви маєте бути користувачем, щоб залишити коментар

Створити акаунт

Зареєструйтеся для отримання акаунта. Це просто!

Зареєструвати акаунт

Увійти

Вже зареєстровані? Увійдіть тут.

Увійти зараз
×
×
  • Створити...