Перейти до публікації
Пошук в
  • Додатково...
Шукати результати, які містять...
Шукати результати в...

Стеклянное ограждение душевой зоны

alexob

Рекомендовані повідомлення

Ищу исполнителя на обустройство душевой зоны. В санузле укладена плитка и мозайкой выделена душевая зона. Необходимо сделать монтаж стеклянного ограждения душевой зоны каленым стеклом с дверцой.

 

Дом в Белогородке.

 

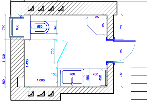
Чертеж санузла. Салатовым показана душевая зона

 

attachment.php?attachmentid=415991&stc=1&d=1424638997

 

Мозайкой выделена душевая зона

 

20150219_211235.jpg

 

20150219_211246.jpg

 

20150219_211254.jpg

 

20150219_211302.jpg

 

20150219_211346.jpg

 

20150219_211713.jpg

Посилання на коментар
Поділитися на інших сайтах

Створіть акаунт або увійдіть у нього для коментування

Ви маєте бути користувачем, щоб залишити коментар

Створити акаунт

Зареєструйтеся для отримання акаунта. Це просто!

Зареєструвати акаунт

Увійти

Вже зареєстровані? Увійдіть тут.

Увійти зараз
×
×
  • Створити...