Перейти до публікації
Пошук в
  • Додатково...
Шукати результати, які містять...
Шукати результати в...

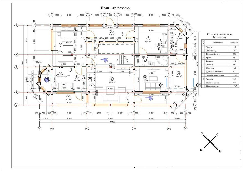
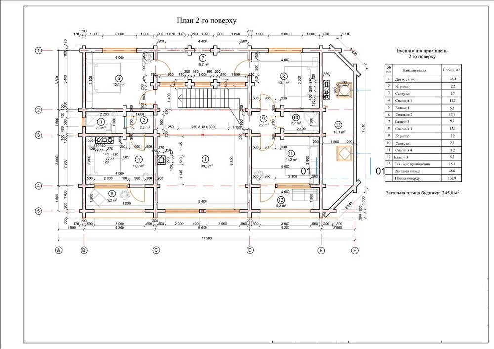
Деревянный дом - сруб 270 м\кв

TATARIN

Рекомендовані повідомлення

Люди! Интересует Ваше мнение относительно проэкта сруба, ниже выложу пик4и - оцените плиз:

1) Эргономичность (полезность использования площадей)

2) Правильность размещения помещений

 

Интересует так же Ваше видение в этом вопросе...по типу..."а вот если бы делал я, то...."... :)

 

Заранее ффФффсем сенкс)

2_117.thumb.jpg.e189d30eede4af319de21736be8f4657.jpg

1_143.thumb.jpg.a08b389322c07b6705b24e3838c29364.jpg

Посилання на коментар
Поділитися на інших сайтах

ну дом жирный получаеться

но как то странно расположен

спальня на первом этаже граничеит стенкой с хоз. помещение а это ни есть гуд так-как в ХП круглосуточно происходят какие-то процессы сопровождаемые определёнными звуками

ну зимний сад какойто проходной получаеться

с балконами перебор ни кто не будет бегать на 2-этаж что бы постоять покурать на балконе зато теплопотери себя покажут

Посилання на коментар
Поділитися на інших сайтах

Створіть акаунт або увійдіть у нього для коментування

Ви маєте бути користувачем, щоб залишити коментар

Створити акаунт

Зареєструйтеся для отримання акаунта. Це просто!

Зареєструвати акаунт

Увійти

Вже зареєстровані? Увійдіть тут.

Увійти зараз
×
×
  • Створити...