Перейти до публікації
Пошук в
  • Додатково...
Шукати результати, які містять...
Шукати результати в...

Бригада для переробка в мансарду з нежитлового горища. Львів

Dancer

Рекомендовані повідомлення

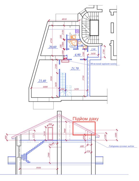
Шукаю бригаду з досвідом переробки/будівництва мансард. Мансарда буде як окрема квартира з усіма автономними комунікаціями (на схемі є сходи, але їх не буде і вхід буде окремий), присутній проект і усі необхідні погодження та дозволи. Початок - як тільки погода дозволить.

Розгляну пропозицію як комплексно (дах, внутрішні роботи, комунікації і т.д.) так і окремо.

Обовязково наявність готових робіт з фотографіями.

Присилайте приблизний кошторис і терміни початку робіт.

832019166_ScreenShot2015-03-17at15_03_03.thumb.jpg.9d584d3fe0109d38ea7d921d485fa79c.jpg

Посилання на коментар
Поділитися на інших сайтах

Створіть акаунт або увійдіть у нього для коментування

Ви маєте бути користувачем, щоб залишити коментар

Створити акаунт

Зареєструйтеся для отримання акаунта. Це просто!

Зареєструвати акаунт

Увійти

Вже зареєстровані? Увійдіть тут.

Увійти зараз
×
×
  • Створити...