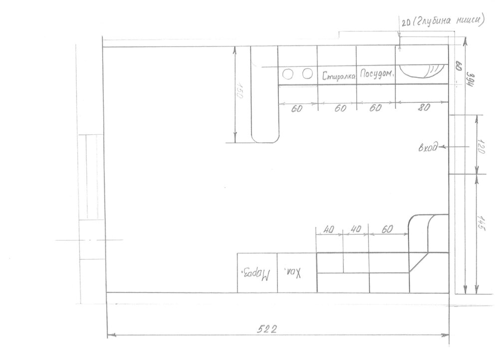
Feyalisa Опубліковано: 23 квітня 2015 Поділитись Опубліковано: 23 квітня 2015 Добрый день! Нужно сделать вот такую двухстороннюю кухню. Основной критерий - цена/качество (функциональность, красота, долговечность) по Вашему мнению. Желательно с альтернативными вариантами материалов и фурнитуры. Очень сильно приветствуется детализированная смета, с разделением на цену материала, цену работы Ваши предложения высылайте на электронную почту Посилання на коментар Поділитися на інших сайтах More sharing options...
Ледник1918 Опубліковано: 25 квітня 2015 Поділитись Опубліковано: 25 квітня 2015 если хотите обсудить подробнее звоните на тел. 068 5262025 Сергей Посилання на коментар Поділитися на інших сайтах More sharing options...
Танин Опубліковано: 12 травня 2015 Поділитись Опубліковано: 12 травня 2015 Добрый день! Ваша тема ещё актуальна??? Посилання на коментар Поділитися на інших сайтах More sharing options...
Feyalisa Опубліковано: 19 липня 2015 Автор Поділитись Опубліковано: 19 липня 2015 Добрый день! Ваша тема ещё актуальна??? Добрый вечер! Была пауза в ремонте. Теперь вопрос с кухней вновь актуален. Посилання на коментар Поділитися на інших сайтах More sharing options...
Танин Опубліковано: 20 липня 2015 Поділитись Опубліковано: 20 липня 2015 Добрый вечер! Была пауза в ремонте. Теперь вопрос с кухней вновь актуален. Добрый день!Как можно с вами связаться... Если не трудно можете меня набрать 0674454323, чтоб обговорить матерьялы на ваше изделие. С уважением, Татьяна. Посилання на коментар Поділитися на інших сайтах More sharing options...
loyalpricee Опубліковано: 6 серпня 2015 Поділитись Опубліковано: 6 серпня 2015 Доброго дня. Хотів би підїхати до Вас для обговорення побажань по матеріаламта фурнітурі.098-234-03-15 Леонід. Посилання на коментар Поділитися на інших сайтах More sharing options...
Рекомендовані повідомлення
Створіть акаунт або увійдіть у нього для коментування
Ви маєте бути користувачем, щоб залишити коментар
Створити акаунт
Зареєструйтеся для отримання акаунта. Це просто!
Зареєструвати акаунтУвійти
Вже зареєстровані? Увійдіть тут.
Увійти зараз