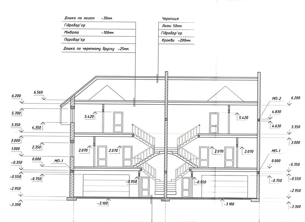
max_13 Опубліковано: 30 квітня 2015 Поділитись Опубліковано: 30 квітня 2015 Нужна лестница как на картинках ниже жду ком предложений "под ключ" Посилання на коментар Поділитися на інших сайтах More sharing options...
max_13 Опубліковано: 30 квітня 2015 Автор Поділитись Опубліковано: 30 квітня 2015 стена на 1м этаже "временная" ее демонтируем описание фото в названии фото подсветку не считать (пока) Посилання на коментар Поділитися на інших сайтах More sharing options...
max_13 Опубліковано: 22 червня 2015 Автор Поділитись Опубліковано: 22 червня 2015 1 предложение и на этом все? Посилання на коментар Поділитися на інших сайтах More sharing options...
Drevkomplekt Опубліковано: 23 червня 2015 Поділитись Опубліковано: 23 червня 2015 Из какого материала дерева нужна обшивка лестницы? Где находится объект? Как срочно надо? Посилання на коментар Поділитися на інших сайтах More sharing options...
Рекомендовані повідомлення
Створіть акаунт або увійдіть у нього для коментування
Ви маєте бути користувачем, щоб залишити коментар
Створити акаунт
Зареєструйтеся для отримання акаунта. Це просто!
Зареєструвати акаунтУвійти
Вже зареєстровані? Увійдіть тут.
Увійти зараз