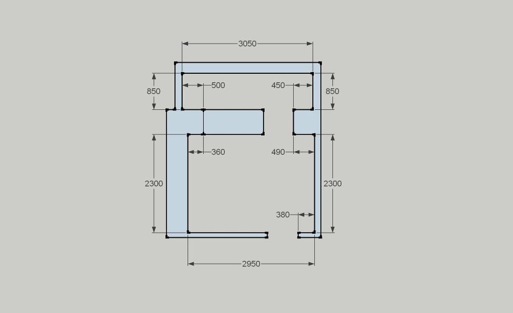
Eduard1976 Опубліковано: 8 травня 2015 Поділитись Опубліковано: 8 травня 2015 Нужна помощь. Объединяю кухню с балконом в 5-этажном доме на 5 этаже. Стоит вопрос о расположении мебели и приборов на кухне. На балконе слева планируется мойка Что и где расположить дальше не знаю. Может кто-то поможет. Хотелось бы уголок со столом, холодильник и стиралку на кухне, ну и плита конечно тоже. Что где и как лучше разместить. Посилання на коментар Поділитися на інших сайтах More sharing options...
karya Опубліковано: 8 травня 2015 Поділитись Опубліковано: 8 травня 2015 Нужна помощь. Объединяю кухню с балконом в 5-этажном доме на 5 этаже. Стоит вопрос о расположении мебели и приборов на кухне. На балконе слева планируется мойка Что и где расположить дальше не знаю. Может кто-то поможет. Хотелось бы уголок со столом, холодильник и стиралку на кухне, ну и плита конечно тоже. Что где и как лучше разместить. [ATTACH]434587[/ATTACH]Могу Вам сделать план расположения мебели. Если заинтересуетесь,обращайтесь ;) Посилання на коментар Поділитися на інших сайтах More sharing options...
Eduard1976 Опубліковано: 9 травня 2015 Автор Поділитись Опубліковано: 9 травня 2015 Могу Вам сделать план расположения мебели. Если заинтересуетесь,обращайтесь ;) Интересует, на каких условиях Посилання на коментар Поділитися на інших сайтах More sharing options...
karya Опубліковано: 9 травня 2015 Поділитись Опубліковано: 9 травня 2015 Интересует, на каких условияхНаписала Вам в личку Посилання на коментар Поділитися на інших сайтах More sharing options...
Рекомендовані повідомлення
Створіть акаунт або увійдіть у нього для коментування
Ви маєте бути користувачем, щоб залишити коментар
Створити акаунт
Зареєструйтеся для отримання акаунта. Це просто!
Зареєструвати акаунтУвійти
Вже зареєстровані? Увійдіть тут.
Увійти зараз