Перейти до публікації
Пошук в
  • Додатково...
Шукати результати, які містять...
Шукати результати в...

Покритикуйте концепцию бани с террасой и жилой гостевой комнатой

-=Vitalik=-

Рекомендовані повідомлення

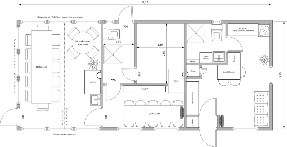
Планирую построить одним блоком:

комнату для периодически приезжающего строителя (помочь потратить заработанные деньги :) ) + баню + остекленную веранду.

 

Хотелось бы критику концепции и плана.

А также определится с архитектором, который сделает проект.

 

Набросал примерный план будущего шедевра.

Для понимания добавляю план участка (13 соток).

Все уже построено, кроме дорожек и мощения, которые обозначены серым цветом.

Озеленения пока также нет. Как раз параллельно над этим размышляю.

 

1. Крышу предполагаю делать двухскатную, с углом порядка 20 градусов. Крыть листовым металлом. Утеплять только над верандой, где она же будет потолком. Над баней и комнатой крышу не утеплять, а утеплять перекрытия.

Доступ на чердак (хранить всякий хлам) с тыльного торца здания дедовским способом – приставная лестница.

 

2. Фундамент и стены. Фундамент предлагаю сделать ленточный, заливной. Стены наружные из газобетона 60х20х30, внутренние 60х20х10 (частично есть в наличии). Возможно, утеплить комнату для проживания. Потом штукатурка.

Вопрос – хотелось бы стены непосредственно парной полностью или частично сделать из натурального дерева – кругляка или бруса. Возможно ли это?

Печь-каменка, примерно вот такая:ruspar.ru/wiki/basics/furnace-for-bath-with-own-hands/

 

3. Остекление веранды – рассматриваю большие ПВХ окна в коричневой пленке. В основном глухие, парочку, наверное, нужно разбивать на секции, чтобы был хороший приток свежего воздуха, когда тепло.

(На участке есть открытая маленькая беседка, веранду предполагаю использовать для мероприятий большой компанией и в холодное время суток – совмещать баню с шашлыками и т.п. Т.е. веранда не отапливаемая, но которую реально прогреть печкой-мангалом + УФО до температуры, ощутимо больше, чем за окном). Ну или кондиционером, когда небольшой минус.

С восточной и южной стороны остекление до пола, с западной – до подоконников (низкие, думаю около 75 см).

 

4. Пол – сосновая доска и плитка (санузлы). На веранде комбинированный (не настаиваю, но видел в кафешке нечто подобное, симпатично).

 

5. Коммуникации. Обозначен колодец, откуда планирую тянуть электричество и холодную воду. На горячую бойлер.

Септик далеко, думаю, придется копать отдельно или ставить фекальный насос (что посоветуете?).

Санузел бани имеет отдельную дверь на улицу – находясь на улице удобней пользоваться ним, чем ходить в дом.

 

 

Ну, для начала где-то так. Прошу критики и совета. :)

 

З.Ы. С севера и запада строение примыкает к заборам – отступлю порядка 1-1,5 м.

Дом находится в дачном кооперативе, но используется для постоянного проживания.

1679546254_2.thumb.jpg.14e95ba10e5449fabed412b24e04113e.jpg

543600862_71.thumb.jpg.63c3abd944e62764bb98e0f2a2369306.jpg

1094876824_1.jpg.54cd118ece6183db67887f8c30be38d1.jpg

841639769_2.jpg.78d5f4d78c982bb3a9662eb4709a453b.jpg

Посилання на коментар
Поділитися на інших сайтах

Несколько вопросов

1.Баня-для кого? Для строителя?)(его апартаменты вполне достойные ) Если нет-то увеличивайте помывочную и комнату отдыха-в два раза .И добавьте небольшую кладовку для всякой банной мелочи

2 .Газоблок хотите применить-потому что остался? Хуже сложно материал для бани придумать

3.Зачем вам архитектор? Планы вполне профессиональные .С разрезами и фасадами тоже справитесь легко

  • Лайк 1
Посилання на коментар
Поділитися на інших сайтах

Спасибо за Ваше внимание и совет!

1. Согласен, немного уменьшил комнату строителя и увеличил помывочную.

Резерва для существенного увеличения не вижу.

Человек живет неделями, все базовые удобства необходимы.

Если будут мнения, что помещения все равно маловато, увеличу пятно застройки.

Но баню изначально планировал компактную.

 

2. Хорошее замечания, сам колеблюсь в этом вопросе.

С одной стороны - газоблок остался от хозпостройки, разумно было бы использовать (хотя его немного, 70% придется докупать).

С другой - баню всегда представлял деревянной, очень люблю этот материал (дом из дерева).

Но для компактности и бюджетности хотелось бы все разместить одним блоком, а строить все из бруса дорого.

Что если попробовать сделать стены парной из бруса (выделил желтым)?

Или "матрешкой" - одно в другом с вентиляцией зазора?

Вообщем, на газоблоке не настаиваю, может быть и каркасник, и кирпич.

Тут нужно грамотное решение, это частично ответ на вопрос №3.

 

3. Думаю, что справлюсь, дом и хозпостройку строил без помощи архитектора, явных косяков не было, но все-таки специалист сделает лучше.

Представляю внимаю слегка низменный проект:

986534785_3.thumb.jpg.ee31e2341875faf190e2036476ba33f1.jpg

Посилання на коментар
Поділитися на інших сайтах

По материалу и конструкции-посмотрите здесь www.ekodom.net.ua/index.php?page=listitem&id=285&catid=36

С этой баньки из конопли мы полностью перешли на такую технологию -идля больших домов-и для небольших бань)

Услуги свои не предлагаю -так расскажу .дешевле бруса и теплее в разы

По размерам и площадям-ну тесно же совсем рядом со столами .Как дрова в печку подкидывать?Все встали-стол подвинули-потом дрова? Ну хотя бы метр добавить нужно

Посилання на коментар
Поділитися на інших сайтах

газоблок в силу своей гигроскопичности имеет ряд проблем, если бы был пенобетон, но это уже другая тема... С другой стороны хорошая внутренняя гидроизоляция, использования гидрофобных пропиток и грунтовок.

В общем не для "мокрых" помещений он.

На худой конец можно было бы совместить материалы - допустим для мокрых процессов = пирог стены с керамики, для остального - газобетон, но опять же = коэфф. температурных расширений тут у материалов разные, поэтому это надо учесть.

Porotherm 44, я бы вам советовал или 50 блок., Для бани, я бы не делал сложный пирог стен с утеплителями, вентзазорами и т.д. на мой взгяд более оптимальным будет кератерм или поротерм - той толщины, где нам не нужно утеплителя, а это уже от 44 см, лучше 50.,

Ваши существующие блоки из газобетона 60х20х30 - как-бы маловаты,если бы хоть 40, а не 30, было бы рациональней.

 

По планировке-

сомнительным выглядит эргономика тамбура справа.

По местам, где окна в пол, может предусмотреть для обогрева "дуйки" в нишах пола, или она не отапливается я уже прочел у вас ?

 

По септику, вы спрашиваете нужен ли отдельный, не указава какой объем уже у существующего, тут кроме этого главное, чтобы он был не менее чем 25 метров от колодца/скважины. в общем отдельный септик - я бы делал, если не хватает уже существующего, ведь это тоже расход по деньгам...

 

По окнам - для притока воздуха, можно установить аэроклапана в рамах окон или скажем в стене,

тут вы просто не уточнили, какие у вас мысли насчет вентиляции помещений, ибо вопрос я смотрю не решен...

 

По полам, вместо сосны , я бы рекомендовал вам :

Доску из массива термодерева, площадь у вас маленькая под него, поэтому это не так дорого.

 

 

P.S.

продублировал в л.с.

так как сперва вы написали мне туда 3 дня назад. Как совет - потрудитесь там отвечать иногда, раз уж задаете вопросы там...

  • Лайк 1
Посилання на коментар
Поділитися на інших сайтах

Простите, безусловно, не прав – задал вопрос и пропал на неделю.

Но так сложились обстоятельства. К счастью, все проблемы уже решены и я снова на связи.

Очень благодарен Вам за внимание и совет, ответил в личном кабинете.

 

Исходя из полученных советов думаю слегка изменить концепцию:

1. Комнату строителя делаю из газобетона, а коробочку и стены бани из кирпича, парилку обшиваю деревом. Есть и более экстремальная мысль – баню полностью со сруба (все-таки баня из дерева – это круть :) ), но тогда, вероятно, нужно будет сделать вентиляционный зазор между срубом и газобетоном;

2. Печь скорее всего топкой на улицу к забору – там как раз дрова будут сложены, больше места внутри, не надо носить дрова внутрь и мусорить.

Примерно так:

1148767426_4.thumb.jpg.5868aa4cc94de2d7819111aace9e58c5.jpg

Посилання на коментар
Поділитися на інших сайтах

Створіть акаунт або увійдіть у нього для коментування

Ви маєте бути користувачем, щоб залишити коментар

Створити акаунт

Зареєструйтеся для отримання акаунта. Це просто!

Зареєструвати акаунт

Увійти

Вже зареєстровані? Увійдіть тут.

Увійти зараз
×
×
  • Створити...