Перейти до публікації
Пошук в
  • Додатково...
Шукати результати, які містять...
Шукати результати в...

Тендер на комплект водосточки цвет 8004

Piastr

Рекомендовані повідомлення

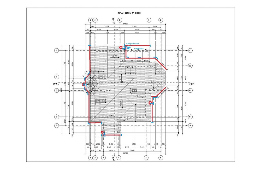
Требуется комплект материалов для водостока по списку во вложении. Перечень составлен для производителя бриза 125/90. Можно другие хорошего качества. Цвет кирпичный (8004) или под медь. Добавляю также схему крыши. Буду признателен за рекомендации, если у меня что-то не так.

водосток.xls

693514928_.thumb.jpg.de76ba0da8c881dcb6b30e9071e10e53.jpg

Посилання на коментар
Поділитися на інших сайтах

Створіть акаунт або увійдіть у нього для коментування

Ви маєте бути користувачем, щоб залишити коментар

Створити акаунт

Зареєструйтеся для отримання акаунта. Це просто!

Зареєструвати акаунт

Увійти

Вже зареєстровані? Увійдіть тут.

Увійти зараз
×
×
  • Створити...