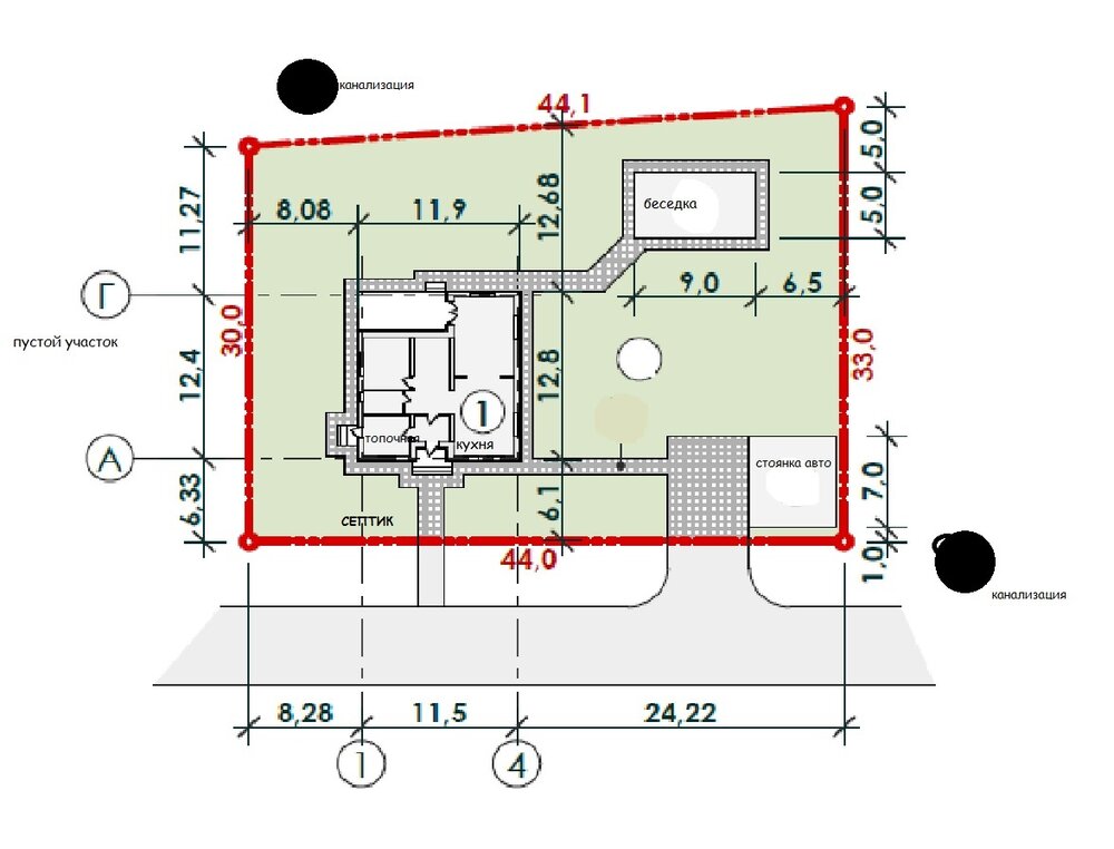
Dabler Опубліковано: 2 липня 2015 Поділитись Опубліковано: 2 липня 2015 Подскажите, пожалуйста, по расположению скважины на участке. На схеме обозначила где канализации у соседей и где мы будем делать септик. Где лучше делать скважину? Между беседкой и стоянкой авто? Или ближе к дому, отступив 5 м? Или мастера которые приедут делать скважину могут посоветовать в данном вопросе? Посилання на коментар Поділитися на інших сайтах More sharing options...
yrport Опубліковано: 3 липня 2015 Поділитись Опубліковано: 3 липня 2015 Подскажите, пожалуйста, по расположению скважины на участке. На схеме обозначила где канализации у соседей и где мы будем делать септик. Где лучше делать скважину? Между беседкой и стоянкой авто? Или ближе к дому, отступив 5 м? Или мастера которые приедут делать скважину могут посоветовать в данном вопросе? Только с мастерами(менеджерами) решайте, они каждый день с таким и подскажут Посилання на коментар Поділитися на інших сайтах More sharing options...
RuslanRX Опубліковано: 4 липня 2015 Поділитись Опубліковано: 4 липня 2015 А я себя скважину пробил до постройки дома вподвале очень удобно советую Посилання на коментар Поділитися на інших сайтах More sharing options...
vodinoy Опубліковано: 4 липня 2015 Поділитись Опубліковано: 4 липня 2015 А я себя скважину пробил до постройки дома вподвале очень удобно советую ...особенно удобно насос вытаскивать на сто метровой трубе))) Посилання на коментар Поділитися на інших сайтах More sharing options...
RuslanRX Опубліковано: 5 липня 2015 Поділитись Опубліковано: 5 липня 2015 ...особенно удобно насос вытаскивать на сто метровой трубе))) Удобно тем что зимой ничего не перемерзает и не холодно обслуживать да и скважины у меня 20м. По поводу вытаскивать шланг ответьте пожалуйста сколько раз за год вы это делаете? Посилання на коментар Поділитися на інших сайтах More sharing options...
DimaF Опубліковано: 7 липня 2015 Поділитись Опубліковано: 7 липня 2015 Только с мастерами(менеджерами) решайте, они каждый день с таким и подскажут А мастерам как раз до лампочки, им где скажут там и сделают, хоть в метре от канализации... А по теме, так у вас между черными отметками канализаций (если провести условную линию) есть на схеме белый круг, вот там примерно и делайте, как раз на равном удалении от источников загрязнения, и сюдя по расстояниям выдержите санитарную норму. Располагать ближе к забору не надо, ибо другие соседи могут там что то разместить. Посилання на коментар Поділитися на інших сайтах More sharing options...
Рекомендовані повідомлення
Створіть акаунт або увійдіть у нього для коментування
Ви маєте бути користувачем, щоб залишити коментар
Створити акаунт
Зареєструйтеся для отримання акаунта. Це просто!
Зареєструвати акаунтУвійти
Вже зареєстровані? Увійдіть тут.
Увійти зараз