Zennon Опубліковано: 26 липня 2009 Поділитись Опубліковано: 26 липня 2009 Все плюсы-минусы знаю... Что такое аллергия - тоже знаю. Приезжайте в Мариуполь, походите по улицам - и не надо никакого пенопласта засовывать в машину... Задохнетесь и так. Или аллергия ваша сразу пройдет А вот по два ряда через день самому заливать - это мне очень даже и подходит... При наличии наличности в достаточном количестве я б, наверно, поступил так же как и вы и другие - купил бы 70 тыс кирпича, гору гранита на фундамент, дал бы заработать толковым бригадирам-прорабам и ватаге бестолковых и безруких работяг... Но наличность в нужном количестве отсутствует... Рисовать ден знаки, а тем более красть их где-то к сожелению не научили... А заработать честным и праведным путем это "нужное" количество быстро не получается... Поэтому большинство работ предполагается производить своими руками с минимальным привлечением наемного труда... А вообще-то тема этой ветки про "проект под бюджетное, одноэтажное строительство"... Посилання на коментар Поділитися на інших сайтах More sharing options...
LaRsoN Опубліковано: 26 липня 2009 Поділитись Опубліковано: 26 липня 2009 Zennon обломали, спасибо! Как будто Вы пенопласт и цемент покупать не будете... Удачи. Посилання на коментар Поділитися на інших сайтах More sharing options...
J.B. Опубліковано: 26 липня 2009 Поділитись Опубліковано: 26 липня 2009 Термодом на бюджетное не катит. Шпаклевки, краски, сетки - дороговато. А вот шлакоблоки - бюджетно и штукатурка по ним будет бюджетная. Про экологичнось в Мариуполе не говорят. Посилання на коментар Поділитися на інших сайтах More sharing options...
ivinn Опубліковано: 27 липня 2009 Автор Поділитись Опубліковано: 27 липня 2009 Термодом на бюджетное не катит. Я рассматриваю газобетон AEROC Ecoterm 375 D400 / B 2.0 (M30) / F25 , как один из бюджетных вариантов для наружных стен. Цена в нашем регионе на сегодняшний день – 750грн./ 1м3. Перекрытие TERIVA или деревянные. Посилання на коментар Поділитися на інших сайтах More sharing options...
Zennon Опубліковано: 27 липня 2009 Поділитись Опубліковано: 27 липня 2009 Термодом на бюджетное не катит. Шпаклевки, краски, сетки - дороговато. А вот шлакоблоки - бюджетно и штукатурка по ним будет бюджетная. Про экологичнось в Мариуполе не говорят. Конечно, если нанимать "специалистов" на укладку-заливку, шпаклевку, сетку, краску - то мож и не бюджетно... А делать из шлакоблока - так тоже прийдется клеить снаружи пенопласт. шпаклевку. сетку. краску... Или минвату-сайдинг устраивать... Так что все в нашем мире относительно... Посилання на коментар Поділитися на інших сайтах More sharing options...
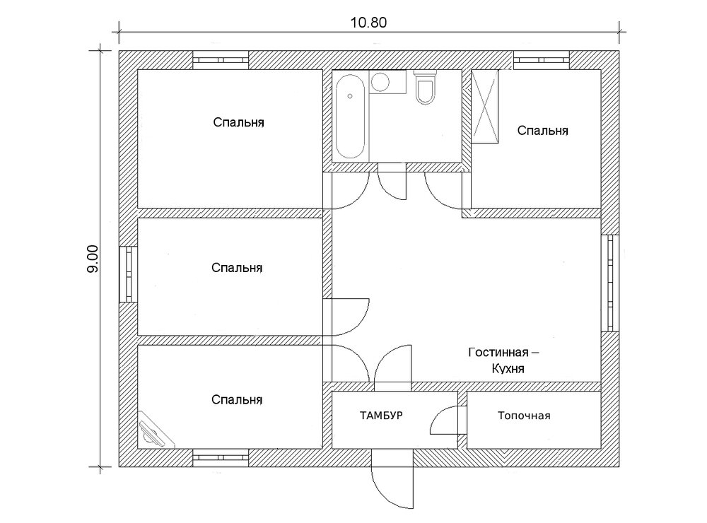
nickt Опубліковано: 7 серпня 2009 Поділитись Опубліковано: 7 серпня 2009 Я рассматриваю газобетон AEROC Ecoterm 375 D400 / B 2.0 (M30) / F25 , как один из бюджетных вариантов для наружных стен. Цена в нашем регионе на сегодняшний день – 750грн./ 1м3. Перекрытие TERIVA или деревянные. А можна я тоже пристроюсь в вашу тему ? Не давал мне покоя плательный шкаф в коридоре, к тому же перемещение из гостинной в кухню и обратно будет куда комфортнее: тоже собираюсь строиться очень бюджетно, но у меня 4 детей и родители, поэтому необходимо минимум 4 спальни. Я взял за основу ваш вариант из поста 70, крутил-крутил и вот, что у меня получилось рисовал в первый раз, критике и предложениям буду только рад Посилання на коментар Поділитися на інших сайтах More sharing options...
Zennon Опубліковано: 7 серпня 2009 Поділитись Опубліковано: 7 серпня 2009 nickt ! Вам будет очень тесно в таком доме... Пока детки маленькие (или очень маленькие) Вроде как все "нормально". Но вы не успеете оглянуться как детки ваши подрастут и станут большими. И запросы у них будут большие... И прийдется вам превращать чердак в жилую мансарду или строить "летнюю кухню", где вы с супругой или кто-то из детей будете жить круглый год, или , анпример, над гаражом делать жилую мансарду... Где-то мне попадалась простая формула расчета количества комнат в доме - количество жителей + одна комната. В Вашем случае надо 7 комнат, не считая санузлов (одного будет явно маловато), топочной, кладовок, кузни, прихожей и пр. Посилання на коментар Поділитися на інших сайтах More sharing options...
nickt Опубліковано: 7 серпня 2009 Поділитись Опубліковано: 7 серпня 2009 nickt ! Вам будет очень тесно в таком доме... Пока детки маленькие (или очень маленькие) Вроде как все "нормально". Но вы не успеете оглянуться как детки ваши подрастут и станут большими. согласен, это необходимый минимум, но лучше жить в достроенном одноэтажном, чем в хрущевке и иметь недостроенный двухэтажный и в тайне надеюсь, что это дом останется родителям, а я себе построю просторный новый ... Посилання на коментар Поділитися на інших сайтах More sharing options...
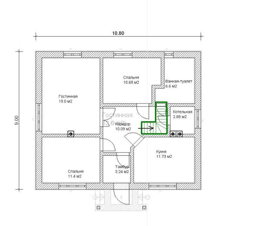
ivinn Опубліковано: 7 серпня 2009 Автор Поділитись Опубліковано: 7 серпня 2009 Попробуйте рассмотреть такой вариант. Старшим детям – мансардный этаж. Посилання на коментар Поділитися на інших сайтах More sharing options...
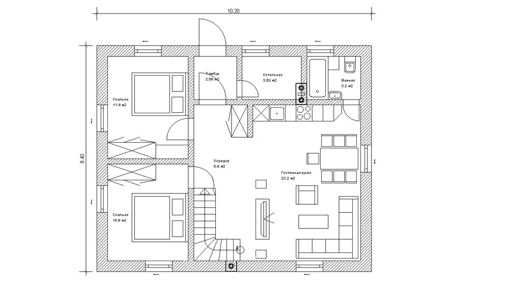
Tugarin Опубліковано: 9 серпня 2009 Поділитись Опубліковано: 9 серпня 2009 согласен, это необходимый минимум, но лучше жить в достроенном одноэтажном, чем в хрущевке и иметь недостроенный двухэтажный и в тайне надеюсь, что это дом останется родителям, а я себе построю просторный новый ... А можно и в достроенном 2-х этажном (2-й этаж мансарда), вот в таком: Посилання на коментар Поділитися на інших сайтах More sharing options...
Tugarin Опубліковано: 9 серпня 2009 Поділитись Опубліковано: 9 серпня 2009 А можна я тоже пристроюсь в вашу тему ? тоже собираюсь строиться очень бюджетно... Здравствуйте. Критика: - восьмерым членам семьи пользоваться одним санузлом будет очень проблематично; - в гостинной-кухне вряд ли получится разместить минимум мебели и обеспечить проходы между ней. P.S. После года (а может и меньше) проживания всей семьей в доме план которого Вы показали, возможно Вы захотите жить в Хрущевке и недостроеном доме (это мое мнение). Посилання на коментар Поділитися на інших сайтах More sharing options...
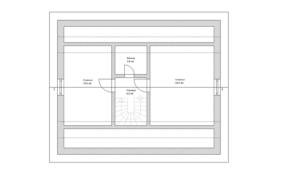
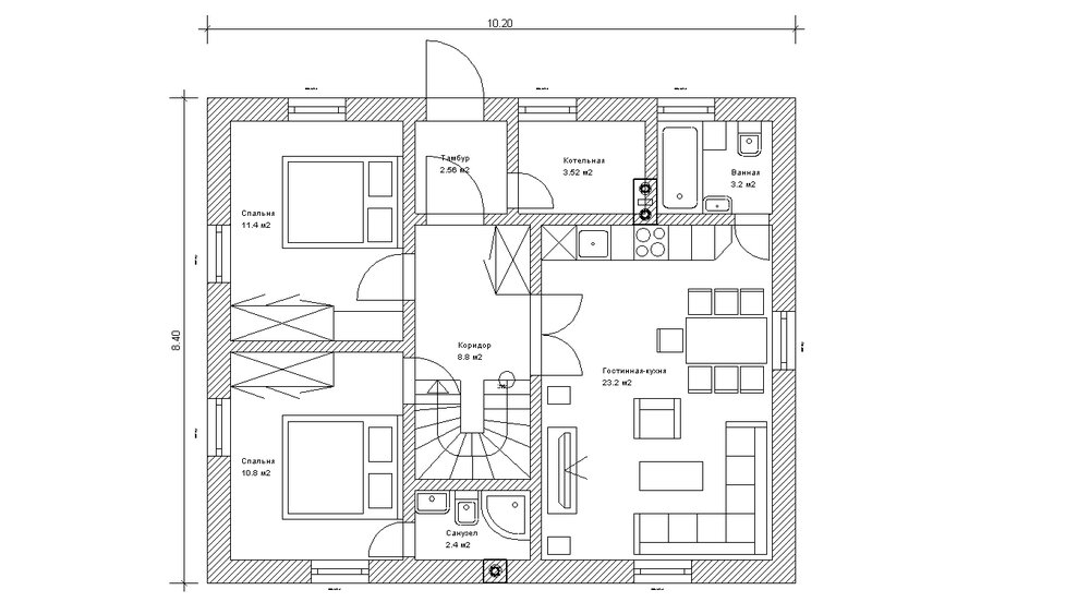
nickt Опубліковано: 10 серпня 2009 Поділитись Опубліковано: 10 серпня 2009 Здравствуйте. Критика: - восьмерым членам семьи пользоваться одним санузлом будет очень проблематично; - в гостинной-кухне вряд ли получится разместить минимум мебели и обеспечить проходы между ней. P.S. После года (а может и меньше) проживания всей семьей в доме план которого Вы показали, возможно Вы захотите жить в Хрущевке и недостроеном доме (это мое мнение). спасибо за критику, принято, думаем где брать деньги на мансардный этаж ваша планировка очень понравилась, только хотелось бы больше места при минимуме затрат я попробовал убрать 3й санузел и коридор и поменять лестницу на Г образную посмотрите, пожалуйста, как вам такое Посилання на коментар Поділитися на інших сайтах More sharing options...
nickt Опубліковано: 10 серпня 2009 Поділитись Опубліковано: 10 серпня 2009 Попробуйте рассмотреть такой вариант. Старшим детям – мансардный этаж. спасибо, вот только мной овладела идея объединения кухни-гостинной с коридором и разделением на зоны с помощью мебели я был в таком доме в гостях и мне очень понравилось Посилання на коментар Поділитися на інших сайтах More sharing options...
Алик Опубліковано: 10 серпня 2009 Поділитись Опубліковано: 10 серпня 2009 спасибо, вот только мной овладела идея объединения кухни-гостинной с коридором и разделением на зоны с помощью мебели я был в таком доме в гостях и мне очень понравилось вот именно! когда есть ограничение по площади мне непонятно когда рисуют гостинную отдельно и в другом углу дома от кухни. Посилання на коментар Поділитися на інших сайтах More sharing options...
Tugarin Опубліковано: 10 серпня 2009 Поділитись Опубліковано: 10 серпня 2009 спасибо за критику, принято, думаем где брать деньги на мансардный этаж... Одобрямс, ток лестницу на входе надо уменьшить, соответственно на выходе увеличить, либо сделать П-образную, - удобней будет, т.к. на Вашем чертеже от первой ступени до техники не более 50 см, а это мало. Посилання на коментар Поділитися на інших сайтах More sharing options...
Рекомендовані повідомлення
Створіть акаунт або увійдіть у нього для коментування
Ви маєте бути користувачем, щоб залишити коментар
Створити акаунт
Зареєструйтеся для отримання акаунта. Це просто!
Зареєструвати акаунтУвійти
Вже зареєстровані? Увійдіть тут.
Увійти зараз