vitalman Опубліковано: 16 вересня 2015 Поділитись Опубліковано: 16 вересня 2015 Имеется стена: 1) Газоблок 300 мм 2) Базальтовая вата 100 мм 3) Вент зазор ок 40 мм 4) Облицовка. Куда и как лучше устанавливать окно? На ГБ, над ватой (перемычками) или непосредственно на облицовку? Посилання на коментар Поділитися на інших сайтах More sharing options...
Костянычь Опубліковано: 16 вересня 2015 Поділитись Опубліковано: 16 вересня 2015 Конечно к стене из ГБ Посилання на коментар Поділитися на інших сайтах More sharing options...
ViknaStar Опубліковано: 16 вересня 2015 Поділитись Опубліковано: 16 вересня 2015 Основные правила установки оконного блока по сечению стены следующие: в однослойных стенах оконный блок размещают ровно посредине толщины стены; в двухслойных стенах оконную раму устанавливают в максимальном приближении к наружной части стенки, практически соприкасаясь с изоляционным слоем. Идеальное решение - осажденная рама, когда окно выступает за поверхностью стены и его по всему периметру окружает термоизоляционный слой; в трехслойных стенах оконный блок устанавливается непосредственно в теплоизоляционном слое - это Ваш случай Т.е. с одной стороны правильно установить окно в зоне утеплителя, но сразу возникает проблема с крепежом окна и специальными нижними монтажными консолями, позволяющими выдвижение окна за пределы поверхности стены. Поэтому большинство и устанавливают в плоскости газобетона 1 Посилання на коментар Поділитися на інших сайтах More sharing options...
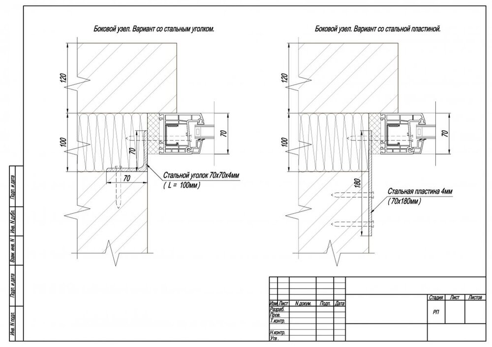
Ruslan R Опубліковано: 16 вересня 2015 Поділитись Опубліковано: 16 вересня 2015 Куда и как лучше устанавливать окно? Ваш вариант со стальной пластиной. Также перед установкой окон по периметру проема (вентзазора) установите утеплитель на глубину 100-150мм, таким образом монтажный шов окна будет не в зоне вентзазора (пустоты). 1 Посилання на коментар Поділитися на інших сайтах More sharing options...
vitalman Опубліковано: 1 жовтня 2015 Автор Поділитись Опубліковано: 1 жовтня 2015 Т.е. с одной стороны правильно установить окно в зоне утеплителя, но сразу возникает проблема с крепежом окна и специальными нижними монтажными консолями, позволяющими выдвижение окна за пределы поверхности стены. Да, возникла - где такие консоли можно достать? =) Посилання на коментар Поділитися на інших сайтах More sharing options...
Рекомендовані повідомлення
Створіть акаунт або увійдіть у нього для коментування
Ви маєте бути користувачем, щоб залишити коментар
Створити акаунт
Зареєструйтеся для отримання акаунта. Це просто!
Зареєструвати акаунтУвійти
Вже зареєстровані? Увійдіть тут.
Увійти зараз