Перейти до публікації
Пошук в
  • Додатково...
Шукати результати, які містять...
Шукати результати в...

Для умельцев. Котёл длительного горения.

Jura

Рекомендовані повідомлення

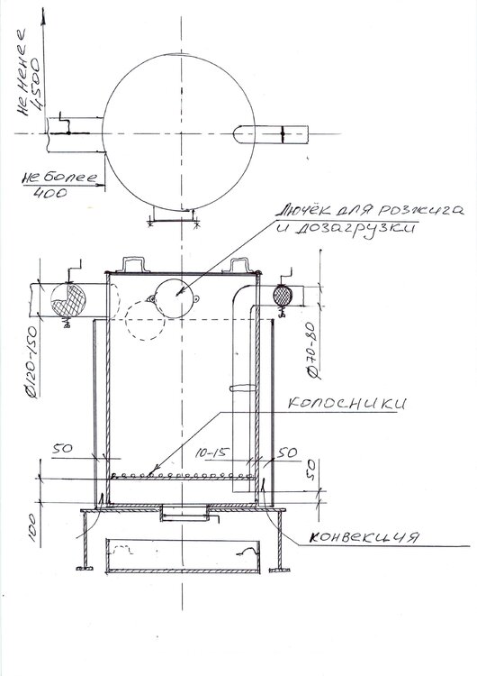
Для умельцев и тех кому требуется отопление с высокой экономией топлива. Если есть вопросы, обращайтесь. Изготовить можно из 3-х 200-т литровых бочек, из пропанового баллона, одним словом для фантазии большой простор. Можно производить и в конвекционном исполнении и в жидкостном.

392818389_.thumb.jpg.8770f1560170f0a893d14d24e5657354.jpg

Посилання на коментар
Поділитися на інших сайтах

Створіть акаунт або увійдіть у нього для коментування

Ви маєте бути користувачем, щоб залишити коментар

Створити акаунт

Зареєструйтеся для отримання акаунта. Це просто!

Зареєструвати акаунт

Увійти

Вже зареєстровані? Увійдіть тут.

Увійти зараз
×
×
  • Створити...