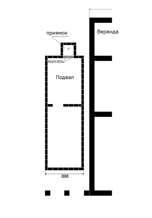
maste Опубліковано: 16 жовтня 2015 Поділитись Опубліковано: 16 жовтня 2015 Имею подвал залитый сверху монолитной бетонной плитой, стены подвала из шлакоблока. Грунт: чернозем 50 см, глина 50-70 см, дальше песок, подвал сухой, грунтовые воды низко. Над подвалом будут топочная и гараж, который имеет общую стену с домом. Хочу пробурить скважину рядом со стеной подвала, потом удалить грунт и сделать приямок, который сверху будет залит бетонной крышкой. В крышке будет отверстие диаметром 30-40 см расположенное над трубой скважины. Крышка приямка будет присыпана грунтом, сверху будет тротуарная плитка, т.е. при необходимости плитку можно снять и получить доступ к скважине. Вырезаю шлакоблоки в стене подвала и имею доступ к скважине из подвала. Как вам такой вариант? По моему он решает многие проблемы. И еще есть один вопрос к специалистам: если пробурить скважину сейчас, а начать эксплуатировать летом, какие проблемы могут возникнуть? У соседей глубина скважин примерно 40 м. Посилання на коментар Поділитися на інших сайтах More sharing options...
kuld Опубліковано: 16 жовтня 2015 Поділитись Опубліковано: 16 жовтня 2015 Существует большая вероятность того, что при бурении вода размоет грунт и пойдет прямо в Ваш "сухой" подвал. Тогда надо будет отступать подальше от стен дома. И как Вы собираетесь через отверстие 30-40 см доставать насос, если с ним что-то случиться? Разбирать плитку? Подумайте над нормальным приямком со свободным доступом. Скважину можете делать сейчас, а начинать ее эксплуатировать хоть через 5 лет - ничего с ней не будет. Посилання на коментар Поділитися на інших сайтах More sharing options...
maste Опубліковано: 16 жовтня 2015 Автор Поділитись Опубліковано: 16 жовтня 2015 Существует большая вероятность того, что при бурении вода размоет грунт и пойдет прямо в Ваш "сухой" подвал. Ну это меня не пугает т.к. пол в подвале песок. И как Вы собираетесь через отверстие 30-40 см доставать насос, если с ним что-то случиться? А какого диаметра должно быть отверстие? Или сделать съемной всю крышку? Разбирать плитку? Подумайте над нормальным приямком со свободным доступом. Плитку, надеюсь, разбирать буду не часто. А доступ до приямка из сухого и теплого помещения это большой плюс. Скважину можете делать сейчас, а начинать ее эксплуатировать хоть через 5 лет - ничего с ней не будет. То есть можно вызвать бригаду которая "пробурит" и первично прокачает скважину и оставить все до лета? Посилання на коментар Поділитися на інших сайтах More sharing options...
kuld Опубліковано: 16 жовтня 2015 Поділитись Опубліковано: 16 жовтня 2015 Ну это меня не пугает т.к. пол в подвале песок. Если вода уйдет в подвал, то тогда технически не будет возможности для бурения. А какого диаметра должно быть отверстие? Или сделать съемной всю крышку? Если доступ в приямок будет с самого подвала, то тогда 30-40 см вполне хватит для того чтобы достать насос. Но сверху будет еще плитка. Посилання на коментар Поділитися на інших сайтах More sharing options...
maste Опубліковано: 16 жовтня 2015 Автор Поділитись Опубліковано: 16 жовтня 2015 Если вода уйдет в подвал, то тогда технически не будет возможности для бурения. Спасибо за подсказку. Можно ли решить эту задачу? Посилання на коментар Поділитися на інших сайтах More sharing options...
kuld Опубліковано: 16 жовтня 2015 Поділитись Опубліковано: 16 жовтня 2015 Спасибо за подсказку. Можно ли решить эту задачу? Надо смотреть по месту - думаю, нет ничего невозможного. Посилання на коментар Поділитися на інших сайтах More sharing options...
maste Опубліковано: 16 жовтня 2015 Автор Поділитись Опубліковано: 16 жовтня 2015 Это радует Посилання на коментар Поділитися на інших сайтах More sharing options...
maste Опубліковано: 17 жовтня 2015 Автор Поділитись Опубліковано: 17 жовтня 2015 Если доступ в приямок будет с самого подвала, то тогда 30-40 см вполне хватит для того чтобы достать насос. Но сверху будет еще плитка. Сегодня идя по улице увидел возможное решение данной задачи, называется "ковер газовый большой" (диаметр основания - 390 мм, диаметр крышки - 240 мм, высота - 230 мм) т.е. при необходимости через этот люк можно вытянуть насос на улицу. Посилання на коментар Поділитися на інших сайтах More sharing options...
Рекомендовані повідомлення
Створіть акаунт або увійдіть у нього для коментування
Ви маєте бути користувачем, щоб залишити коментар
Створити акаунт
Зареєструйтеся для отримання акаунта. Це просто!
Зареєструвати акаунтУвійти
Вже зареєстровані? Увійдіть тут.
Увійти зараз