OLEG-UA Опубліковано: 22 липня 2009 Поділитись Опубліковано: 22 липня 2009 ВВОДНАЯ Есть желание построить економ. дом с отдельно стоящим гаражом-хозблоком с погребом. Семья на 4 чел. (я с женой, старшая девочка -18 лет. и младшенькая 10 мес. ), а по пожже может кто из родителей к нам присоединиться. Участок 30*30 м. (ну почти. По сторонам + и – 1м.). По горизонту перепад в - 15-10 см. На юг. Думаю можно не учитывать. Дом одно этажный.... Хотелось бы. Да боюсь мало места на участке. Строения планирую разместить в северо-западной части участка. Зона отдыха на участке на юго-западе (от туда и вид на лес должен быть). Обстановка (рекогносцировка) вокруг участка. С Запада- заезд (от дороги 180-200 м.) на участок. Заезд на дорогу к участку с севера от участка. Юг – участки соседей*, а метров ч/з 150 лес. Восток - участки соседей. (участки соседей – поле на 200-500 м. вокруг). Вопросы. 1. Какие нормы отступа строений от границы участка (можно ли , чтобы одна стена гаража как бы формировала часть забора) ? 2. Не могу придумать как разместить строения (гараж, дом и ещё навес для 2-го авто) с коммуникациями (скважина, септик), на участке (до метра) ? Стал осваивать програмку - аркон. Такой кАшмар выходит. 3. Можно ли в дом около =12*12 м.(+/- 1-2м.) разместить все помещения (чит. дальше)? По дому есть идея на первом эт. сделать основную жилую зону (3 спальни или мин. 2 шт.).На второй эт. вынести две спальни + 1 с.у. и какой-то чюланчик на шо там место останется, т.к. мне не нравиться мансардные эт. (скошенные потолки и т.д. и т.п.), то выходит либо в полных 2 эт.(«-« останется много лишней площади) Либо на втором эт. Вывести стены вертикальными. У папы дача, так там на «ломаной» крыше так сделано. Правда не высокий потолок (около 2,5м.). И большие «пазухи-карманы» по бокам крыши. Все проекты, что я видел с жилой зоной на втором эт. А бывают вообще такие проекты ? 4. Как разместить все 3 спальни (согласно «фен-шую») окнами на восход ? Всё выше сказаное мой мозг не может как-то хотя бы приблизительно визиалюзировать (придумать), шо там, куда и как ?. Пардон за много букв. ВСЕМ кто дочитал до конца спасибо ! А ВСЕМ КТО ДАСТ ДЕЛЬНЫЕ СОВЕТЫ, РЕКОМЕНДАЦИИ, ИДЕИИ ОГРОМНОЕ СПАСИБО !!! П.С. Сплю плохо. Читаю только «ужасные» строй журналы и книги. Меньше стал думать о женщинах. Посилання на коментар Поділитися на інших сайтах More sharing options...
ivinn Опубліковано: 22 липня 2009 Поділитись Опубліковано: 22 липня 2009 ВВОДНАЯ Меньше стал думать о женщинах. Зря батинька, зря. Посилання на коментар Поділитися на інших сайтах More sharing options...
OLEG-UA Опубліковано: 22 липня 2009 Автор Поділитись Опубліковано: 22 липня 2009 Зря батинька, зря. я иправлюсь всё больше будет ли удобно моим женщинам (3,5 (0,5 -кошка ;)))в доме. Посилання на коментар Поділитися на інших сайтах More sharing options...
OLEG-UA Опубліковано: 22 липня 2009 Автор Поділитись Опубліковано: 22 липня 2009 (змінено) Зря батинька, зря. я исправлюсь всё больше думаю, а будет ли удобно моим женщинам (3,5 (0,5 -кошка ;))) в доме. Змінено 22 липня 2009 користувачем OLEG-UA Посилання на коментар Поділитися на інших сайтах More sharing options...
Stolica999 Опубліковано: 23 липня 2009 Поділитись Опубліковано: 23 липня 2009 Над этим ия сам думаю,остановился на этом,теперь подстраиваю под свои реалии Посилання на коментар Поділитися на інших сайтах More sharing options...
OLEG-UA Опубліковано: 23 липня 2009 Автор Поділитись Опубліковано: 23 липня 2009 Stolica999 этот проэтк обсуждали в др. ветке. нормальный проэкт. только маловата кв. м. у спален и с.у. . Добавить бы им по пару кв. метров. Посилання на коментар Поділитися на інших сайтах More sharing options...
Anna Опубліковано: 23 липня 2009 Поділитись Опубліковано: 23 липня 2009 Олег, мы сейчас строим дом по этому проекту - Дамьян ((ссылка устарела)). Это не совсем то, что Вам надо, как минимум т.к. он с гаражом и комнат меньше, чем Вам хотелось (всего 4, одну из которых (ІІІ) я б переделала в гардеробную), и один санузел. Но может что-то натолкнет на мысль. Заезд как раз может быть с севера, и 3 комнаты выходят окнами на восток, как Вы и хотели. 1 Посилання на коментар Поділитися на інших сайтах More sharing options...
OLEG-UA Опубліковано: 23 липня 2009 Автор Поділитись Опубліковано: 23 липня 2009 Anna Спасибо. Во-о-т уже и идеи в голову пошли. Щя в пятнашки поиграю... Заезд на участок с запада. Посилання на коментар Поділитися на інших сайтах More sharing options...
Anna Опубліковано: 23 липня 2009 Поділитись Опубліковано: 23 липня 2009 Anna Заезд на участок с запада. Сорри, это я прочла про заезд с дороги - с севера. Кстати, мы от вас недалеко - можете подъехать, посмотреть как оно вживую... Посилання на коментар Поділитися на інших сайтах More sharing options...
OLEG-UA Опубліковано: 23 липня 2009 Автор Поділитись Опубліковано: 23 липня 2009 На каком растоянии от граници участка можно ставить гараж ? Дом вроде мин. на 4 м. от граници. Посилання на коментар Поділитися на інших сайтах More sharing options...
OLEG-UA Опубліковано: 23 липня 2009 Автор Поділитись Опубліковано: 23 липня 2009 Вот набросал план участка. файл (3 шт.)в архиве из аркона 2 шт. и в рисунке. Меня смущает то, что маловато места от дома на восток 10 м. и на юг 9,5 м. На юг и запад (перед домом) планируется зона отдыха (тераска, качелька детке, то да сё ). На север отдома до гаража 3 м. - типа навес для 2-й авто. Перед домом и гаражом думаю оставить 5 м. (может гостит приедут с ночёвкой, то машинку можно загнать на территорию). Как-то всё разбросано получилось...... Мало места с южной, восточной стороны дома. Боюсь домик нужно будет уменьшать в 12*12м. и перед домом оставить 4м. Мало не будет ?:sad:участок.rar Посилання на коментар Поділитися на інших сайтах More sharing options...
вторик Опубліковано: 23 липня 2009 Поділитись Опубліковано: 23 липня 2009 Рекомендую Вам уйти от пятнашек. Для разнообразия определится в каком доме хотите жить, можно идти от внешнего вида (стиля) www.proxima.com.ua/gallery_new/housestyle.html можно от внутреннего www.proxima.com.ua/gallery_new/designstyle.php и пятнашки сами уложатся. 1 Посилання на коментар Поділитися на інших сайтах More sharing options...
Anna Опубліковано: 23 липня 2009 Поділитись Опубліковано: 23 липня 2009 Рекомендую Вам уйти от пятнашек. Для разнообразия определится в каком доме хотите жить, можно идти от внешнего вида (стиля) www.proxima.com.ua/gallery_new/housestyle.html можно от внутреннего www.proxima.com.ua/gallery_new/designstyle.php и пятнашки сами уложатся. Мне кажется не совсем правильно исходить именно из стиля в самом начале, тем более что очень мало реально людей, которые ведерживают дома в одном стиле. Лучше задуматься о своих потребностях, соотнести их с ограничениями, наложенные внешними обстоятельствами (размер участка, наличие денег и т.д.). Т.е. определиться, что больше по душе: одно- или двухэтажный дом, гараж встроенный или отдельно стоящий, важна ли большая площадь сада/огорода или цветников, нужны ли беседки на участке или сауны/бани. Т.е. то, без чего реально будешь испытывать дискомфорт. Затем можно посмотреть различные варианты внутренних планировок домов, подходящих под заданные условия, и: либо купить один из готовых проектов, либо заказать архитектору разработку, либо рисовать самому. Ну и при этом уже думать о стиле интерьера и экстерьера дома. 2 Посилання на коментар Поділитися на інших сайтах More sharing options...
Tugarin Опубліковано: 23 липня 2009 Поділитись Опубліковано: 23 липня 2009 Мне кажется не совсем правильно исходить именно из стиля в самом начале... 100% истина. Посилання на коментар Поділитися на інших сайтах More sharing options...
OLEG-UA Опубліковано: 23 липня 2009 Автор Поділитись Опубліковано: 23 липня 2009 Про стили это Д-а-а-а.... Бьюджет диктует свой стиль- ЭКОНОМ ! Хотя очень нравится "этника". Така собі хатинка на 200 кв. м. Мазанка. Церезітом - мазанка. :D та розмальована. Я даже боюсь узнавать сколько будет стоить накрыть камышом крышу. :sad: Да и как потом выдержать дизайн в нутри хатынкы ? Отаке. Посилання на коментар Поділитися на інших сайтах More sharing options...
holod0 Опубліковано: 3 вересня 2009 Поділитись Опубліковано: 3 вересня 2009 Добрый день! Предлагаю посмотреть страничку proekty.muratordom.com.ua/kolekcje.htm, где найдете проекты на любой вкус. Большой плюс - это то, что дома очень экономны при строительстве, удобная планировка помещений и полные комплекты проектной документации. За один год существования в Украине, очень хорошо себя зарекомендовала. На этом сайте: Количество проектов в коллекции: 0 Проекты для презентации отсутствуют. Извините Посилання на коментар Поділитися на інших сайтах More sharing options...
alexmetall Опубліковано: 7 вересня 2009 Поділитись Опубліковано: 7 вересня 2009 Советую посмотреть эти проекты. plans.ru/optim.php Домики очень практичные, в своей жизни уже переделал немало похожих. Наружная отделка - любая по желанию.(Видел "мазанку" с деревяным фахверком, сайдинг, "короед", покраску, лицевой кирпич и т.д.) Посилання на коментар Поділитися на інших сайтах More sharing options...
OLEG-UA Опубліковано: 22 вересня 2009 Автор Поділитись Опубліковано: 22 вересня 2009 Далі... Розвидняється. Прикинул (на листочке в клеточку) расположение дома и отдельно стоящего гаража (Вариант А) понял, что по фасаду маловат участок в 30*30 м. Дом думаю строить (начитавшись полезностей от ИЗБЫ) с гравитационным отоплением на радиаторах. Газ провести можно. Вопрос. 1 Основная идея дома – это жилая зона на первом эт., то есть нужно 2 комнаты по 15 кв. м. +/- 2-3 м. туда-сюда., 2 с/у. А второй эт. для гостей и молодёжи. Это 2 ком. и с/у. Которые кстати можно доделать потом. У второго эт. есть одна особенность – это типа мансарда , но внутри стены вертикальные от пола до потолка, дом с фронтонами куда выходят окна комнат. Планировал гараж-хозблок отдельно стоящий со смотровой ямой и подвалом для склада продуктов питания (картошка, консервация, и т.п.). Теперь отказавшись (ну почти) от него думаю делать подвал в доме. Но подвал площадью в 100 и более кв. м. думаю, что не к чему. Да и деньги тратить лишние нет желания. Вопрос 2. Вариант Б – Гараж пристроен к дому. НО ! Даже так у меня выходит довольно широкий дом - около 14-16 м. по фасаду (гараж – 4 м и дом примерно 10*10-12 м ). Вариант В – Дом с цокольным эт. И в цоколе гараж и всё остальное. Дом по фасаду 10-12 м. Вопрос 3. Вопросы. 1. Обязательно ли нужен подвал для гравитационного отопления ? 2. Можно ли сделать цокольный эт. на половину площади дома ? 2.1. И если «да» то фундамент нужно делать весь в одинаковую глубину (т.е. весь фундамент , допустим, 2,4 м. и в земле весь фундамент одинаков -1,2 м.) ? 3. А оно мене такое большое надо ? Может можно как-то всё тоже самое но меньше-дешевле ? Посилання на коментар Поділитися на інших сайтах More sharing options...
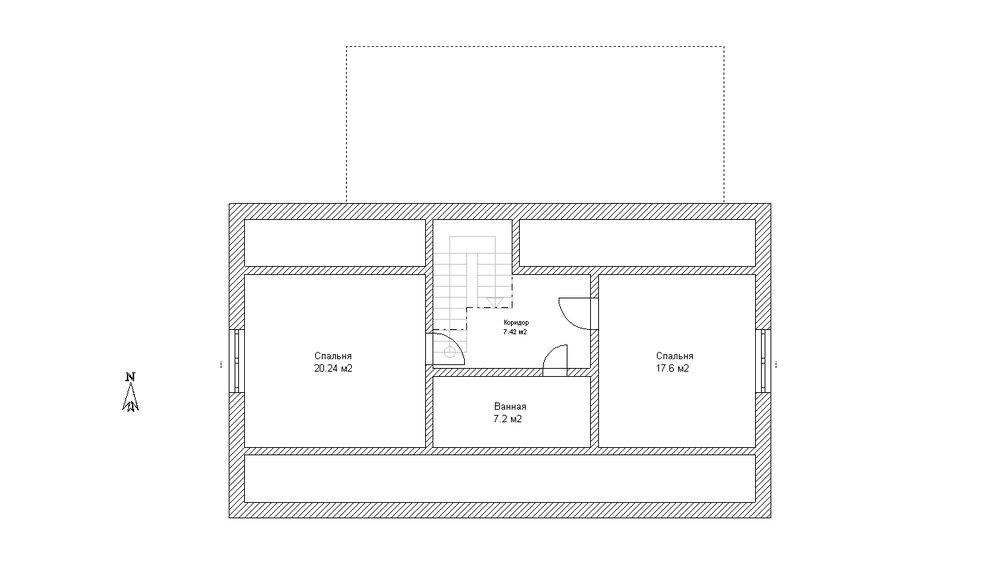
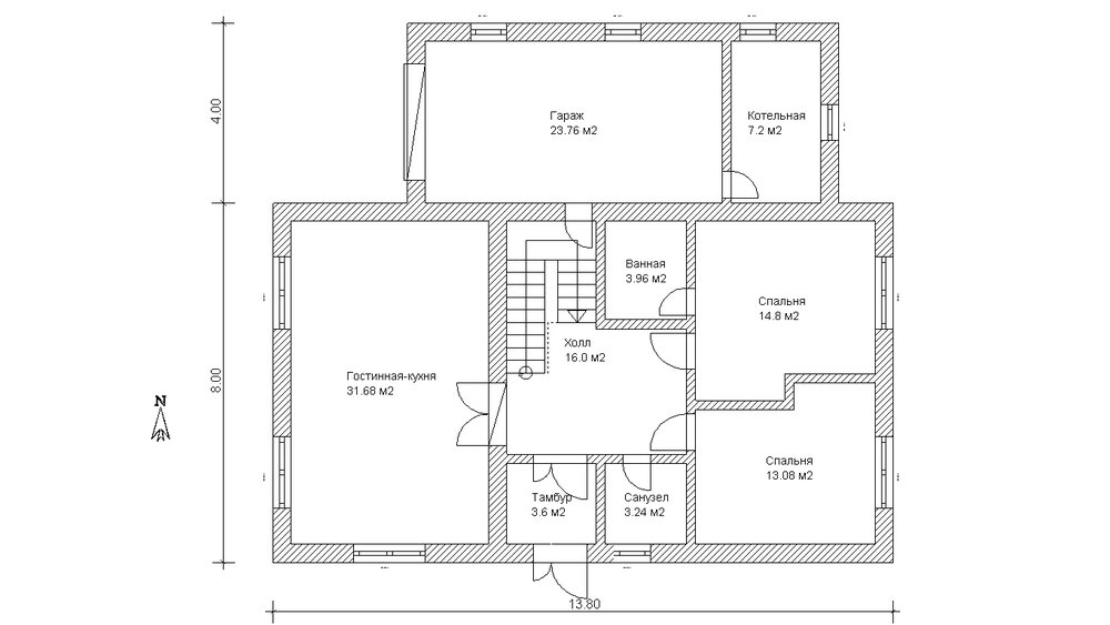
Tugarin Опубліковано: 23 вересня 2009 Поділитись Опубліковано: 23 вересня 2009 Здравствуйте. Попытка ответить на 3 Ваш вопрос. 2 Посилання на коментар Поділитися на інших сайтах More sharing options...
OLEG-UA Опубліковано: 23 вересня 2009 Автор Поділитись Опубліковано: 23 вересня 2009 (змінено) ВАХ !!!! Дарагой ты мой Tugarin ! Ай маладэц ! Почти оно. На 75%. Где такой смотрет-выбарать ? А подвальчик как же ? Змінено 23 вересня 2009 користувачем OLEG-UA забыл написать Посилання на коментар Поділитися на інших сайтах More sharing options...
Tugarin Опубліковано: 23 вересня 2009 Поділитись Опубліковано: 23 вересня 2009 ВАХ !!!! Дарагой ты мой Tugarin ! Ай маладэц ! Почти оно. На 75%. Где такой смотрет-выбарать ? А подвальчик как же ? Набросал сам. Если надо подкорректируем и дальше с готовым планом в проектную организацию или к архитектору. Посилання на коментар Поділитися на інших сайтах More sharing options...
alexmetall Опубліковано: 23 вересня 2009 Поділитись Опубліковано: 23 вересня 2009 А как Вам такие варианты? Гараж пристраивается по короткой стороне(8м) Или же отдельным зданием. При желании может быть без терас(комнаты больше) Посилання на коментар Поділитися на інших сайтах More sharing options...
alexmetall Опубліковано: 23 вересня 2009 Поділитись Опубліковано: 23 вересня 2009 Сорри - в предыдущем сообщении картинки битые. Здесь - лучше01.pdf02.pdf 1 Посилання на коментар Поділитися на інших сайтах More sharing options...
OLEG-UA Опубліковано: 23 вересня 2009 Автор Поділитись Опубліковано: 23 вересня 2009 alexmetall не всё понял на рисунке. Там нет букв. Зарарлючки. И не видно размеров дома. Лестница в гостинной как-то меня насторажимает. Да и площадь гостинной мне не известна. Ага-а... вжє бачю Посилання на коментар Поділитися на інших сайтах More sharing options...
OLEG-UA Опубліковано: 23 вересня 2009 Автор Поділитись Опубліковано: 23 вересня 2009 Tugarin - Вы архитектор или просто умеете в программке работать ? и если да то в какой ? Посилання на коментар Поділитися на інших сайтах More sharing options...
Рекомендовані повідомлення
Створіть акаунт або увійдіть у нього для коментування
Ви маєте бути користувачем, щоб залишити коментар
Створити акаунт
Зареєструйтеся для отримання акаунта. Це просто!
Зареєструвати акаунтУвійти
Вже зареєстровані? Увійдіть тут.
Увійти зараз