Перейти до публікації
Пошук в
  • Додатково...
Шукати результати, які містять...
Шукати результати в...

Рассчет стоимости работы по крыше

zai

Рекомендовані повідомлення

Имеется проект.

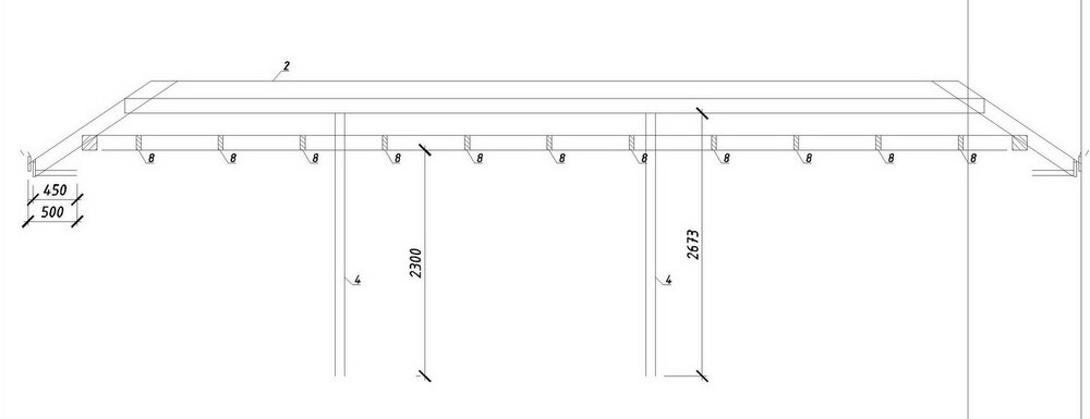
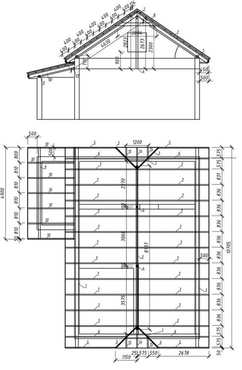
Крыша шифер 113 кв.м, утепленная (83 кв м утеплителя) со всеми гидробарьерами и паробарьерами, водостоками и.т.п.

 

Жду в личку рассчета цен с разбивкой на

 

1. Стропильно-шиферные работы

2. подшивка сайдингом

3. Работа по утеплению

4. Работа по водостокам

 

На оставленные телефоны без указания цен с предложениям позвонить и договориться реагировать не буду.

 

Начало работ в в ближайшие 2 недели.

2122784551_Roof.thumb.jpg.a464c55e557f4f37b47d0dbb9deee3b5.jpg

1675563295_Roof.........._p01.thumb.jpg.6222993372646d18aeaf6bcbceeaa3ff.jpg

Roof......_p01(1).thumb.jpg.317953255863d9f9838afadad48cd583.jpg

Roof......_p01.thumb.jpg.887c9d1e080a2c09e5a885cbf1e86559.jpg

1105913079_.thumb.jpg.2cc1c4a9adc3f6a5e80a68436de851ed.jpg

Посилання на коментар
Поділитися на інших сайтах

Имеется проект.

Крыша шифер 113 кв.м, утепленная (83 кв м утеплителя) со всеми гидробарьерами и паробарьерами, водостоками и.т.п.

 

Жду в личку рассчета цен с разбивкой на

 

1. Стропильно-шиферные работы

2. подшивка сайдингом

3. Работа по утеплению

4. Работа по водостокам

 

На оставленные телефоны без указания цен с предложениям позвонить и договориться реагировать не буду.

 

Начало работ в в ближайшие 2 недели.

 

 

1. Стропильно-шиферные работы м2 100-130 гр

2. подшивка сайдингом мп 45-50 гр

3. Работа по утеплению м2 20-25гр

4. Работа по водостокам мп 35-40 гр

Посилання на коментар
Поділитися на інших сайтах

1. Стропильно-шиферные работы-90 гр. м2

2. подшивка сайдингом- 60 гр м.п

3. Работа по утеплению-30 гр м2

4. Работа по водостокам-20гр м.п

 

 

8067-440-15-84 Виктор

Посилання на коментар
Поділитися на інших сайтах

1. Стропильно-шиферные работы-90 гр. м2

2. подшивка сайдингом- 60 гр м.п

3. Работа по утеплению-30 гр м2

4. Работа по водостокам-20гр м.п

Саша 80970464526 бригадир

скидки

Посилання на коментар
Поділитися на інших сайтах

Имеется проект.

Крыша шифер 113 кв.м, утепленная (83 кв м утеплителя) со всеми гидробарьерами и паробарьерами, водостоками и.т.п.

 

Жду в личку рассчета цен с разбивкой на

 

1. Стропильно-шиферные работы

2. подшивка сайдингом

3. Работа по утеплению

4. Работа по водостокам

 

На оставленные телефоны без указания цен с предложениям позвонить и договориться реагировать не буду.

 

Начало работ в в ближайшие 2 недели.

 

1. Стропильно-шиферные работы-70гр \м2

2. подшивка сайдингом-40гр м\п

3. Работа по утеплению-15гр м2

4. Работа по водостокам-20гр м\п

Посилання на коментар
Поділитися на інших сайтах

Створіть акаунт або увійдіть у нього для коментування

Ви маєте бути користувачем, щоб залишити коментар

Створити акаунт

Зареєструйтеся для отримання акаунта. Це просто!

Зареєструвати акаунт

Увійти

Вже зареєстровані? Увійдіть тут.

Увійти зараз
×
×
  • Створити...