Перейти до публікації
Пошук в
  • Додатково...
Шукати результати, які містять...
Шукати результати в...

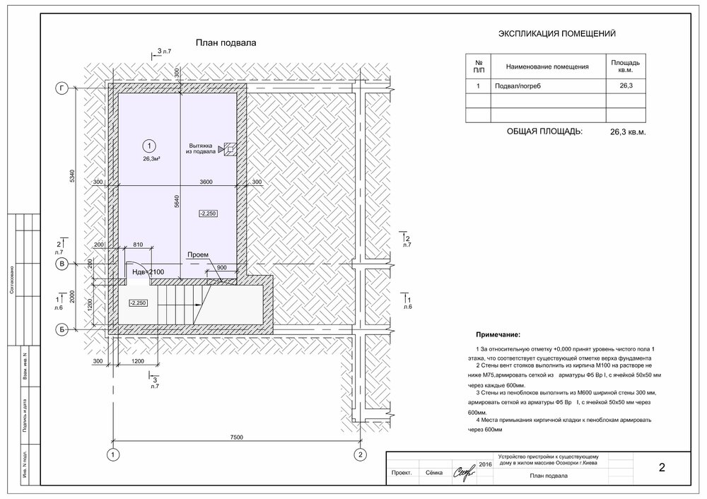
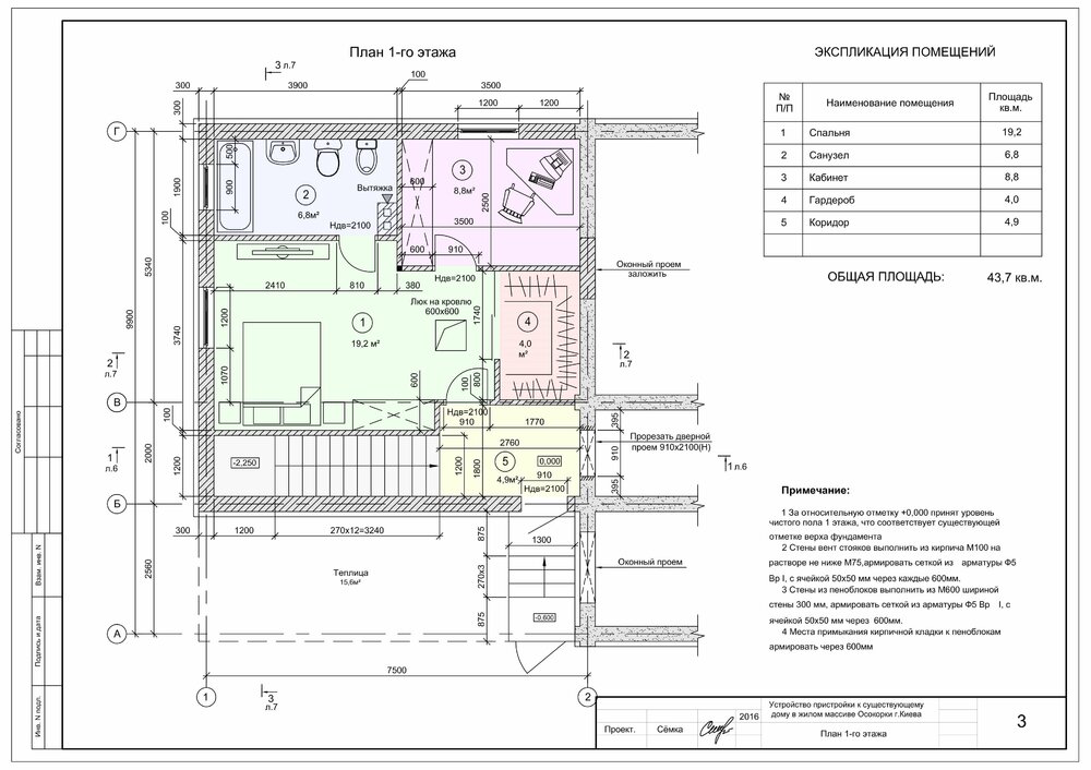
бригаду для строительства фундаментf, погреба, лестницы, перекрытия первого этажа.

Lobastick

Рекомендовані повідомлення

Ищем бригаду для строительства первого этапа пристройки – фундамент, погреб, лестница, перекрытие первого этажа.

Местоположение объекта – Осокорки, Нижние Сады.

Предпочтение отдадим команде, готовой взять на себя доставку стройматериалов по цене не выше рыночной и обладающей рекомендациями с предыдущих объектов.

 

Предложения прошу направлять в личку.

 

Спасибо!

 

С уважением,

 

Ольга.

1120273804__2.thumb.jpg.f45c65dfb54f5d135c9b1156f8ca3923.jpg

187455475__3.thumb.jpg.04e018309b4d9072275daa194c79b5c2.jpg

1757886483__7.thumb.jpg.4e77b77aa0e91a4a3c07670ae129ebf5.jpg

Посилання на коментар
Поділитися на інших сайтах

  • 2 тижні потому...
Всем большое спасибо за участие в тендере. С исполнителем уже определились.
Посилання на коментар
Поділитися на інших сайтах

Створіть акаунт або увійдіть у нього для коментування

Ви маєте бути користувачем, щоб залишити коментар

Створити акаунт

Зареєструйтеся для отримання акаунта. Це просто!

Зареєструвати акаунт

Увійти

Вже зареєстровані? Увійдіть тут.

Увійти зараз
×
×
  • Створити...