Перейти до публікації
Пошук в
  • Додатково...
Шукати результати, які містять...
Шукати результати в...

Подготовка к стройке

tyrd

Рекомендовані повідомлення

Подготовка к стройке и в будущем как бортовой журнал что бы ничего не забыть)

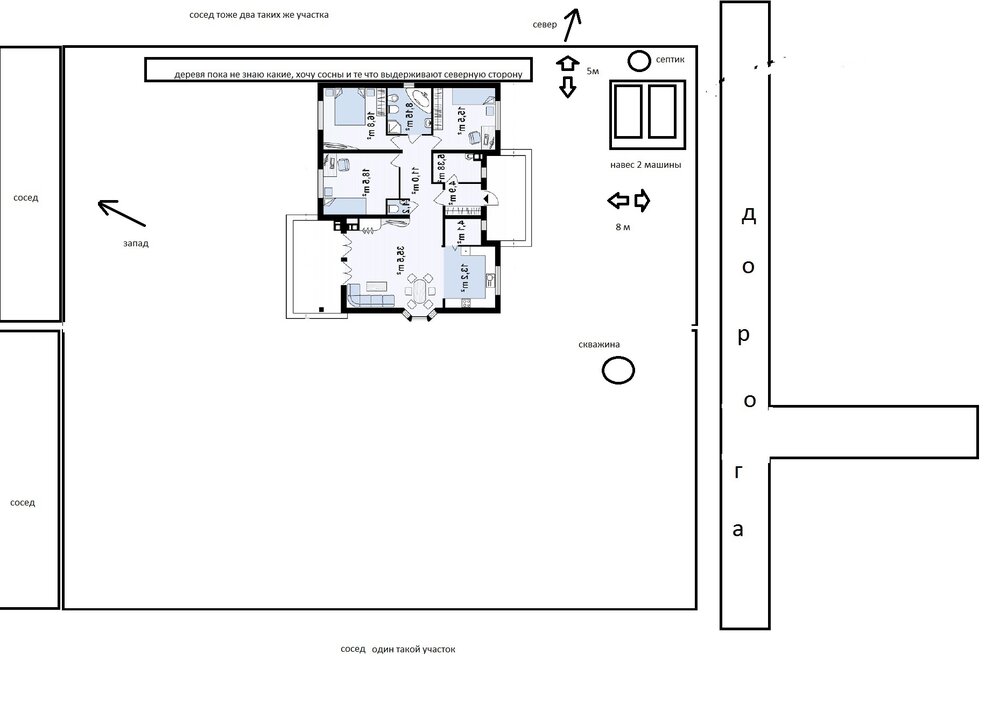
Участок 16 соток, 40*40 м., Перепад от дороги максимум 40см. подсыпка будет делаться уже после фундамента и только на пятно застройки. Верхний грунт песок и вода сейчас очень хорошо уходит. Ну и после совета бывалых принято решение оставлять все.

По своей сути я человек который очень любит планировать и максимально хочет все просчитать дабы избежать ошибок. И вот уже своим рвением и грезами заразил и супругу, так что теперь не только я хочу жить в доме). Последней каплей было когда в очередной раз ребенка разбудил перфоратор соседа и он работал не в соседней квартире, а соседнем парадном!!! Прочитал всю тему «что бы я сделал в доме», штудирую тему «что бы не сделал». Именно она подтолкнула к выбору одноэтажного Z10, .

И вот уже месяц засыпаю с продумыванием что куда и сколько для этого надо денег.

Начать решил с геологии которую буду делать в начале апреля. Весной есть огромное желание забетонировать столбики по периметру, предварительно оставив место для заезда техники и возможно если соседи будут сговорчивые поставить забор. Потом ближе к осени фундамент и 2017 год как минимум коробка+крыша до осени.

И вот главные вопросы на которые тяжело найти ответы

Обустройство территории. Будет дом и навес для авто, может навес с хозблоком, или же пристройка к дому хозблока сразу с северной стороны где будет глухая стена. Кину сразу две трубы к септику, где то видел что очень выручает когда один забивается, короб для проводки к навесу и к калитке с воротами

1. Сколько отступить от забора соседа и дома что бы садить деревья. И нужно ли садить их за самим домом. Так же нужно ли мне сразу поднять уровень ямок, так как где то читал что деревья могут погибнуть если на них потом насыпать много земли.

2. Хватит ли 40 метров от скважины к септику при учете высокого УГВ, сначала думал ее за домом делать, но потом посоветовали с доступом автомобиля откачать если замулится.

3. Делать ли фундамент под забор, материал забора хочу дерево в на хлёст. Супруга очень не хочет сетку и туйки, а в идеале без забора но думаю это не в нашей стране и я люблю приватность, да и ветра там сильные. Так что может и будет профнастил или бетонный.

 

Дом. Самое главная задача, лучше вложить больше на этапе строительства что бы потом экономить и быть максимально автономным. Проект Z10 зеркальный. В проекте все устраивает. У нас семя с трех человек и сильно хотим быть семьей с пяти и больше) Из переделок хочется гостевой санузел расширить за счет комнаты что бы поместился душ+туалет с гигиеническим душем. В кладовке с кухни сделать погребок для небольшого количества закруток и вина, но пока не знаю как это впишется с высоким УГВ. Камин будет только в доме. Обязательно рекуператор, энергосберегающие окна и побольше остекления на юг, возможно эркерное окно сделать в пол и фасадное окно тоже в пол. На крыше пару солнечных батарей.

1. Отопление будет электрическое, счетчика нету двузонного, тариф устанавливает обслуживающая организация. Ориентир подключения 600 у.е.\киловатт, три фазы. Дополнительно в доме камин который будет выполнять функцию твердотопливного котла с разводкой воздуховодом в пару комнат. Изначально конечно мечтал о тепловом насосе, но сейчас сомневаюсь в его полезности. Газ есть возле участка, но стоимость его уже высока и врезка 2000 баксов + проект думаю как минимум столько же, плюс куча времени и нервов.

2. Материал стен. Сначала думал сип панель, потом откинул, воняет мне ОСБ. Дальше были каркасники, но качество дерева в нашей стране и дефицит специалистов в этом сегменте да и цена отпугнули. Да и почитав немного понял, что если взять 300 плотности газоблок и утеплить с наружи, получу тот же эффект по теплому дому. И еще сыграло что осень фундамент, потом коробка с крышей и он себе может стоят год два ждать дальнейших вливаний денег. А в идеале если позволят финансы будет паротерм. Утеплитель пенополиуретан или пеностекло. Может даже вентфасад с плитки+минвата+ветробарьер.

3. Полы в санузлах , кухне, холе плитка с теплым полом, комнаты вот думаю надо ли делать теплый пол если там будет ламинат или может паркет.

4. Что делать с котельной, она мне маленькая кажется и я хочу в ней сделать выход для подключения газового\твердотопливного котла.

5. Недавно читал о теплых стенах и тоже идея нравиться но пока еще не углублялся в это

6. Крыша битумная черепица.

7. Перекрытия возможно плиты перекрытия с газоблока, поверх утеплитель минвата. Говорят что хорошо когда в доме все с однородного материала.

8. Перестенки полнотелый кирпич для лучшей тепло инерции

 

Вот пока что вот такая каша в голове и куча вопросов без ответов. Но есть преимущество в том что есть время для их решения. Не раз заметил что очень помогает вести дневник на форуме и как часто подсказки форумчанинов помогают как сэкономить так и найти оптимальные и нестандартные решения вопросов.

1120414338_.thumb.jpg.1955cf66644edd8e50cafd6e87c05a2d.jpg

Посилання на коментар
Поділитися на інших сайтах

Створіть акаунт або увійдіть у нього для коментування

Ви маєте бути користувачем, щоб залишити коментар

Створити акаунт

Зареєструйтеся для отримання акаунта. Це просто!

Зареєструвати акаунт

Увійти

Вже зареєстровані? Увійдіть тут.

Увійти зараз
×
×
  • Створити...