chewbacca Опубліковано: 2 серпня 2009 Поділитись Опубліковано: 2 серпня 2009 есть капитальный дачный домик на русановских садах в Киеве (~64m2) в этом году достроена пристройка (28m2) под кухню и ванную комнату есть желание провести газ и достроить второй этаж, но ни по процедурам, ни по бюджету в этом году не успеваем. в доме есть печка, плюс планируем поставить бойлер в туалете и 2 конветора в пристройке - должно быть тепло, хотим зимовать. задача - заложить основы отопления и водопровод. приблизительный план во вложении. пояснения: прямоугольник в левой части ванной - место под будущий котел бойлер над унитазом мойка в кухне и рукомойники в туалете и ванной комнате несколько выводов под посудомоечную и стиральную машину выводы отопления в кухню, на второй этаж и в правую часть дома (будут стоять заглушки) ищем бюджетный вариант по подобного рода работам (план + монтаж), желательно у проверенных специалистов. Посилання на коментар Поділитися на інших сайтах More sharing options...
aleksandraleks Опубліковано: 3 серпня 2009 Поділитись Опубліковано: 3 серпня 2009 есть капитальный дачный домик на русановских садах в Киеве (~64m2) в этом году достроена пристройка (28m2) под кухню и ванную комнату есть желание провести газ и достроить второй этаж, но ни по процедурам, ни по бюджету в этом году не успеваем. в доме есть печка, плюс планируем поставить бойлер в туалете и 2 конветора в пристройке - должно быть тепло, хотим зимовать. задача - заложить основы отопления и водопровод. приблизительный план во вложении. пояснения: прямоугольник в левой части ванной - место под будущий котел бойлер над унитазом мойка в кухне и рукомойники в туалете и ванной комнате несколько выводов под посудомоечную и стиральную машину выводы отопления в кухню, на второй этаж и в правую часть дома (будут стоять заглушки) ищем бюджетный вариант по подобного рода работам (план + монтаж), желательно у проверенных специалистов. Добрый день ! Могу предложить выполнение работ по водопроводу и отоплению,по минимальным ценам ,материалы берём со складов Киева.цены приятно вас удивят.Звоните договоримся 80505437268 Александр Алексеевич.А также проводим работы по электрике и по строительству стен .фундаментов ,и внутренних работ. Посилання на коментар Поділитися на інших сайтах More sharing options...
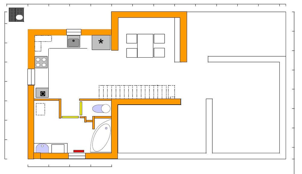
chewbacca Опубліковано: 3 серпня 2009 Автор Поділитись Опубліковано: 3 серпня 2009 добавил обновленный план с размерами... красным отмечены места будущих батарей (в ванной полотенцесушителя) Посилання на коментар Поділитися на інших сайтах More sharing options...
Сергей 31 Опубліковано: 3 серпня 2009 Поділитись Опубліковано: 3 серпня 2009 Уберите котел из ванной комнаты и добавьте радиатор в комнату с 3-я наружными стенами. Посилання на коментар Поділитися на інших сайтах More sharing options...
newt Опубліковано: 3 серпня 2009 Поділитись Опубліковано: 3 серпня 2009 Спасибо большое за совет (это и мой домик тоже . Насчёт радиатора понятно... Там правда ещё застеклённая веранда примыкает, но то уже детали. Вопрос с котлом: извечная проблема с местом. Куда его убрать? В кухню? Говорят, нельзя... Да и некуда там особо, честное слово. Плюс пугают, что мы тут себе напланируем, а прийдут злые дяди газовщики и всё раскритикуют к чертям собачьим. Самый радикальный, на мой взгляд, вариант - оттяпать половину ванной и устроить там котельную. Но как подумаю - жалко до слёз столько места тратить и оставаться с микроскопической ванной... Сергей, пожалуйста, посоветуйте что-нибудь, наверняка Вы сталкивались с подобными проблемами... Посилання на коментар Поділитися на інших сайтах More sharing options...
newt Опубліковано: 3 серпня 2009 Поділитись Опубліковано: 3 серпня 2009 Да, ещё момент: жёлтым на плане примерно отмечены зоны, где мы бы хотели заложить тёплый пол, плюс вывести разводку для него на будущее в остальные комнаты. Это реализуемо? Проблема в том, что пока нельзя сказать точно когда мы победим в неравной битве за газ, но сдаваться не намерены. а стяжку уже очень пора делать, и хочется плиточку положить... Поэтому вся разводка нужна сейчас. Посилання на коментар Поділитися на інших сайтах More sharing options...
Сергей 31 Опубліковано: 4 серпня 2009 Поділитись Опубліковано: 4 серпня 2009 Куда его убрать? В кухню, можно. Если оставите в ванной, возникнет вопрос с газовщиками. Это Вы может, как то решите. Но гарантия на котел слетит точно. Посилання на коментар Поділитися на інших сайтах More sharing options...
chewbacca Опубліковано: 7 серпня 2009 Автор Поділитись Опубліковано: 7 серпня 2009 обновил планы (добавил размеры всех комнат). под вопросом место размещения котла Посилання на коментар Поділитися на інших сайтах More sharing options...
Сергей 31 Опубліковано: 7 серпня 2009 Поділитись Опубліковано: 7 серпня 2009 Для котла, оба варианта подходят. Посилання на коментар Поділитися на інших сайтах More sharing options...
chewbacca Опубліковано: 8 серпня 2009 Автор Поділитись Опубліковано: 8 серпня 2009 Для котла, оба варианта подходят. Спасибо огромное! Посилання на коментар Поділитися на інших сайтах More sharing options...
Рекомендовані повідомлення
Створіть акаунт або увійдіть у нього для коментування
Ви маєте бути користувачем, щоб залишити коментар
Створити акаунт
Зареєструйтеся для отримання акаунта. Це просто!
Зареєструвати акаунтУвійти
Вже зареєстровані? Увійдіть тут.
Увійти зараз