moncherleo Опубліковано: 1 березня 2016 Поділитись Опубліковано: 1 березня 2016 Итак, начинаем! Меня зовут Леонид, я по образованию инженер-полиграфист, закончил КПИ (зоопарк напротив "зоопарка, как любят пошутить некоторые студенты). Очень долгое время жил в Киеве, на небезызвестном районе Троещина, но поскольку у родителей был капитальный дом-дача за Вишневым - трудовая повинность отрабатывалась регулярно с детских лет в виде сначала помощи родителям как разнорабочий, а затем, став постарше - как активный участник в принятии решений по обустройству, закупке материалов и т.д. Пожив последние несколько лет (c 2013 года) в этом доме и сделав за это время часть внутренних работ, отопление и утепление фасада - захотелось построить что-то свое, что больше бы соответствовало моим потребностям в планировке, размерах помещений и используемых современных технологиях. Изначально рассматривались участки неподалеку - в Боярке, в Новом, Тарасовке, Белогородке... но высокие цены на землю и наличие неподалеку свалки между Тарасовкой и Крюковщиной, а также загруженные дороги из-за бурного строительства в близлежащей к Киеву зоне заставили принять решение о поисках в других населенных пунктах Киево-Святошинского района. В итоге, побывав несколько раз в гостях у своих друзей, мне понравились Шпитьки - село, находящееся достаточно далеко, и в то же время достаточно близко к Житомирской трассы, на приемлемом для меня расстоянии до Окружной (17 км от выезда на трассу). Также положительными моментами для меня было наличие друзей на этом же массиве, которые к этому времени уже построили дом и живут там; довольно активная застройка массива (на данный момент количество домов 15+ и строится еще несколько) и наличие подведенной на участок линии электроэнергии от государственной ТП с возможностью повышения мощности потребления, что также дает надежду на быстрое увеличение количества соседских домов. В качестве основы проекта дома был выбран Аплауш от ТМВ, но с изменением планировок и размеров некоторых помещений в меньшую сторону, что в итоге потянуло на разработку индивидуального проекта. На данный момент выполнены следующие этапы: определен и куплен участок 8 соток - 20x40 м с фасадом 20 м; вынос участка в натуру (геодезия); геологические изыскания; переоформлен договор на потребление э/э в Киевоблэнерго; подана заявка на увеличение мощности подключения э/э (поскольку в доме планируется электроотопление по многозонному тарифу из-за дороговизны газа и подключения к нему через частную трубу) проработаны план посадки дома на участок и планировки/фасады с дизайнером-архитектором; поданы документы на изготовление стройпаспорта; запущены работы по разработке проекта в разделе АР с компанией ТМВ Представляю вниманию участников форума фасады будущего дома! В следующих сообщениях добавлю планировки и другие интересные подробности. 12 Посилання на коментар Поділитися на інших сайтах More sharing options...
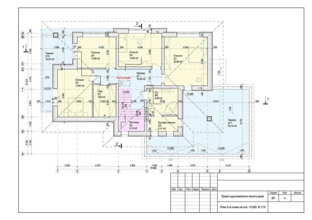
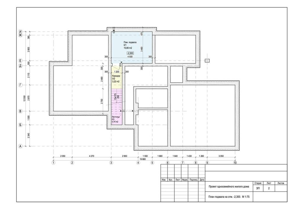
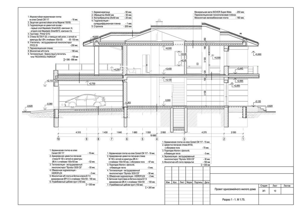
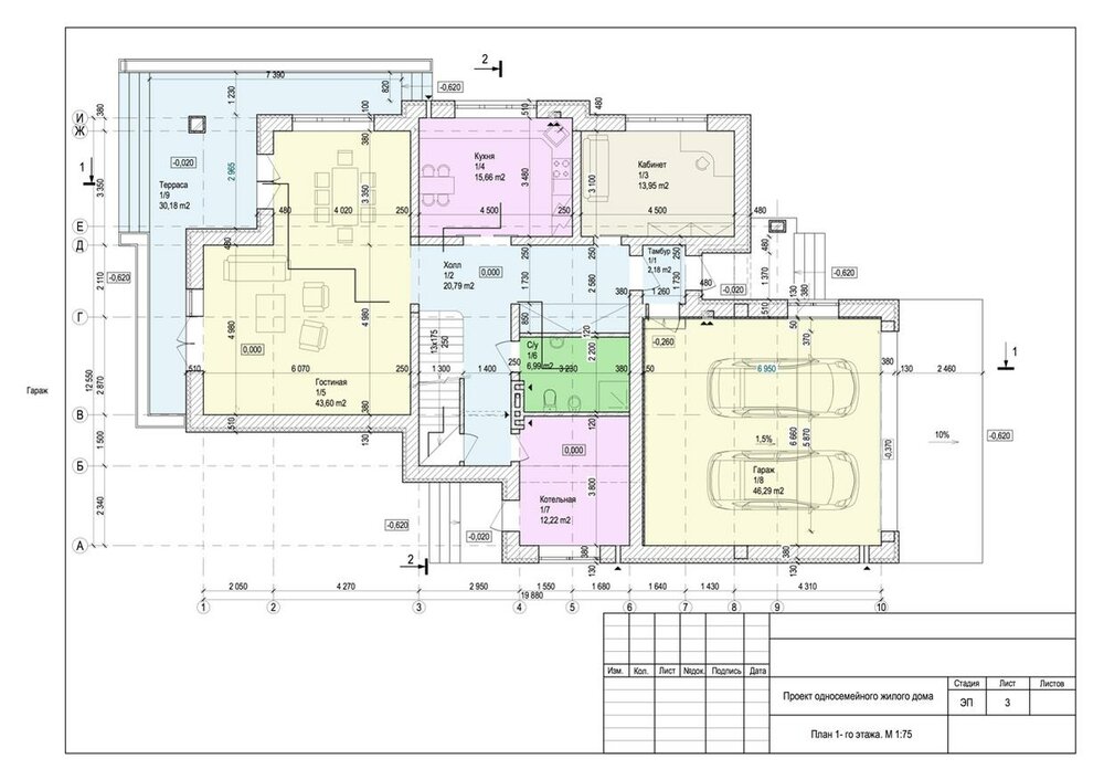
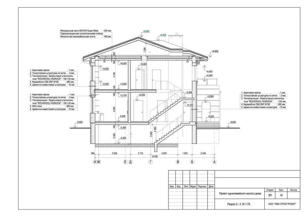
moncherleo Опубліковано: 1 березня 2016 Автор Поділитись Опубліковано: 1 березня 2016 Немного про планировки: не смотря на то, что в базовом проекте кухня имеет открытое окно в столовую, от него было решено отказаться по причине потенциального распространения запахов по всему дому. Ориентация по сторонам света - гараж с западной стороны, лестница с северной, что повлияло на выбор больших окон с восточной и южной стороны. Под кухней будет находится небольшой подвальчик, где будет смонтирована ПУ вентиляции, а также хранится соленья и немного домашнего вина; для пополнения запасов последнего в будущем планируется создать виноградник. Кабинет на 1-м этаже будет гостевой спальней, а к возрасту - и нашей, поскольку возможно уже тяжело будет подниматься на второй этаж. Большой санузел на 2-м этаже разделили, сделав из части площади бытовую комнату (читай - прачечную с глажкой). Отдельно вынесли гардеробную, поскольку с появлением в доме представительниц прекрасной половины человечества количество вещей будет стремительно увеличиваться. На террасе второго этажа над гаражом хочется со временем обустроить зону отдыха, чтобы любоваться закатом с бокалом молодого вина (эскиз любезно предложила моя соседка и давняя подруга Татьяна). Чердачное перекрытие скорее всего все-таки прийдется монолитить, поскольку как мне обьяснил конструктор - из-за пологой крыши получилось много точек опирания, которые потребуют использоваться сдвоенного швеллера в этих, который в свою очередь нужно будет варить, красить, делать влагоизоляцию и по цене это выйдет как монолитное перекрытие; пришлось пока согласиться с их доводами. Фундамент - монолитная лента. Наружние стены планируется возводить из кирпичного блока 2NF от СБК-Озера, внутренние - полнотелым кирпичом (если у кого есть какие рекомендации - буду признателен). Покрытие крыши - стропила будем рассчитывать под натуральную черепицу, но на первом этапе скорее всего накроемся чем-то попроще (битумка, металл, или полимерно-песчаная черепица). В планах на этот год - фундамент, стены, перекрытия и накрыть крышу. 1 Посилання на коментар Поділитися на інших сайтах More sharing options...
moncherleo Опубліковано: 1 березня 2016 Автор Поділитись Опубліковано: 1 березня 2016 По инженерным системам: отопление планируется электрическое, с использованием 3-х зонного счетчика. Как я уже писал ранее - для этого будем повышать мощность подключения (в идеале - до 35 кВт, но по факту - сколько дадут) и устанавливать теплоаккумулятор (предварительно - на 1000л для максимального использования ночного тарифа) и Поротерм Скат 28к. Была еще идея установить резервный ТТ котел, но потом отказались - очень дорого, и постоянная беготня с дровами, а тут еще не так давно у соседа сгорела крыша и второй этаж из-за плохо изолированного дымохода. В перспективах - ТН грунт-вода, но из-за стоимости комплекса под ключ пока отложен в ящик. В качестве схемы отопления будет использоваться водяной теплый пол на обеих этажах + водяные теплые стены (если потянем по бюджету) по наружным стенам (изнутри помещения, конечно). Предполагаем приточную механическую вентиляцию с естественной вытяжной на основе грунтового воздушного воздухообменника примерно вот такой конфигурации, с разводкой по этажам из магистрали. Узел с вентиляторами планируем разместить в подвале, а разводку делать плоскими каналами в подвесном потолке в жилые помещения. Такое решение должно не только обеспечивать дом зимой воздухом плюсовой температуры, но так же создавать дополнительную прохладу в летнее время. Расход воздуха предполагается на уровне 250 м3 в час, из расчета на 4 постоянно проживающих человека. Отдельно разыскивается специалист, готовый за вменяемые деньги довести эту идею до ума. Продукты жизнедеятельности планируется сбрасывать в септик с дренажным полем. Про конструкцию и обьем еще не думали - скорее всего будет бетонный на 2-3 м3. Скважина будет, но позже - пока планируем брать воду у соседей. Планируем бить на Бучакский горизонт, но поскольку посчитали на довольно серьезную сумму (почти 3к у.е.) - отложим на следующий год, когда будем заселяться. На 20-25 метров бить не будем, поскольку сдавали воду из скважины соседей (25 м) на биологический анализ в Інститут колоїдної хімії та хімії води ім. А.В. Думанського - получили III класс биологической опасности "вода непригодна для длительного употребления". Буду признателен за ваши вопросы, советы и рекомендации 2 Посилання на коментар Поділитися на інших сайтах More sharing options...
Natalita Опубліковано: 1 березня 2016 Поділитись Опубліковано: 1 березня 2016 Поздравляю с началом грандиозной стройки.Мы так же построились по данному проекту,с изменениями.Только мы уже на этапе внутренней отделки. 1 Посилання на коментар Поділитися на інших сайтах More sharing options...
moncherleo Опубліковано: 1 березня 2016 Автор Поділитись Опубліковано: 1 березня 2016 Поздравляю с началом грандиозной стройки.Мы так же построились по данному проекту,с изменениями.Только мы уже на этапе внутренней отделки. Спасибо, я перед тем как выбрать этот проект - читал и вашу ветку тоже. Жду когда вы сделаете наружную отделку, чтобы мне меньше пришлось ломать голову :D А забор у вас красивый, наверное украду у вас эту идею с профнастилом под дерево Буду вас догонять! 1 Посилання на коментар Поділитися на інших сайтах More sharing options...
S_Vladimir_79 Опубліковано: 1 березня 2016 Поділитись Опубліковано: 1 березня 2016 теплоаккумулятор (предварительно - на 1000л для максимального использования ночного тарифа) и Поротерм Скат 28к. .... В перспективах - ТН грунт-вода, но из-за стоимости комплекса под ключ пока отложен в ящик. В качестве схемы отопления будет использоваться водяной теплый пол на обеих этажах + водяные теплые стены (если потянем по бюджету) по наружным стенам (изнутри помещения, конечно). Не просчитывали предварительно, во сколько обойдется система обогрева и ТН по отдельности? Посилання на коментар Поділитися на інших сайтах More sharing options...
moncherleo Опубліковано: 1 березня 2016 Автор Поділитись Опубліковано: 1 березня 2016 В ближайших планах: добить Киевоблэнерго и получить у них ТУ и новый автомат 63A получить АР проекта из ТМВ получить строй. паспорт и отправить уведомления в ГАСК, МЧС и пожарникам найти подрядчиков по строительству, получить от них сметы и... НАЧАТЬ СТРОЙКУ! Добавлено через 5 минут Не просчитывали предварительно, во сколько обойдется система обогрева и ТН по отдельности? Система обогрева - это теплый пол с коллекторами и насосами? Нет, еще не просчитывал, но для моих условий энергоносителей это пожалуй самый оптимальный вариант (низкотемпературное отопление), и я ориентируюсь на в первую очередь на этот тип. ТН с грунтовым коллектором (скважины или кластер) под ключ - тут цены немного разнятся, от 14 до 18 тысяч евро (пока рассматривал Nibe, Ochsner). Мощность порядка 18 кВт. Посилання на коментар Поділитися на інших сайтах More sharing options...
S_Vladimir_79 Опубліковано: 1 березня 2016 Поділитись Опубліковано: 1 березня 2016 Система обогрева - это теплый пол с коллекторами и насосами? Нет, еще не просчитывал, но для моих условий энергоносителей это пожалуй самый оптимальный вариант (низкотемпературное отопление), и я ориентируюсь на в первую очередь на этот тип. ТН с грунтовым коллектором (скважины или кластер) под ключ - тут цены немного разнятся, от 14 до 18 тысяч евро (пока рассматривал Nibe, Ochsner). Мощность порядка 18 кВт. Я понимаю, что меня сейчас тапками забросают (у нас на форуме это любят ), но не хотите альтернативное решение просчитаю? ТТ котел Вы не хотите, газ дорого подключать, при этом ставить ТН, который тоже не дешевое удовольствие + срок службы не вечный и сервис тоже должен быть, те же затраты... Есть реальный пример обогрева дома 310 м2, и который можно увидеть и пощупать, как говорится, своими руками. Посилання на коментар Поділитися на інших сайтах More sharing options...
moncherleo Опубліковано: 1 березня 2016 Автор Поділитись Опубліковано: 1 березня 2016 Я понимаю, что меня сейчас тапками забросают (у нас на форуме это любят ), но не хотите альтернативное решение просчитаю? ТТ котел Вы не хотите, газ дорого подключать, при этом ставить ТН, который тоже не дешевое удовольствие + срок службы не вечный и сервис тоже должен быть, тоже затраты... Посчитайте пожалуйста, буду благодарен. Тапками бросаться не люблю - у каждой позиции может быть своя аргументация. ТН мне нравится тем, что он простой как двери - чаще всего там ломается компрессор, который относительно несложно заменить (и не так дорого). Кроме того - половину стоимости системы составляет коллектор, который имеет большой срок эксплуатации по сравнению с самой установкой. Опять же - рентабельность этой затеи будет лучше понятна после ввода в эксплуатацию дома с отоплением на э/э и подсчета расходов на электричество за отопительный сезон. Кстати, я к вам наверное еще буду обращаться попозже по поводу заземления, но пока не понимаю как мне прокладывать и куда подключать кабель заземления в самом доме (ну кроме розеток). Я так понимаю что мне надо выставить 1-2 штыря на самой верхней точке дома (например вент. шахта у конька) и провести заземление по кровельному материалу вниз вдоль фасада снаружи? Эти мысли пришли после Нойферта о заземлении. Единственный потенциальный минус, который вижу - стяжка теплого пола и стены дома возможно не будут запасать достаточно тепла, чтобы сохранять к вечеру комфортную температуру в случае обогрева электрополами с 23-00 до 7-00. Но это больше пока мысль, а не утверждение. Посилання на коментар Поділитися на інших сайтах More sharing options...
S_Vladimir_79 Опубліковано: 1 березня 2016 Поділитись Опубліковано: 1 березня 2016 Посчитайте пожалуйста, буду благодарен. Ок, просчитаю. Цифры для сравнения будут. Кстати, я к вам наверное еще буду обращаться попозже по поводу заземления, но пока не понимаю как мне прокладывать и куда подключать кабель заземления в самом доме (ну кроме розеток). Я так понимаю что мне надо выставить 1-2 штыря на самой верхней точке дома (например вент. шахта у конька) и провести заземление по кровельному материалу вниз вдоль фасада снаружи? Эти мысли пришли после Нойферта о заземлении. Вам РЭС, когда к участку подведет питание, скажет сделать повторное заземление воздушной линии (по нормам так нужно). Его можно сделать сразу возле опоры даже из недорогих материалов, а потом, когда уже будет дом построен полностью, возле щитовой или даже в подвале (если будет), сделаете качественное заземление из нержавейки, поставите шину уравнив. потенциалов (как на картинке по ссылке, или по другому она называется ГЗШ) и к ней уже и присоединять все "земли" потребителей и металлические изделия: розетки, насосы, трубы, ванную и т.д. Добавлено через 10 минут Единственный потенциальный минус, который вижу - стяжка теплого пола и стены дома возможно не будут запасать достаточно тепла, чтобы сохранять к вечеру комфортную температуру в случае обогрева электрополами с 23-00 до 7-00. Но это больше пока мысль, а не утверждение. Вот в этой теме с 247 поста форумчанка хорошо описала работу ТА, что он вообще не нужен оказался, и дальше есть мои вопросы и полетевшие тапки в мою сторону. Посилання на коментар Поділитися на інших сайтах More sharing options...
moncherleo Опубліковано: 1 березня 2016 Автор Поділитись Опубліковано: 1 березня 2016 (змінено) Ок, просчитаю. Цифры для сравнения будут. Вам РЭС, когда к участку подведет питание, скажет сделать повторное заземление воздушной линии (по нормам так нужно). Его можно сделать сразу возле опоры даже из недорогих материалов, а потом, когда уже будет дом построен полностью, возле щитовой или даже в подвале (если будет), сделаете качественное заземление из нержавейки, поставите шину уравнив. потенциалов (как на картинке по ссылке, или по другому она называется ГЗШ) и к ней уже и присоединять все "земли" потребителей и металлические изделия: розетки, насосы, трубы, ванную и т.д. Вот в этой теме с 247 поста форумчанка хорошо описала работу ТА, что он вообще не нужен оказался, и дальше есть мои вопросы и полетевшие тапки в мою сторону. Питание к участку уже подведено вроде бы - счетчик висит на столбе возле участка, 3 фазы, провода в счетчике. У меня не УШП а всего лишь стяжка 70 мм для теплого пола. Мне с ними не потягаться Если брать удельную теплоемкость бетона 1,13 кДж*(кг/K) и удельный вес бетона порядка 2300 кг/м3 то получим для максимальной площади полов помещений 200 м2 запас энергии 36386 кДж*(кг/K). Если считать что максимальная температура теплого пола будет 29 *C, а минимальная температура теплого пола будет 18 *C, то теплый пол будет запасать 400246 кДж, или 111.17 кВт тепловой энергии. Данного тепла хватит для компенсации теплопотерь 70 Вт/м2 для максимальной площади полов помещений 200 м2 только на протяжении 111.17/(0.07*200) = 7.94 ч По приведенной вами ссылке площадь дома (по фундаменту) 12.4x13.1 = 162.44 м2 Обьем бетона в плите 27 м3, что при удельном весе бетона порядка 2300 кг/м3 получится 62.1 т, или 70173 кДж*(кг/K) = 19.4925 кВт. Запасая дельту хотя бы 5 градусов (например с 29 до 24 *C) получаем 97.4625 кВт, а при потерях 0.07 кВт * 162.44 = 11.3708 кВт получаем запас тепла на 8.5 часов. Если дельта будет 11 *C - тогда 214.4175 кВт дадут запас тепла на 18.85 ч. Опять же - в расчет не бралась теплоемкость кирпичных стен и воздуха помещения, но все-таки мне кажется что без теплоаккумулятора (как минимум одного на 1000 л) мне не обойтись Змінено 1 березня 2016 користувачем moncherleo Ошибка в расчетах 1 Посилання на коментар Поділитися на інших сайтах More sharing options...
AndreyS55 Опубліковано: 1 березня 2016 Поділитись Опубліковано: 1 березня 2016 Привет соседям по массиву! На какой улице у Вас участок? Посилання на коментар Поділитися на інших сайтах More sharing options...
moncherleo Опубліковано: 1 березня 2016 Автор Поділитись Опубліковано: 1 березня 2016 Привет соседям по массиву! На какой улице у Вас участок? Здравствуйте! На Калиновой, а у вас? Посилання на коментар Поділитися на інших сайтах More sharing options...
AndreyS55 Опубліковано: 1 березня 2016 Поділитись Опубліковано: 1 березня 2016 Здравствуйте! На Калиновой, а у вас? Тоже на Калиновой)) Может соседи? Вы на прошлой недели бытовку не начинали строить? Посилання на коментар Поділитися на інших сайтах More sharing options...
moncherleo Опубліковано: 1 березня 2016 Автор Поділитись Опубліковано: 1 березня 2016 Тоже на Калиновой)) Может соседи? Вы на прошлой недели бытовку не начинали строить? Нет еще, к сожалению Я так понимаю что вы в том конце улицы, которая к Лычанке? Мы в сторону лесопилки ближе. Посилання на коментар Поділитися на інших сайтах More sharing options...
S_Vladimir_79 Опубліковано: 1 березня 2016 Поділитись Опубліковано: 1 березня 2016 Если брать удельную теплоемкость бетона 1,13 кДж*(кг/K) и удельный вес бетона порядка 2300 кг/м3 то получим для максимальной площади полов помещений 200 м2 запас энергии 15820 кДж*(кг/K). Как Вы вышли на 15820? Я, наверное, что-то не то умножаю Посилання на коментар Поділитися на інших сайтах More sharing options...
moncherleo Опубліковано: 1 березня 2016 Автор Поділитись Опубліковано: 1 березня 2016 Как Вы вышли на 15820? Я, наверное, что-то не то умножаю Это я неправильно умножаю, прошу прощения. 200 м2 х 0,07 м x 2300 кг/м3 х 1,13 кДж*(кг/K) = 36386 кДж/K = 10,10 кВт/К. Но все равно этого хватит лишь на 8 часов для 200 м2 при потерях 70 Вт/м2, а при более низкой температуре уже будет некомфортно. Посилання на коментар Поділитися на інших сайтах More sharing options...
AndreyS55 Опубліковано: 1 березня 2016 Поділитись Опубліковано: 1 березня 2016 Нет еще, к сожалению Я так понимаю что вы в том конце улицы, которая к Лычанке? Мы в сторону лесопилки ближе. Почти по середине, рядом со срубом если знаете, там новые дома в прошлом году из газоблока построили Посилання на коментар Поділитися на інших сайтах More sharing options...
S_Vladimir_79 Опубліковано: 1 березня 2016 Поділитись Опубліковано: 1 березня 2016 200 м2 х 0,07 м x 2300 кг/м3 х 1,13 кДж*(кг/K) = 36386 кДж/K = 10,10 кВт/К. Но все равно этого хватит лишь на 8 часов для 200 м2 при потерях 70 Вт/м2, а при более низкой температуре уже будет некомфортно. Не так много таких дней из 180 отапливаемого сезона. И по моим подсчетам стоимость системы обогрева без учета "котельной" получилась 2300$ (14 программируемых по времени зон обогрева), 22,5 кВт. Посилання на коментар Поділитися на інших сайтах More sharing options...
moncherleo Опубліковано: 2 березня 2016 Автор Поділитись Опубліковано: 2 березня 2016 Не так много таких дней из 180 отапливаемого сезона. И по моим подсчетам стоимость системы обогрева без учета "котельной" получилась 2300$ (14 программируемых по времени зон обогрева), 22,5 кВт. Спасибо, Владимир. Можете мне скинуть в личку коммерческое предложение? Посилання на коментар Поділитися на інших сайтах More sharing options...
S_Vladimir_79 Опубліковано: 2 березня 2016 Поділитись Опубліковано: 2 березня 2016 Спасибо, Владимир. Можете мне скинуть в личку коммерческое предложение? Да, без проблем. Ответил на почту. 1 Посилання на коментар Поділитися на інших сайтах More sharing options...
moncherleo Опубліковано: 3 березня 2016 Автор Поділитись Опубліковано: 3 березня 2016 Вчера был на выставке KyivBuild что на Левобережке. Впечатления - очень мало стендов по стройматериалам, и в основном все знакомые компании. Ходил с целью посмотреть на керамическую черепицу и кирпич. Попал на стенд СБК - узнал что можно делать загодя резерв нужной партии по предоплате с длительным хранением на их складе, и брать по вне-сезонным ценам. Прикинул что нужно будет около 25 тысяч 2НФ, но хочу дождаться более точного подсчета от проектанта на следующей неделе. Кто порекомендует хороший полнотелый кирпич для перестенков? Посилання на коментар Поділитися на інших сайтах More sharing options...
moncherleo Опубліковано: 4 березня 2016 Автор Поділитись Опубліковано: 4 березня 2016 Сегодня позвонили с Янтарной 12 - сказали что строительный паспорт готов! Сделали за 6 рабочих дней. Со следующей неделе буду высылать заказным письмом уведомления в ГАСК, МЧС и сельраду. Как мне сказали друзья - уведомление в МЧС и сельраду надо высылать в течении 7 дней со дня отправки уведомления в ГАСК. Продолжаем работать над эскизным проектом - сегодня проектная организация выслала очередную версию, будем делать рецензию. Поехал сегодня в Киевоблэнерго, но в едином окне закрыто - у них выходной с 5 по 8 марта включительно; навещу их после 9-го марта. Посилання на коментар Поділитися на інших сайтах More sharing options...
eam Опубліковано: 4 березня 2016 Поділитись Опубліковано: 4 березня 2016 Как мне сказали друзья - уведомление в МЧС и сельраду надо высылать в течении 7 дней со дня отправки уведомления в ГАСК. Обманули вас друзья. Им вообще уже не надо ничего высылать. ЗЫ. ссылка 2 Посилання на коментар Поділитися на інших сайтах More sharing options...
mazda626 Опубліковано: 4 березня 2016 Поділитись Опубліковано: 4 березня 2016 Немного про планировки: не смотря на то, что в базовом проекте кухня имеет открытое окно в столовую, от него было решено отказаться по причине потенциального распространения запахов по всему дому. Ориентация по сторонам света - гараж с западной стороны, лестница с северной, что повлияло на выбор больших окон с восточной и южной стороны. Под кухней будет находится небольшой подвальчик, где будет смонтирована ПУ вентиляции, а также хранится соленья и немного домашнего вина; для пополнения запасов последнего в будущем планируется создать виноградник. Кабинет на 1-м этаже будет гостевой спальней, а к возрасту - и нашей, поскольку возможно уже тяжело будет подниматься на второй этаж. Большой санузел на 2-м этаже разделили, сделав из части площади бытовую комнату (читай - прачечную с глажкой). Отдельно вынесли гардеробную, поскольку с появлением в доме представительниц прекрасной половины человечества количество вещей будет стремительно увеличиваться. На террасе второго этажа над гаражом хочется со временем обустроить зону отдыха, чтобы любоваться закатом с бокалом молодого вина (эскиз любезно предложила моя соседка и давняя подруга Татьяна). Чердачное перекрытие скорее всего все-таки прийдется монолитить, поскольку как мне обьяснил конструктор - из-за пологой крыши получилось много точек опирания, которые потребуют использоваться сдвоенного швеллера в этих, который в свою очередь нужно будет варить, красить, делать влагоизоляцию и по цене это выйдет как монолитное перекрытие; пришлось пока согласиться с их доводами. Фундамент - монолитная лента. Наружние стены планируется возводить из кирпичного блока 2NF от СБК-Озера, внутренние - полнотелым кирпичом (если у кого есть какие рекомендации - буду признателен). Покрытие крыши - стропила будем рассчитывать под натуральную черепицу, но на первом этапе скорее всего накроемся чем-то попроще (битумка, металл, или полимерно-песчаная черепица). В планах на этот год - фундамент, стены, перекрытия и накрыть крышу. По подвалу подумайте очень хорошо, так как очень часто плавают подвалы в этом районе, особенно после зимнего марта ( пару лет назад). Посилання на коментар Поділитися на інших сайтах More sharing options...
Рекомендовані повідомлення
Створіть акаунт або увійдіть у нього для коментування
Ви маєте бути користувачем, щоб залишити коментар
Створити акаунт
Зареєструйтеся для отримання акаунта. Це просто!
Зареєструвати акаунтУвійти
Вже зареєстровані? Увійдіть тут.
Увійти зараз