Перейти до публікації
Пошук в
  • Додатково...
Шукати результати, які містять...
Шукати результати в...

Харьков. Нужно отопление: водяной теплый пол+батареи, 60квм.

Kobez

Рекомендовані повідомлення

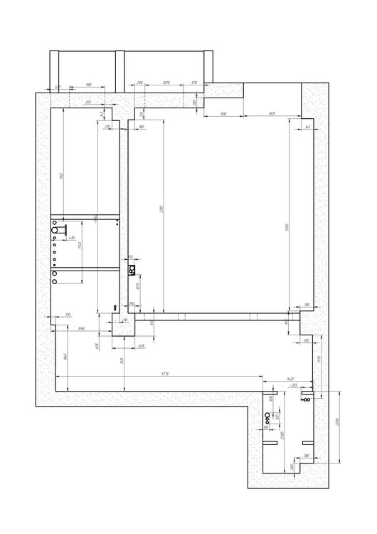
Встроенный магазин 60 кв.м., 1-й/16-ти эт., теплый новострой, ЦО, подо мной неотапливаемый подвал. Хочу водяной теплый пол 50-55 кв.м. и немного батарей. Сейчас голая плита перекрытия, планирую ЭППС+стяжку+плитку. Предложите идею сметы с материалами и работами, с реальной ответственностью за результат, с примерами работ. Нужные подробности запрашивайте.

1075897162___19_02.thumb.jpg.4408e11d8f6423291780dc8695483ad9.jpg

Посилання на коментар
Поділитися на інших сайтах

Створіть акаунт або увійдіть у нього для коментування

Ви маєте бути користувачем, щоб залишити коментар

Створити акаунт

Зареєструйтеся для отримання акаунта. Це просто!

Зареєструвати акаунт

Увійти

Вже зареєстровані? Увійдіть тут.

Увійти зараз
×
×
  • Створити...