Гість ansh Опубліковано: 16 серпня 2009 Поділитись Опубліковано: 16 серпня 2009 Задумал собственными силами строить дом проекта 51-99,однако с финансами очень трудно.Уважаемые форумчане! Возможно кто-то может подсказать хотя-бы размеры фундамента и комнат. Буду очень признателен и заранее благодарен. Посилання на коментар Поділитися на інших сайтах More sharing options...
Tugarin Опубліковано: 18 серпня 2009 Поділитись Опубліковано: 18 серпня 2009 Задумал собственными силами строить дом проекта 51-99,однако с финансами очень трудно.Уважаемые форумчане! Возможно кто-то может подсказать хотя-бы размеры фундамента и комнат. Буду очень признателен и заранее благодарен. Здравствуйте. А что значит :"дом проекта 51-99", это желаемая площадь дома или что? Посилання на коментар Поділитися на інших сайтах More sharing options...
yurij33 Опубліковано: 18 серпня 2009 Поділитись Опубліковано: 18 серпня 2009 Здравствуйте. А что значит :"дом проекта 51-99", это желаемая площадь дома или что? Это колличество капусты которой необходимо- 51 это минимумм 99 это максимумм:D Посилання на коментар Поділитися на інших сайтах More sharing options...
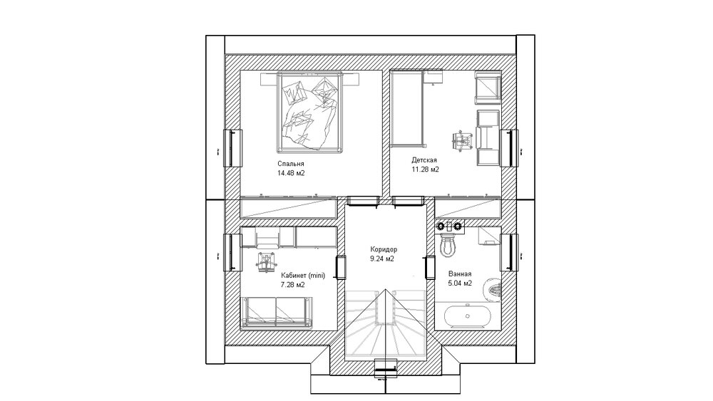
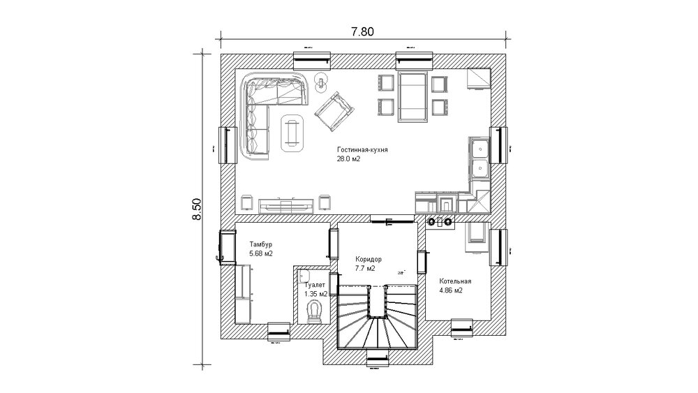
Tugarin Опубліковано: 18 серпня 2009 Поділитись Опубліковано: 18 серпня 2009 Вот такой. Посилання на коментар Поділитися на інших сайтах More sharing options...
Tugarin Опубліковано: 18 серпня 2009 Поділитись Опубліковано: 18 серпня 2009 Задумал собственными силами строить дом проекта 51-99,однако с финансами очень трудно.Уважаемые форумчане! Возможно кто-то может подсказать хотя-бы размеры фундамента и комнат. Буду очень признателен и заранее благодарен. Если же серьезно, то необходимо хоть какие-то минимальные требования к жилью. Посилання на коментар Поділитися на інших сайтах More sharing options...
Рекомендовані повідомлення
Створіть акаунт або увійдіть у нього для коментування
Ви маєте бути користувачем, щоб залишити коментар
Створити акаунт
Зареєструйтеся для отримання акаунта. Це просто!
Зареєструвати акаунтУвійти
Вже зареєстровані? Увійдіть тут.
Увійти зараз