Перейти до публікації
Пошук в
  • Додатково...
Шукати результати, які містять...
Шукати результати в...

Кухня

mfedorov

Рекомендовані повідомлення

Добрый день!

 

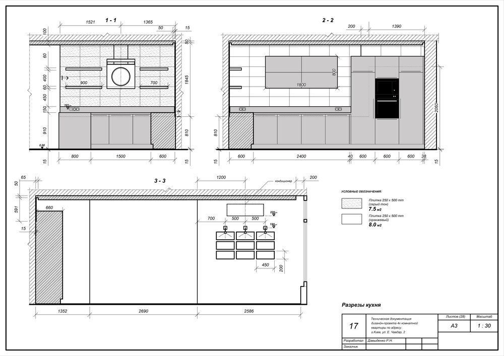
Будьте добры, просчитайте изготовление кухни

 

Ниже прикрепляю файлы

чертежи и визкализация от дизайнера , схемы того что мы хотим получить

Для удобства я пронумеровал на схемах секции чтобы описать

В просчете , прошу не учитывать столешницу , мы пока не определились какую хотим

 

 

 

Корпус кухни дсп , фасады – мдф шпонированный , крашеный

Рассматриваем 2 варианта с профильными ручками , или с установкой servodrive

 

 

Нижние фасады а также полки – шпон Орех Европейский с 2-мя Фаладрами www.legnoprom.com.ua/oreh-euro-2

 

Шкаф и сушка – крашеный глянец

 

1 секция –шкаф внутри 2 полки ширина 60

 

2 секция – шкаф внутри 3 ящика Legrabox Free, высота С (177 мм), передняя панель с высокой вставкой, терра черный, матовый

 

3, 5, 8 секция – 3 выдвижных ящика – первый вариант с доводчиком второй вариант servodrive , ящики Legrabox, высота C (176.8 мм), F (239.9 мм), M (90.3 мм) .

 

4 секция – угловое карго inoxa

 

6 секция – шкаф под мойкой

 

7 секция – посудомойка

 

9-1 секция – встраиваемый холодильник

 

9-2 полка , фасад -первый вариант ручка профиль, второй -tip on

 

10-1 - 2 ящика , Legrabox, высота C (176.8 мм), белый шелк, матовый, направляющие tip-on blummotion

 

10-2 – 2 полки, фасад -первый вариант ручка профиль, второй -tip on

 

11-1 – встраиваемая морозилка - первый вариант ручка профиль, второй вариант servo –drive flax

 

11-2 – шкаф внутри 3 ящика Legrabox Free, высота С (177 мм), передняя панель с высокой вставкой, белый шелк, матовый. фасад -первый вариант ручка профиль, второй -tip on

 

12 – сушка inoxa , подьемник aventos HF, снизу шкафа подсветка

 

13 – 3 полки подьемник aventos HF, снизу шкафа подсветка

 

14 – шпонированые полки с подветкой

 

 

 

Вся встраиваемая техника имеется в наличии : духовка , микроволновка , посудомойка , холодильник , морозилка

 

kuxn_1.thumb.jpg.0699d5b5adc84fc349d79d158b411ea1.jpg

 

kuxn_2.thumb.jpg.6919642f35d22b6f7454b72c22d6f5bc.jpg

 

kuxn_3.thumb.jpg.a9b0a06dc062d9e0cbd3c0271ac80ab3.jpg

 

kuxn_5.thumb.jpg.4b584013597916c7a286a36c0865f4a8.jpg

 

505296657_.thumb.jpg.c442073f24835d869c5d26d8fe6872ca.jpg

 

779061842_-.thumb.jpg.530948de0e9455421a4f58bb440a5e5b.jpg

 

img38.thumb.jpg.8423082c5485272e7ec3e9518e97f471.jpg

 

img35.thumb.jpg.d7249f230cdf9dfd505c55c3b8e7b1cc.jpg

Посилання на коментар
Поділитися на інших сайтах

Створіть акаунт або увійдіть у нього для коментування

Ви маєте бути користувачем, щоб залишити коментар

Створити акаунт

Зареєструйтеся для отримання акаунта. Це просто!

Зареєструвати акаунт

Увійти

Вже зареєстровані? Увійдіть тут.

Увійти зараз
×
×
  • Створити...