jacksasha Опубліковано: 28 липня 2016 Поділитись Опубліковано: 28 липня 2016 (змінено) Доброго времени, уважаемые форумчане. В новострое делаем ремонт, есть задача создать правильную схему вентиллироавния и кондиционирования в квартире 89 кв м многоквартирного дома (силикатный кирпич, утепление). Есть план квартиры, есть план размещения мебели и назначения помещений. Нам был предложен план установки рекуператора в дополнение к кондиционерам. За рекуператор Gree (500куб.м. /час) с установкой запросили $2000+, что показалось экономически необоснованным, хотя комфорт авматического воздухо- и темпло-обмена подкупает. Склоняюсь к приточно-вытяжным схемам. Может быть форумчане-специалисты помогут разобраться с вопросом? Есть настрой обсудить предложение на предоставление услуг расчета и монтажа вентилляции, кондиционеров. Бюджетом не побалую, но здравые аргументы приму. Змінено 28 липня 2016 користувачем jacksasha Уточнение информации Посилання на коментар Поділитися на інших сайтах More sharing options...
sprofi.llc Опубліковано: 30 липня 2016 Поділитись Опубліковано: 30 липня 2016 Я посмотрю Ваши планы. Мы делали схожую по площади квартиру зимой и там заказчику вентиляция вместе с кондиционированием обошлась в 40 000грн. Установка была украинская Вентс, кондиционеры LG. Правда тогда на кондиционеры был низкий сезон и мы совместно с заказчиком искали снятые с производства или просто залежавшиеся кондиционеры, нашли и получилось очень хорошо сэкономить. Посилання на коментар Поділитися на інших сайтах More sharing options...
jacksasha Опубліковано: 30 липня 2016 Автор Поділитись Опубліковано: 30 липня 2016 Я посмотрю Ваши планы. Мы делали схожую по площади квартиру зимой и там заказчику вентиляция вместе с кондиционированием обошлась в 40 000грн. Установка была украинская Вентс, кондиционеры LG. . Благодарю за отзыв. В лично откликнулся один из участников форума. Строим планы по совместному проекту. Посилання на коментар Поділитися на інших сайтах More sharing options...
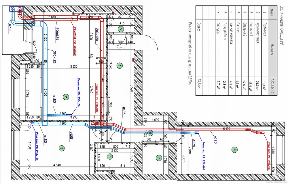
sprofi.llc Опубліковано: 30 липня 2016 Поділитись Опубліковано: 30 липня 2016 Я просмотрел Ваш проект. Как на мой взгляд коллеги перестарались с количеством воздуха. По моим расчетам при оптимных условиях Вам понадобится 250м3/ч, при повышенно оптимальных 350м3/с. Соответственно будет чуть меньше воздуховодов и чуть дешевле рекуператор. Плюс, правда это сложно понять из проекта, рекуператор не оснащен калорифером. Все производители такого рода рекуператоров рекомендуют оснащать их калорифером на стороне забора уличного воздуха, это связано с необходимостью поддержания положительной температуры в рекуператор. В общем сильно дешевле у меня не получилось. Примерная сумма 42 000грн и вилка по кондиционированию 22-28 000грн С уважением, Виктор 098 1576599 Посилання на коментар Поділитися на інших сайтах More sharing options...
sprofi.llc Опубліковано: 31 липня 2016 Поділитись Опубліковано: 31 липня 2016 Полезное видео Посилання на коментар Поділитися на інших сайтах More sharing options...
Рекомендовані повідомлення
Створіть акаунт або увійдіть у нього для коментування
Ви маєте бути користувачем, щоб залишити коментар
Створити акаунт
Зареєструйтеся для отримання акаунта. Це просто!
Зареєструвати акаунтУвійти
Вже зареєстровані? Увійдіть тут.
Увійти зараз