We$t Опубліковано: 3 серпня 2016 Поділитись Опубліковано: 3 серпня 2016 доброго дня, покритикуйте схему виконання зовнішніх та внутрішніх відкосів. Від ЕППС ззовні відмовився, майстрів поки зустрічав з двома лівими руками і те що вони наліпили страшно тут показати. ГБ 400мм, відступ ззовні 10 см, ззовні буде штукатурка тепловер + 2-3 см - зовнішній: на зрізаній піні Стиз-А (або порекомендуйте не російський аналог), відкос з тепловеру. Питання чи є потреба в Стиз-А якщо шов закриється тепловером - внутрішній: по зрізаній піні Стиз-Б або аналог, відкоси Knauf MP-75 дякую Посилання на коментар Поділитися на інших сайтах More sharing options...
Ната_ДнДз Опубліковано: 12 серпня 2016 Поділитись Опубліковано: 12 серпня 2016 А почему никто не отвечает? Всё совершенно правильно и коментов не возникает? Или всё плохо?Тогда посоветуйте пжл. свой вариант. Мне-тоже интересен ответ на заданный вопрос. Спс. Посилання на коментар Поділитися на інших сайтах More sharing options...
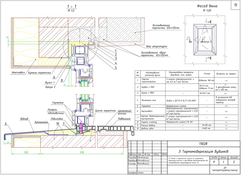
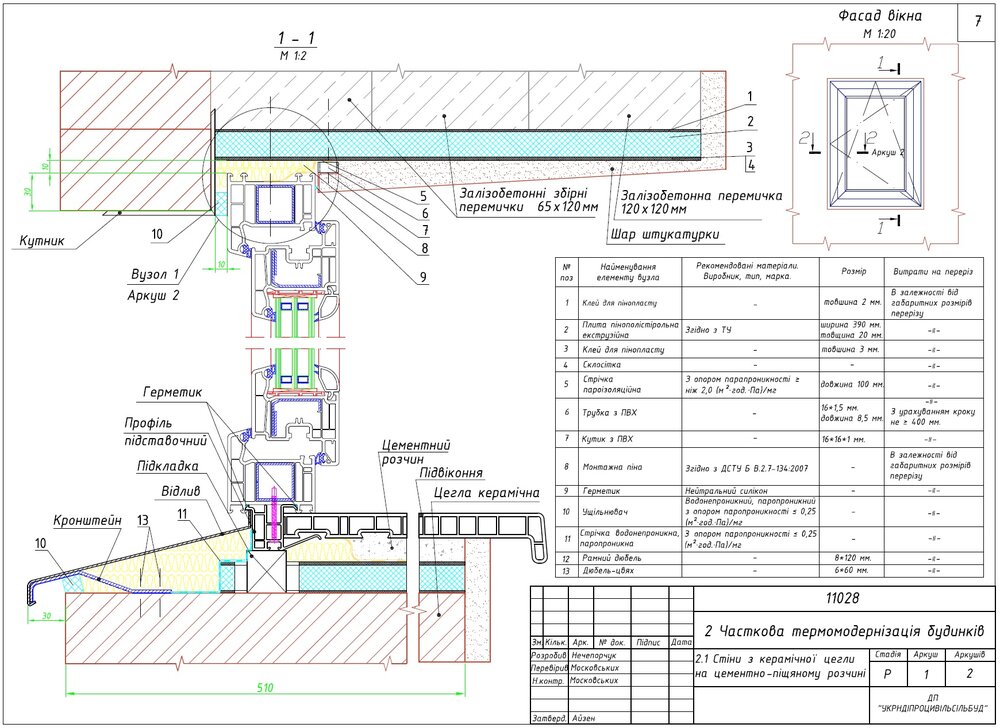
ViknaStar Опубліковано: 12 серпня 2016 Поділитись Опубліковано: 12 серпня 2016 Утепление внутреннего откоса зависит от того утеплен ли внешний фасад дома, а все остальное по стандарту с внешней стороны монтажный шов должен быть паропропускной и гидроизоляционный, а внутренний слой пароизоляционный. Выполнить эти условия можно с помощью различных материалов. Для примера привожу два чертежа по обустройству швов примыкания с утепленным фасадом и без: Посилання на коментар Поділитися на інших сайтах More sharing options...
We$t Опубліковано: 16 серпня 2016 Автор Поділитись Опубліковано: 16 серпня 2016 так і не зрозумів, підходить мій варіант чи ні? Посилання на коментар Поділитися на інших сайтах More sharing options...
ViknaStar Опубліковано: 16 серпня 2016 Поділитись Опубліковано: 16 серпня 2016 Я не зміг знайти показники по опіру паропроникності тепловеру, тому важко відповісти чи можна його застосовувати замість Стіз А на зовнішній ділянці монтажного шва. Тому скажу так, якщо застосований Вами матеріал буде мати опір паропроникності зовнішньої ділянки не більше 0,2 (м2 год. Па)/мг., тоді використовуйте його замість Стіз А, якщо ні тоді потрібен Стіз А, чи будь який інший матеріал з відповідними характеристиками. Також не забудьте, що матеріали зовнішньої ділянки повинні бути стійкими до тривалого атмосферного впливу (включно з впливом слабких кислотних, лужних і соляних середовищ). Матеріали повинні буту сумісні між собою, а також з матеріалами віконної коробки та кріпильними елементами. Довговічність матеріалів (строк служби), матеріалів, що використовують повинна бути не менше 20 умовних років експлуатації. Посилання на коментар Поділитися на інших сайтах More sharing options...
ukrvermiculit Опубліковано: 7 вересня 2016 Поділитись Опубліковано: 7 вересня 2016 Я не зміг знайти показники по опіру паропроникності тепловеру, Усі характеристики наших сумішей Ви можете знайти у розділі "Документи" на офіційному сайті teplover.ua. Щодо паропроникності: p.s. Вибачайте, що так пізно знайшов тему, пишу зараз, так як ця інформація може знадобитись ще комусь. Посилання на коментар Поділитися на інших сайтах More sharing options...
balder Опубліковано: 7 вересня 2016 Поділитись Опубліковано: 7 вересня 2016 Утепление внутреннего откоса зависит от того утеплен ли внешний фасад дома А якщо фасад буде утеплятися в майбутньому, а відкоси робляться зараз? Посилання на коментар Поділитися на інших сайтах More sharing options...
ViknaStar Опубліковано: 7 вересня 2016 Поділитись Опубліковано: 7 вересня 2016 А якщо фасад буде утеплятися в майбутньому, а відкоси робляться зараз? Значит проектируете узел примыкания и откосы исходя из того что в будущем будет внешнее утепление! На чертежах, выложенных мной в предыдущем посте, как раз рассматривается вариант с внешним утеплением и без внешнего утепления! 1 Посилання на коментар Поділитися на інших сайтах More sharing options...
Рекомендовані повідомлення
Створіть акаунт або увійдіть у нього для коментування
Ви маєте бути користувачем, щоб залишити коментар
Створити акаунт
Зареєструйтеся для отримання акаунта. Це просто!
Зареєструвати акаунтУвійти
Вже зареєстровані? Увійдіть тут.
Увійти зараз