valeryx Опубліковано: 5 серпня 2016 Поділитись Опубліковано: 5 серпня 2016 покритикуйте, если есть за что 9 *11. 1 этаж + мансарда стены 40 см 550 кг\м3 перекрытие - плиты бетон В15 ЗЫ. кому нужно - можно брать, пользоваться FREE свободно. проект оплачен и права на него у меня. но снимаю с себя всякую отвесвенность за последствия. Посилання на коментар Поділитися на інших сайтах More sharing options...
Gitan Опубліковано: 5 серпня 2016 Поділитись Опубліковано: 5 серпня 2016 А грунты какие? Посилання на коментар Поділитися на інших сайтах More sharing options...
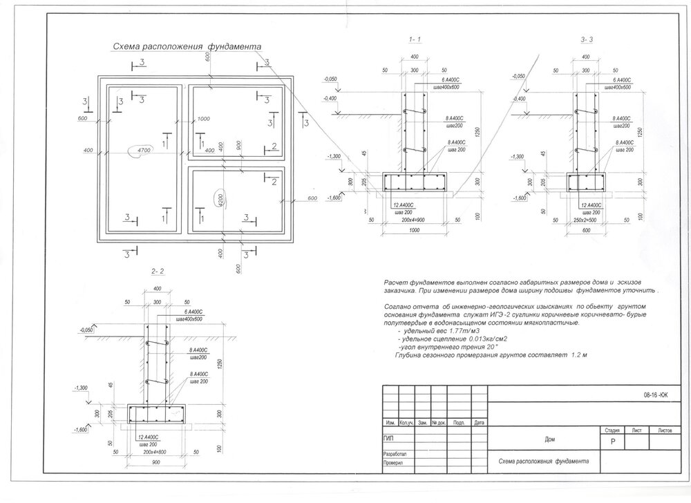
Vitaliy7 Опубліковано: 7 серпня 2016 Поділитись Опубліковано: 7 серпня 2016 А грунты какие? Суглинок и не однородный ,ИГЭ-2 Спасибо за разрешения использовать Ваш проект при потребности. Критик я слабоват , слышал кое-что, думаю нужно обратить внимание на момент насыщенность грунта водой в заданной глубине , не плохо сейчас понять где УГВ, потом будет понятно где будет при атмосферных осадках (з изо иное повышение УГВ) .При водонасыщености правильней использовать бетон от М250 и выше . Грунты у Вас склонны к пучению , следовательно думаю правильно выполненная подготовка площади под фундамент даст покой ночью Вам и подрядчику.На подготовку я использовал бы В7,5 . Внутренний фундамент не глубил бы , этим и от воды ушел и экономия .Несущие способности с хорошим запасом . Гидроизоляция, утепление,возможно и дренаж из за глины нужен (возможно ошибаюсь, думаю более опытные форумчане поправят). На вопрос подходит данный фундамент Вам ответить однозначно сложно , хорошо бы понимать рельеф на удаленности от застройки , я о возможных оврагах уклонах . На суглинках легкий дом не плюс , а скорее минус . Для принятия решения о соответствии фундамента нужно иметь ответы на пару вопросов. Посилання на коментар Поділитися на інших сайтах More sharing options...
valeryx Опубліковано: 8 серпня 2016 Автор Поділитись Опубліковано: 8 серпня 2016 участок "на горе".(почти на самом верху) по геологии до 6 метра воды не обнаружено. после 4-х метров метровые слои песка скорее всего до воды много десятков метров уклон 40 см на 10 метрах Посилання на коментар Поділитися на інших сайтах More sharing options...
Vitaliy7 Опубліковано: 8 серпня 2016 Поділитись Опубліковано: 8 серпня 2016 участок "на горе".(почти на самом верху) по геологии до 6 метра воды не обнаружено. после 4-х метров метровые слои песка скорее всего до воды много десятков метров уклон 40 см на 10 метрах Бог в помощь Вам . Если скажите район застройки , пойму насколько насыщенный грунт водой . Я не знаю как посмотреть весь проект с спецыфикацией и деталировкой . Сократите обьем до разумного при дела ив перед . Посилання на коментар Поділитися на інших сайтах More sharing options...
Рекомендовані повідомлення
Створіть акаунт або увійдіть у нього для коментування
Ви маєте бути користувачем, щоб залишити коментар
Створити акаунт
Зареєструйтеся для отримання акаунта. Це просто!
Зареєструвати акаунтУвійти
Вже зареєстровані? Увійдіть тут.
Увійти зараз