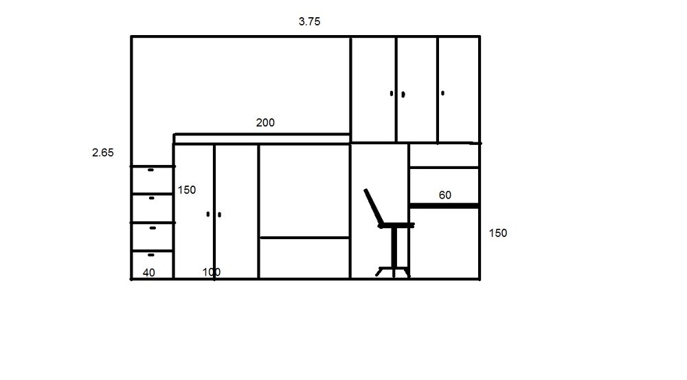
Гася Опубліковано: 7 серпня 2016 Поділитись Опубліковано: 7 серпня 2016 Хочу вот такую мебель заказать. Может я что-то не учла? Покритикуйте. И сколько примерно по деньгам будет? И кто-то на форуме делает такую мебель? Комната: высота 265, ширина 375. Ширина спального места 80. 150 - ширина стены, вдоль которой будет столешница. Т.е. стол будет 60*150. Посилання на коментар Поділитися на інших сайтах More sharing options...
Волчок Опубліковано: 7 серпня 2016 Поділитись Опубліковано: 7 серпня 2016 Здравствуйте. Сделать можно все, что угодно. Но необходима более подробная информация и чертеж (желательно в оксонометрии) с размерами всех элементов и описанием их наполнения. У Вас дан вид в одной плоскости, а желательно вид с разных плоскостей. Просчитать все на основании такой картинки практически не возможно. Посилання на коментар Поділитися на інших сайтах More sharing options...
melen Опубліковано: 8 серпня 2016 Поділитись Опубліковано: 8 серпня 2016 Доброе утро. Ответил в личку. Посилання на коментар Поділитися на інших сайтах More sharing options...
Гася Опубліковано: 8 серпня 2016 Автор Поділитись Опубліковано: 8 серпня 2016 Здравствуйте. Сделать можно все, что угодно. Но необходима более подробная информация и чертеж (желательно в оксонометрии) с размерами всех элементов и описанием их наполнения. У Вас дан вид в одной плоскости, а желательно вид с разных плоскостей. Просчитать все на основании такой картинки практически не возможно. я могу набросать в паинте вид сверху, сбоку, снизу и еще как-нибудь, но есть ли смысл? 95% размеров есть выше. Как уже и написала, ширина кровати 80 см, соответственно глубина нижнего шкафа и верхних - тоже 80см. Наполнение пару полочек в верхнем и пару в нижнем плюс штанга для одежды. Ящички-лестница каждый 30*40, т.е. общая высота 120 см, глубина - обычно делают 100 см от нижнего, остальные прикинуть элементарно. Посилання на коментар Поділитися на інших сайтах More sharing options...
Волчок Опубліковано: 8 серпня 2016 Поділитись Опубліковано: 8 серпня 2016 могу набросать в паинте вид сверху, сбоку, снизу и еще как-нибудь, но есть ли смысл? Если Вам нужна реальная цена , а не приблизительная, то необходимо предоставлять полную информацию о желаемой мебели, начиная с декора и производителя ДСП, типа направляющих в выдвижных ящиках, их производителе, типа и производителе петель и т.д., наполнением каждого элемента, размерами их. А Вы делаете запрос на просчет и хотите, что бы изготовитель сам догадался , что в этот расчет включить. Изготовление любого изделия начинается с пректа, который за отдельную плату заказывает заказчик у дизайнера, а потом по соглавованному проекту мебельщик изготавливает мебель. 1 Посилання на коментар Поділитися на інших сайтах More sharing options...
Гася Опубліковано: 9 серпня 2016 Автор Поділитись Опубліковано: 9 серпня 2016 Если Вам нужна реальная цена , а не приблизительная, то необходимо предоставлять полную информацию о желаемой мебели, начиная с декора и производителя ДСП, типа направляющих в выдвижных ящиках, их производителе, типа и производителе петель и т.д., наполнением каждого элемента, размерами их. А Вы делаете запрос на просчет и хотите, что бы изготовитель сам догадался , что в этот расчет включить. Изготовление любого изделия начинается с пректа, который за отдельную плату заказывает заказчик у дизайнера, а потом по соглавованному проекту мебельщик изготавливает мебель. Почему-то вспомнился старый анекдот... Концовка: "...В этот момент распахиваются входные двери, в магазин заходит мужик, который держит на вытянутых руках вырванный с корнем унитаз, по краям которого осталась еще плитка. Подходит к прилавку и кричит: - Вот такой у меня унитаз, вот такая плитка, ж@пу я вам вчера показывал, дайте мне, наконец, туалетную бумагу!!!!" Посилання на коментар Поділитися на інших сайтах More sharing options...
melen Опубліковано: 9 серпня 2016 Поділитись Опубліковано: 9 серпня 2016 Добрый день. Приблизительную стоимость отправил личным сообщением. Посилання на коментар Поділитися на інших сайтах More sharing options...
Волчок Опубліковано: 9 серпня 2016 Поділитись Опубліковано: 9 серпня 2016 Очень хорошо, что заказчики имеют чувство юмора. Но так вы и будете получать приблизительные стоимости своей будущей кровати. Удачи. Посилання на коментар Поділитися на інших сайтах More sharing options...
Рекомендовані повідомлення
Створіть акаунт або увійдіть у нього для коментування
Ви маєте бути користувачем, щоб залишити коментар
Створити акаунт
Зареєструйтеся для отримання акаунта. Це просто!
Зареєструвати акаунтУвійти
Вже зареєстровані? Увійдіть тут.
Увійти зараз