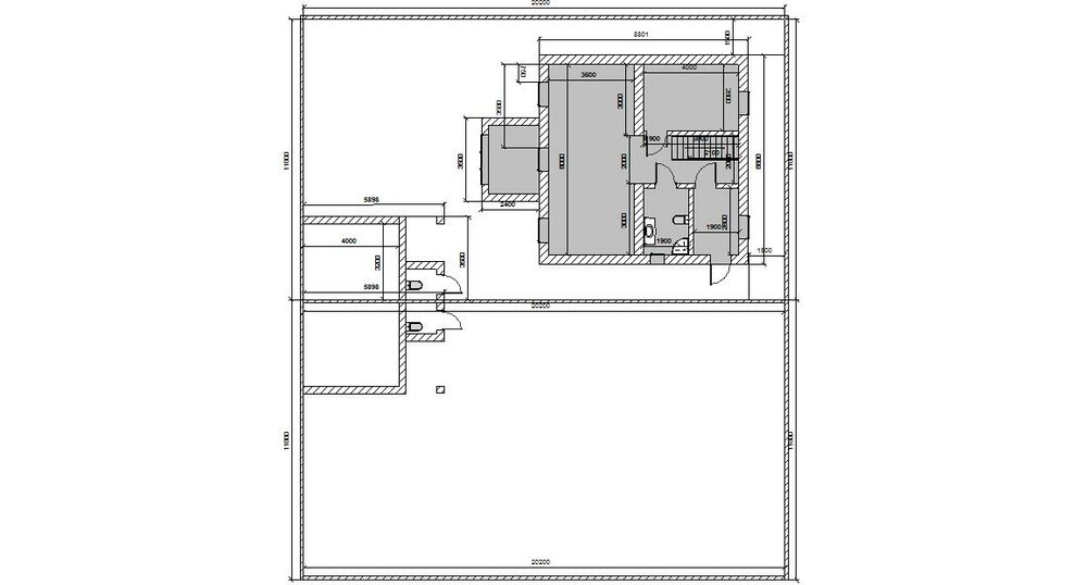
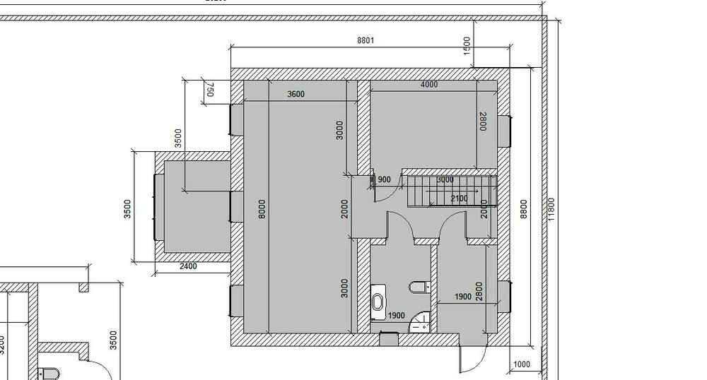
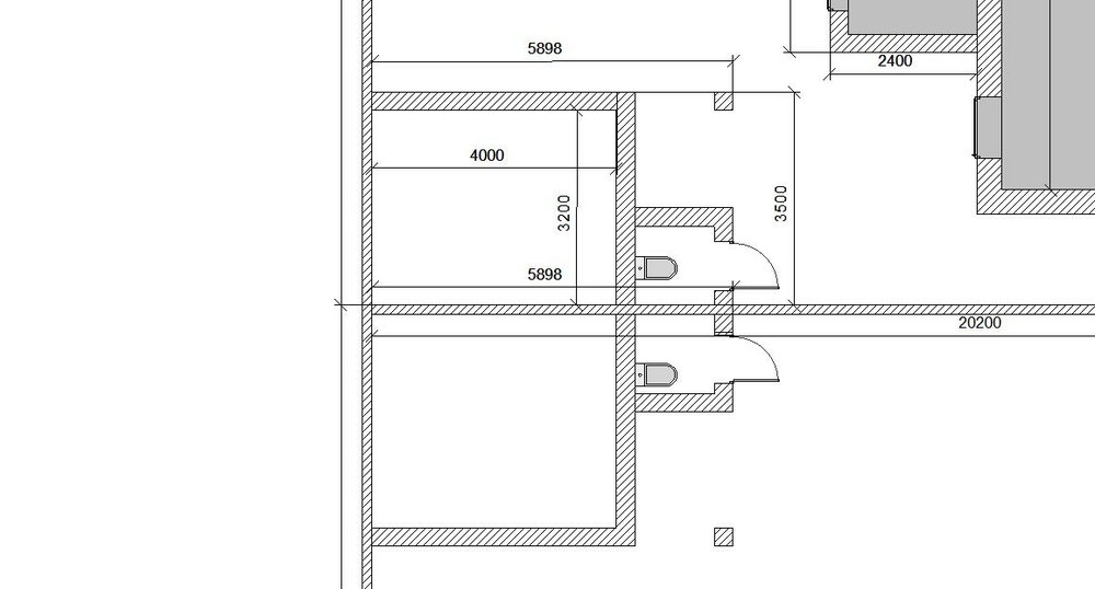
kela736 Опубліковано: 25 серпня 2016 Поділитись Опубліковано: 25 серпня 2016 Добрый день !!! Ищу архитектора желательно с Одессы для изготовления проекта. Предварительно хочу понять ориентировочную стоимость проекта! Исходные данные; участок по фасаду 24,5 глубина 20.5 правильной формы. Участок делится, и будет строиться два одинаковых мансардных дома с площадью около 110-120м² . Расположение домов в конце участка , по границе между участками будет строиться летняя кухня-беседка(с погребом) на две стороны. Канализации нет(будет яма). Примерно то что хотелось бы на рисунках (не окончательно) Предварительно; фундамент блоки,стены газобетон 400 мм, крыша металлочерепица. Спаибо! Жду предложений Посилання на коментар Поділитися на інших сайтах More sharing options...
ДОКС Опубліковано: 25 серпня 2016 Поділитись Опубліковано: 25 серпня 2016 Жду предложений Яких пропозицій саме Ви чекаєте? p.s. саме зараз роблю два проекта в Одеський області... Посилання на коментар Поділитися на інших сайтах More sharing options...
kela736 Опубліковано: 25 серпня 2016 Автор Поділитись Опубліковано: 25 серпня 2016 Предварительно хочу понять ориентировочную стоимость проекта! Посилання на коментар Поділитися на інших сайтах More sharing options...
ДОКС Опубліковано: 25 серпня 2016 Поділитись Опубліковано: 25 серпня 2016 Предварительно хочу понять ориентировочную стоимость проекта! по-перше - проекти бувають різні; по-друге - ця тема більш буде продуктивною, як що знайде собі місце у розділі "Тендери"; по-третє - середні ціни на припустимо Ескізний Проект коливаються від 80-ти до 150-ти гривен за 1кв.м. Що стосовно Робочої Документації то це приблизно 120-180 грн. 1 Посилання на коментар Поділитися на інших сайтах More sharing options...
kela736 Опубліковано: 25 серпня 2016 Автор Поділитись Опубліковано: 25 серпня 2016 по-перше - проекти бувають різні; по-друге - ця тема більш буде продуктивною, як що знайде собі місце у розділі "Тендери"; по-третє - середні ціни на припустимо Ескізний Проект коливаються від 80-ти до 150-ти гривен за 1кв.м. Що стосовно Робочої Документації то це приблизно 120-180 грн. Спасибо за информацию!!! А летняя кухня- беседка с погребом такая же ценовая политика? Посилання на коментар Поділитися на інших сайтах More sharing options...
ДОКС Опубліковано: 25 серпня 2016 Поділитись Опубліковано: 25 серпня 2016 Спасибо за информацию!!! А летняя кухня- беседка с погребом такая же ценовая политика? в мене як правило - бонус. але бувають виключення... тим більш я не сприймаю житловий будинок як окрему споруду, а тільки як частину зовнішнього середовища та частку садиби... Посилання на коментар Поділитися на інших сайтах More sharing options...
dorado_2820 Опубліковано: 26 серпня 2016 Поділитись Опубліковано: 26 серпня 2016 Добрый день !!! Ищу архитектора желательно с Одессы для изготовления проекта. Предварительно хочу понять ориентировочную стоимость проекта! Исходные данные; участок по фасаду 24,5 глубина 20.5 правильной формы. Участок делится, и будет строиться два одинаковых мансардных дома с площадью около 110-120м² . Расположение домов в конце участка , по границе между участками будет строиться летняя кухня-беседка(с погребом) на две стороны. Канализации нет(будет яма). Примерно то что хотелось бы на рисунках (не окончательно) Предварительно; фундамент блоки,стены газобетон 400 мм, крыша металлочерепица. Спаибо! Жду предложений Мы хоть и не из Одессы, но с удовольствием выполним Ваш заказ. Цена 10 000 грн. Печатью ГИПа и сертификатом все заверяем. Посилання на коментар Поділитися на інших сайтах More sharing options...
galproekt Опубліковано: 27 серпня 2016 Поділитись Опубліковано: 27 серпня 2016 Здравствуйте! Готов разработать реальный рабочий проект для строительства такого дома на основе Ваших эскизов. Состав проекта: архитектурно-строительная часть с частичной инженерией, все для стройпаспорта, сертификат. Цена адекватная. Будут вопросы звоните 067-701-85-46, 093-698-48-28 tyxanton@gmail.com Обращайтесь, с уважением архитектор Антон Тиханский (Galproekt) www.stroimdom.com.ua/forum/showthread.php?t=66404 Посилання на коментар Поділитися на інших сайтах More sharing options...
Рекомендовані повідомлення
Створіть акаунт або увійдіть у нього для коментування
Ви маєте бути користувачем, щоб залишити коментар
Створити акаунт
Зареєструйтеся для отримання акаунта. Це просто!
Зареєструвати акаунтУвійти
Вже зареєстровані? Увійдіть тут.
Увійти зараз