Перейти до публікації
Пошук в
  • Додатково...
Шукати результати, які містять...
Шукати результати в...

Газоснабжение, внутренние сети

kravchuk14

Рекомендовані повідомлення

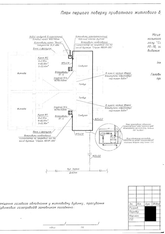
Добрый день, интересует стоимость развода коммуникаций частного дома согласно проекта во вложении.

Ситуация на сегодня: Киев Газ сделал свою разводку согласно стандартного подключения к газу. Проводим коммуникации от счетчика до котла и 2-х газовых плит.

Интересует:

1 Стоимость выполняемых работ

2 Стоимость материалов согласно сметы, если выполняете закупки материалов

3 Сроки выполнения работ

4 Стоимость проведения актов обследования вентканалов

5 Доп. услуги. Что не учтено, по вашему мнению, для подачи газа.

2089916224_.thumb.jpg.dc5d275495069dba171adca99fd7e235.jpg

1294879781_20000.thumb.jpg.53e59deb2fb98c1a2c31deda5d3cece9.jpg

496136338_20001.thumb.jpg.bf9be61a4775849ecbbce1b212d02874.jpg

1378265946_20002.thumb.jpg.55704f8ae38e3fce5951992fd4fd04d7.jpg

338295681_20004.thumb.jpg.ff973aa0ecbab3754ffc0785920bd1dc.jpg

1347933187_20005.thumb.jpg.8ff247da623b76d188e0c385ce10ad1f.jpg

359242313_20006.thumb.jpg.3c001608796a323116b3a376253d4b3e.jpg

707544573_20007.thumb.jpg.5af1af811bc49be98b9a7525ada3874e.jpg

Посилання на коментар
Поділитися на інших сайтах

Створіть акаунт або увійдіть у нього для коментування

Ви маєте бути користувачем, щоб залишити коментар

Створити акаунт

Зареєструйтеся для отримання акаунта. Це просто!

Зареєструвати акаунт

Увійти

Вже зареєстровані? Увійдіть тут.

Увійти зараз
×
×
  • Створити...