1mechtatel Опубліковано: 29 листопада 2016 Автор Поділитись Опубліковано: 29 листопада 2016 Ребята, можете бегло глянуть файл с пирогами по разным узлам. Интересуют мнения по пирогу крыши и по фасадному утеплению.Узлы отделки по дому (предварительные).pdf Посилання на коментар Поділитися на інших сайтах More sharing options...
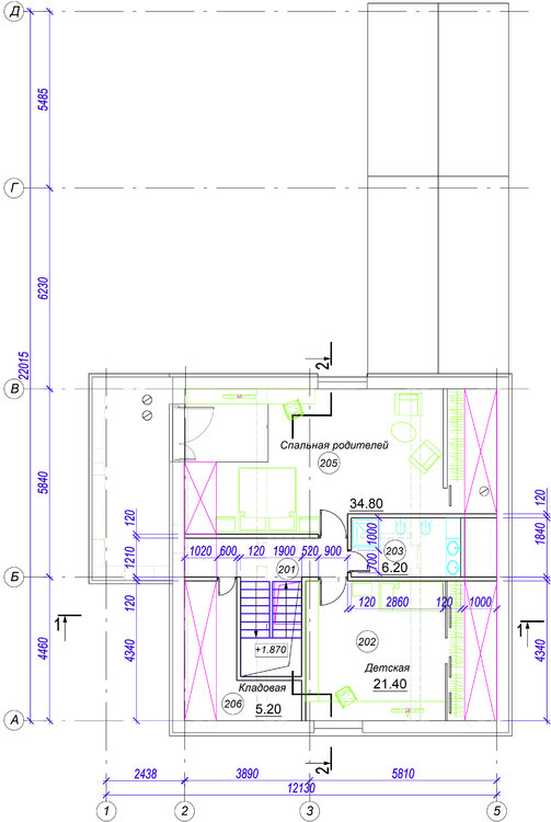
Projekt house Опубліковано: 12 грудня 2016 Поділитись Опубліковано: 12 грудня 2016 Замечание по проекту: Тонкий простенок между окнами. Балкон проблемный для осадков, надо накрывать. Проверено. Перепад пола балкона и комнаты будет, комнату под балконом надо утеплять. Мансардные окна странновато стоят, где фальш стена по оси 2 на втором этажа ? Вентканалы в наружной стене плохо будут работать, второй вентканал создает снеговой мешок и высота неверная для тяги. Лестница в комнату заходит... 1 Посилання на коментар Поділитися на інших сайтах More sharing options...
1mechtatel Опубліковано: 13 грудня 2016 Автор Поділитись Опубліковано: 13 грудня 2016 Замечание по проекту: Тонкий простенок между окнами. Балкон проблемный для осадков, надо накрывать. Проверено. Перепад пола балкона и комнаты будет, комнату под балконом надо утеплять. Мансардные окна странновато стоят, где фальш стена по оси 2 на втором этажа ? Вентканалы в наружной стене плохо будут работать, второй вентканал создает снеговой мешок и высота неверная для тяги. Лестница в комнату заходит... спасибо за замечания и советы. Выкладываю конечный план второго этажа Посилання на коментар Поділитися на інших сайтах More sharing options...
Рекомендовані повідомлення
Створіть акаунт або увійдіть у нього для коментування
Ви маєте бути користувачем, щоб залишити коментар
Створити акаунт
Зареєструйтеся для отримання акаунта. Це просто!
Зареєструвати акаунтУвійти
Вже зареєстровані? Увійдіть тут.
Увійти зараз