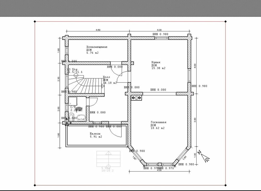
Oxkon Опубліковано: 2 вересня 2009 Поділитись Опубліковано: 2 вересня 2009 Близки к началу постройки дома для ПМЖ из ОЦБ 220 мм. Эскиз проекта дан застройщика для расчета такой. Фундамента и сруба еще нет. Хочу пока услышать замечания или критику по проекту, что бы потом не было горько и мучительно, что что-то не учла. Постоянно проживающих: 2 человека + 2 мелкие собачки. Очень жду мнений. Посилання на коментар Поділитися на інших сайтах More sharing options...
Женя1 Опубліковано: 2 вересня 2009 Поділитись Опубліковано: 2 вересня 2009 у меня возник вопрос почему туалет ни на 1 ни на 2 етаже не раздельные??? или Вам поменять ето в проекте очень сложно?? Посилання на коментар Поділитися на інших сайтах More sharing options...
Oxkon Опубліковано: 2 вересня 2009 Автор Поділитись Опубліковано: 2 вересня 2009 у меня возник вопрос почему туалет ни на 1 ни на 2 етаже не раздельные??? или Вам поменять ето в проекте очень сложно?? На первом этаже будет располагаться туалет, рукомойник и лапомойка для собак. На втром: туалет, рукомойник и душевая кабинка. Живем мы вдвоем с мужем и не думаю, что прям сразу обоим "приспичит":D. А если и так, то можно добежать на верх. Как то и по площади и по водо-разводке не хотелось бы сильно мудрить. Посилання на коментар Поділитися на інших сайтах More sharing options...
Женя1 Опубліковано: 2 вересня 2009 Поділитись Опубліковано: 2 вересня 2009 ну если в двоём то ето нормально, проект мне очень понравился . Удачи Вам в постройке. И самое главное не забывайте сюда кидать фотки поэтапного строительства Нам ето будет очень интересно Посилання на коментар Поділитися на інших сайтах More sharing options...
Oxkon Опубліковано: 2 вересня 2009 Автор Поділитись Опубліковано: 2 вересня 2009 ну если в двоём то ето нормально, проект мне очень понравился . Удачи Вам в постройке. И самое главное не забывайте сюда кидать фотки поэтапного строительства Нам ето будет очень интересно Спасибо огромное! Все-все буду фотографировать, т.к. где-то тут прочитала, что очень полезно делать фото, а дома внимательно рассматривать, т.к. бывает, что на месте глаз "замыливается" и огрехи не видны. Посилання на коментар Поділитися на інших сайтах More sharing options...
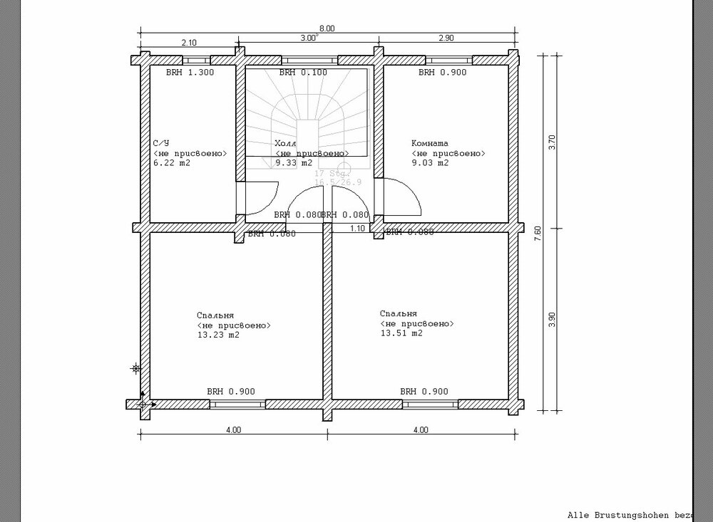
Markiza Опубліковано: 2 вересня 2009 Поділитись Опубліковано: 2 вересня 2009 гардероб-10,спальня-15...с/у вообще 3!не маловат ли с/у??? сори,я просто считаю,что если строить свой домик,как-то неразумно проектировать в нем хрущевскую ванную! А вцелом,мне дом нравится!Удачи! Посилання на коментар Поділитися на інших сайтах More sharing options...
Pro100user Опубліковано: 2 вересня 2009 Поділитись Опубліковано: 2 вересня 2009 не понимаю отсутствия спальни на первом этаже. Посилання на коментар Поділитися на інших сайтах More sharing options...
Oxkon Опубліковано: 2 вересня 2009 Автор Поділитись Опубліковано: 2 вересня 2009 гардероб-10,спальня-15...с/у вообще 3!не маловат ли с/у??? сори,я просто считаю,что если строить свой домик,как-то неразумно проектировать в нем хрущевскую ванную! А вцелом,мне дом нравится!Удачи! Ох, уж этот мне гардероб прямо! Всем он кажется большим. А я все время мечтаю, чтобы было такое помещение, куда зайти и все там сразу одеть и пойти. Там я планирую так: с одной стороны палка - на ней вся "висячая" одежда, с другой полки - на них вся "лежачая" одежда. И зеркало. По с/у сама сомневаюсь по размерам.... А чего вообще там засиживаться? :D У меня ванная вот сейчас (не хрущевка) 1,8 на 1,5. Все помещается: и рукомойник, и ванна (большая), и корзинка для белья, и машинка стиральная. А в доме-то стиральная комната выделена в другом месте. Но сомнения Вы посеяли..... Посилання на коментар Поділитися на інших сайтах More sharing options...
Markiza Опубліковано: 2 вересня 2009 Поділитись Опубліковано: 2 вересня 2009 не понимаю отсутствия спальни на первом этаже. ну дык они ж вдвоем там жить будут!или Вы за 79 коридоров и 143 комнаты???:) Посилання на коментар Поділитися на інших сайтах More sharing options...
Oxkon Опубліковано: 2 вересня 2009 Автор Поділитись Опубліковано: 2 вересня 2009 не понимаю отсутствия спальни на первом этаже. Ну вот некому там спать...... Вдвоем мы живем. Посилання на коментар Поділитися на інших сайтах More sharing options...
Markiza Опубліковано: 2 вересня 2009 Поділитись Опубліковано: 2 вересня 2009 не понимаю отсутствия спальни на первом этаже. Ох, уж этот мне гардероб прямо! Всем он кажется большим. А я все время мечтаю, чтобы было такое помещение, куда зайти и все там сразу одеть и пойти. Там я планирую так: с одной стороны палка - на ней вся "висячая" одежда, с другой полки - на них вся "лежачая" одежда. И зеркало. По с/у сама сомневаюсь по размерам.... А чего вообще там засиживаться? :D У меня ванная вот сейчас (не хрущевка) 1,8 на 1,5. Все помещается: и рукомойник, и ванна (большая), и корзинка для белья, и машинка стиральная. А в доме-то стиральная комната выделена в другом месте. Но сомнения Вы посеяли..... сомнения сеять не хотела-это просто мое мнениеи насчет в ванной не засиживаться-я допустим мечтаю о ванной,в которой захочется залеживаться и вообще полный релакс и все такое Эт ж все ооочень индивидуально! Посилання на коментар Поділитися на інших сайтах More sharing options...
Oxkon Опубліковано: 2 вересня 2009 Автор Поділитись Опубліковано: 2 вересня 2009 сомнения сеять не хотела-это просто мое мнениеи насчет в ванной не засиживаться-я допустим мечтаю о ванной,в которой захочется залеживаться и вообще полный релакс и все такое Эт ж все ооочень индивидуально! Нет-нет, это очень хорошо, что посеяли сомнения. Я ж для этого и проект выставила, чтобы критиковали и указывали, где, что и как не так. Буду думать, с рулеткой ходить. Посилання на коментар Поділитися на інших сайтах More sharing options...
AНДРЮША Опубліковано: 2 вересня 2009 Поділитись Опубліковано: 2 вересня 2009 Если планируется проживание 2-х человек, то думаю люди вы не юные. Поэтому ходить по лестнице скоро станет в лом. Жить будете в гостиной, хозпомещение превратится в гардеробную. Балкон вообще не будет открываться (хотя на нем можно поставить антенну и ходить ее крутить...). При таких исходных данных строил бы одноэтажный дом, если все же два этажа это воплощение мечты, предусмотрите спальню на первом. Посилання на коментар Поділитися на інших сайтах More sharing options...
YuM Опубліковано: 2 вересня 2009 Поділитись Опубліковано: 2 вересня 2009 Если планируется проживание 2-х человек, то думаю люди вы не юные. Поэтому ходить по лестнице скоро станет в лом. Жить будете в гостиной, хозпомещение превратится в гардеробную. Балкон вообще не будет открываться (хотя на нем можно поставить антенну и ходить ее крутить...). При таких исходных данных строил бы одноэтажный дом, если все же два этажа это воплощение мечты, предусмотрите спальню на первом. +1 А ще з врахуванням матеріалу стін, одноповерховий буде приносити менше клопоту. Посилання на коментар Поділитися на інших сайтах More sharing options...
Dmytro Опубліковано: 24 листопада 2009 Поділитись Опубліковано: 24 листопада 2009 Интересно, а что это за белый столб на 3д модели вашего дома? Вообще оцилиндрованный брус имеет свойство усыхать. и такие столбы могут испортить всю конструкцию...тут нужно думать И еще мне кажется очень мало места для лестницы. Посилання на коментар Поділитися на інших сайтах More sharing options...
Oxkon Опубліковано: 24 листопада 2009 Автор Поділитись Опубліковано: 24 листопада 2009 Интересно, а что это за белый столб на 3д модели вашего дома? Вообще оцилиндрованный брус имеет свойство усыхать. и такие столбы могут испортить всю конструкцию...тут нужно думать И еще мне кажется очень мало места для лестницы. Уже отказалась от этого проекта. Другой "родился" после долгих мучений. Проще, но функциональнее. Посилання на коментар Поділитися на інших сайтах More sharing options...
Dmytro Опубліковано: 25 листопада 2009 Поділитись Опубліковано: 25 листопада 2009 Можно ли посмотреть на новый проект? Посилання на коментар Поділитися на інших сайтах More sharing options...
Oxkon Опубліковано: 25 листопада 2009 Автор Поділитись Опубліковано: 25 листопада 2009 Можно ли посмотреть на новый проект? Можно посмотреть новый проект. Только фасад самолично рисованный и чисто условный. Посилання на коментар Поділитися на інших сайтах More sharing options...
Рекомендовані повідомлення
Створіть акаунт або увійдіть у нього для коментування
Ви маєте бути користувачем, щоб залишити коментар
Створити акаунт
Зареєструйтеся для отримання акаунта. Це просто!
Зареєструвати акаунтУвійти
Вже зареєстровані? Увійдіть тут.
Увійти зараз