max197 Опубліковано: 17 січня 2017 Поділитись Опубліковано: 17 січня 2017 Добрый день форумчане. Помогите с выбором топки, как уже озвучено в теме общая квадратура дома 120м.кв (два этажа) из них планируется отапливать 90 м.кв. В доме постоянно не живем это дача и топка это единственный вид отопления. Цель быстро создать комфортную температуру в доме (все чаще и чаще хочется зимой пожарить шашлык на даче) и поддерживать плюсовую температуру (чтобы не сливать из системы воду) в доме путем его обогрева топкой раз в неделю. Рассматривал jotul 570 и 18 но переживаю что для моей квадратуры будет большая мощность и находится возле самой топки (полюбоваться огнем) и в комнатах может быть не комфортно (жарко). Если ошибаюсь поправьте меня. Может предложите еще какие-то достойные варианты топок Посилання на коментар Поділитися на інших сайтах More sharing options...
T-Kiev Опубліковано: 17 січня 2017 Поділитись Опубліковано: 17 січня 2017 и поддерживать плюсовую температуру (чтобы не сливать из системы воду) в доме путем его обогрева топкой раз в неделю вариантов топок много но не одна из них при протопке 1 раз в неделю не будет держать тепло целую неделю чтоб не сливать воду из системы. вот например kaminhouse.com.ua/kamin/item/panorama-ni-25?category_id=59 kaminhouse.com.ua/kamin/item/%D0%BA%D0%B0%D0%BC%D0%B8%D0%BD%D0%BD%D0%B0%D1%8F-%D1%82%D0%BE%D0%BF%D0%BA%D0%B0-dovre-2176-cbs?category_id=73 kaminhouse.com.ua/kamin/item/%D0%BA%D0%B0%D0%BC%D0%B8%D0%BD%D0%BD%D0%B0%D1%8F-%D1%82%D0%BE%D0%BF%D0%BA%D0%B0-dovre-2180-cbs?category_id=73 kaminhouse.com.ua/kamin/item/%D1%87%D1%83%D0%B3%D1%83%D0%BD%D0%BD%D0%B0%D1%8F-%D1%82%D0%BE%D0%BF%D0%BA%D0%B0-laudel-800-grande-vision-%D1%81-%D1%88%D0%B8%D0%B1%D0%B5%D1%80%D0%BE%D0%BC-dp?category_id=17 kaminhouse.com.ua/kamin/item/%D0%BA%D0%B0%D0%BC%D0%B8%D0%BD%D0%BD%D0%B0%D1%8F-%D1%82%D0%BE%D0%BF%D0%BA%D0%B0-hitze-albero-16kw-al16sh?category_id=103 Посилання на коментар Поділитися на інших сайтах More sharing options...
usanin_n Опубліковано: 17 січня 2017 Поділитись Опубліковано: 17 січня 2017 Добрый день форумчане. Помогите с выбором топки, как уже озвучено в теме общая квадратура дома 120м.кв (два этажа) из них планируется отапливать 90 м.кв. В доме постоянно не живем это дача и топка это единственный вид отопления. Цель быстро создать комфортную температуру в доме (все чаще и чаще хочется зимой пожарить шашлык на даче) и поддерживать плюсовую температуру (чтобы не сливать из системы воду) в доме путем его обогрева топкой раз в неделю. Рассматривал jotul 570 и 18 но переживаю что для моей квадратуры будет большая мощность и находится возле самой топки (полюбоваться огнем) и в комнатах может быть не комфортно (жарко). Если ошибаюсь поправьте меня. Может предложите еще какие-то достойные варианты топок Что бы что то рекомендовать нужно вначале на план дома взглянуть Посилання на коментар Поділитися на інших сайтах More sharing options...
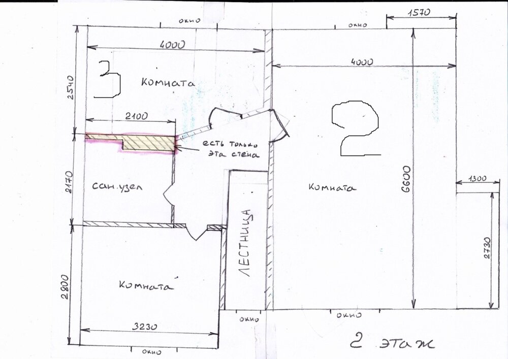
max197 Опубліковано: 17 січня 2017 Автор Поділитись Опубліковано: 17 січня 2017 План-схема дома . Стены дома сделаны из газобетона 300 мм, утеплен пенопласт 100 мм. Крыша металочерепица утеплитель 150 мм каменная вата. Дымохода нет надо делать. Второй этаж пока без отделки без межкомнатных перегородок и без разведенного электричества. Первый этаж сделан. Отопление на первом этаже только большая комната №1, на втором две комнаты №2 и 3. И добавил две фотографии, что примерно хотелось бы получить по финалу Посилання на коментар Поділитися на інших сайтах More sharing options...
max197 Опубліковано: 17 січня 2017 Автор Поділитись Опубліковано: 17 січня 2017 вариантов топок много но не одна из них при протопке 1 раз в неделю не будет держать тепло целую неделю чтоб не сливать воду из системы. вот например Я понимаю что топка держать тепло не будет, ее задача обогреть дом, радовать глаз при работе и долго и верно служить. Тепло должен держать сам дом который эта топка обогреет. Посилання на коментар Поділитися на інших сайтах More sharing options...
Sheridan Опубліковано: 18 січня 2017 Поділитись Опубліковано: 18 січня 2017 План-схема дома . Гарний, сучасний і грамотний проект. Як Ви натрапили на такі убогі дизайни камінів? Вже 10 років тому вони втрачали свою актуальність. Не хочете підібрати щось в більш сучасному віянні? Щодо системи, то вона теж дивна: схоже, Ви вирішили вкластись в систему ізоляції, але не берете до уваги, що такі системи чутливі до перепадів потужностей приладів всередині приміщення, тобто якщо Ви не проти, я б порадив думати в сторону печей, або камінів з водяним контуром, малим склом, подвійним, але аж ніяк не старих конвективних чавунок. Посилання на коментар Поділитися на інших сайтах More sharing options...
max197 Опубліковано: 18 січня 2017 Автор Поділитись Опубліковано: 18 січня 2017 Гарний, сучасний і грамотний проект. Як Ви натрапили на такі убогі дизайни камінів? Вже 10 років тому вони втрачали свою актуальність. Не хочете підібрати щось в більш сучасному віянні? Подскажите где посмотреть. Щодо системи, то вона теж дивна: схоже, Ви вирішили вкластись в систему ізоляції, але не берете до уваги, що такі системи чутливі до перепадів потужностей приладів всередині приміщення, тобто якщо Ви не проти, я б порадив думати в сторону печей, або камінів з водяним контуром, малим склом, подвійним, але аж ніяк не старих конвективних чавунок. Извините но я не очень понял о какой системе Вы говорите, что значит вложится в изоляцию и сто значит "що такі системи чутливі до перепадів потужностей приладів всередині приміщення" Посилання на коментар Поділитися на інших сайтах More sharing options...
bampo Опубліковано: 18 січня 2017 Поділитись Опубліковано: 18 січня 2017 послушайте Sheridan-а и поменяйте место установки камина Посилання на коментар Поділитися на інших сайтах More sharing options...
max197 Опубліковано: 18 січня 2017 Автор Поділитись Опубліковано: 18 січня 2017 К сожалению в этом месте нельзя поставить камин. Посилання на коментар Поділитися на інших сайтах More sharing options...
Sheridan Опубліковано: 18 січня 2017 Поділитись Опубліковано: 18 січня 2017 Подскажите где посмотреть. Гугліть по ключам: kamineinsatz kamineinsatz verkleiden mit naturstein putz ofen kachelofen Извините но я не очень понял о какой системе Вы говорите, что значит вложится в изоляцию и сто значит "що такі системи чутливі до перепадів потужностей приладів всередині приміщення" Топка видає за перші 15-30хв. 5кВт*год, за наступну годину 14кВт*год, а через 1,5 годин 3-5 кВт*год, оскільки горіння відбувається по кривій. Якщо топка конвективна, то і віддача буде відповідати цій кривій горіння*. Нехай Ваш будинок споживає в цей січневий період 6-8кВт*год, а місце з каміном - 2-5кВт*год**. Спочатку Ви його перегрієте (отримаєте за 1,5год. 16-18кВт), але вже за 2-3год. вмикатиметься газовий котел, бо будинок охолодиться. Ця ситуація з нерівномірністю відома вже століттями і привела до появи печей - масивних конструкцій з каменю, що здатні вбирати в себе усю потужність від вогнища та віддавати її на необхідному для приміщення рівні: 2-5кВт. Звичайно, печі не сильно вміють гріти туалет, ванну та інші маленькі чи віддалені приміщення, тому люди додумались до водяних пічних та камінних систем, що дозволяють накопичувати це тепло у буферній ємності, а вже потім повільно скидувати її, але саме туди, де це потрібно! Я не можу точно сказати, чи водяний камін - Ваш вибір, у мене мало даних, але піч (чи камін з нормальною акумуляцією) буде точно кращим рішенням. (на мою думку) * Можна хитрувати з режимами, але у багатьох користувачів "перший камін в житті" це перетворюється на маринування дров у топці до їх повного переходу в сажу на склі, стінках топки та димоходу, закладують дохрена, щоб довше кисло на ті ж 2-5кВт, забувають зменшити подачу, як наслідок - перепалюють димоходи. Варіацій вар'яцій багато. ** Умовні дані. Реальні тепловтрати Ви повинні вказати компанії, що розраховуватиме Вам камін. Посилання на коментар Поділитися на інших сайтах More sharing options...
kai61 Опубліковано: 18 січня 2017 Поділитись Опубліковано: 18 січня 2017 Добрый день форумчане. поддерживать плюсовую температуру (чтобы не сливать из системы воду) в доме путем его обогрева топкой раз в неделю. А какая основная система отопления? Где вода? Чем нагревается? Посилання на коментар Поділитися на інших сайтах More sharing options...
max197 Опубліковано: 18 січня 2017 Автор Поділитись Опубліковано: 18 січня 2017 Наверно я неправильно назвал, под словом "система" я подразумевал разводку обычной воды в сан. узел, кухню. Планируется поддерживать пусть даже минимальный + в доме чтобы вода в трубах и сифонах не замерзла. Отопления нет, так как сначала планировали использовать дачу только в теплое время года. Места под котел нет, газ не рассматриваю, электричество тоже т.к. это дачный кооператив и с электричеством постоянно "траблы". Каминную топку вижу как самый оптимальный вариант. Посилання на коментар Поділитися на інших сайтах More sharing options...
kai61 Опубліковано: 18 січня 2017 Поділитись Опубліковано: 18 січня 2017 Гарний, сучасний і грамотний проект. схоже, Ви вирішили вкластись в систему ізоляції, А вот с этим, извините, не соглашусь. Есть основное правило: Дом для ПМЖ следует утеплять снаружи, а дом для временного пребывания - изну три. Газобетон не имеет таких теплоаккумулирующих свойств, как полнотелый кирпич, но в данном случае, это и хорошо. Какова задача? 1. Приехать 1 раз в неделю 2. Не умирать над прогреванием дома, а приготовить шашлык и получить комфортную температуру для его поедания. Решение: 1. Продумать вариант установки утеплителя на стены внутри. Только правильно, с гидроизоляцией. 2. Использовать систему с максимально быстрым подъемом температуры в помещении. На мой взгляд, это конвективный камин с распределением тепла по комнатам (хотя я и противник такого метода в доме для ПМЖ). Для данной ситуации не стоит использовать системы с большими аккумулирующими свойствами - не успеете насладиться шашлыком - нужно будет аккумулировать 3. Не использовать воду в системе отопления. Все мы под Богом ходим - заболели, замело, лень и т.п. - и не поехали в выходные на дачу. А ехать нужно, хоть умри, ведь система разморозится! Зачем оно нужно? 4. Если будете строить-таки по своему плану - продумайте снижение потерь тепла через окна и вентиляцию. По нынешним погодам, с установкой щитов на окнах, кирпичной стеной, 20 см. ваты на стенах, массивным бетонным полом и ежедневной топкой, у меня температура в доме снижается где-то на 1-2 градуса в сутки без камина. 1 Посилання на коментар Поділитися на інших сайтах More sharing options...
Серж 30 Опубліковано: 18 січня 2017 Поділитись Опубліковано: 18 січня 2017 Отопления нет, так как сначала планировали использовать дачу только в теплое время года. Места под котел нет, газ не рассматриваю, электричество тоже т.к. это дачный кооператив и с электричеством постоянно "траблы". Каминную топку вижу как самый оптимальный вариант. У меня очень похожая дача, хотел тоже сперва поставить каминную топку, но потерял работу и мой бюджет резко сократился. Сейчас думаю поставить буллерьян со стеклом, а системе водоснабжения в нижней точки вставить эл. клапан, так чтобы кнопочку нажал и вода слилась. Вот с унитазом сложнее, там либо придется вычерпывать воду перед отъездом, либо включать эл.конвектор. Когда-то покупал такой в Эпицентре, там функция есть поддержания тепла в районе 5 градусов. А у вас случайно фоток потолка нет? И чем внутри штукатурили? Посилання на коментар Поділитися на інших сайтах More sharing options...
kai61 Опубліковано: 18 січня 2017 Поділитись Опубліковано: 18 січня 2017 Наверно я неправильно назвал, под словом "система" я подразумевал разводку обычной воды в сан. узел, кухню. Планируется поддерживать пусть даже минимальный + в доме чтобы вода в трубах и сифонах не замерзла. Отопления нет, так как сначала планировали использовать дачу только в теплое время года. Места под котел нет, газ не рассматриваю, электричество тоже т.к. это дачный кооператив и с электричеством постоянно "траблы". Каминную топку вижу как самый оптимальный вариант. Где-то на просторах Интернета, я встречал методы сохранения воды в жидком состоянии в сифонах. К сожалению, не припомню даже принципа . Может, стоит поискать. На ум приходит - откачивание или засыпка туда соли. Рассмотрите систему небольшого подогрева водяной трубы электрическим кабелем. Хотя, если уже все проведено, то это получится многодельно. Придется сливать, т.к. поддержать + в пределах помещения дома еще не решение проблемы - нужно утеплить и места входа воды в дом. Покроет ли их "пятно дома" - не факт, а проблем можно поиметь при размораживании труб. Лучше организовать простой слив. Посилання на коментар Поділитися на інших сайтах More sharing options...
Sheridan Опубліковано: 18 січня 2017 Поділитись Опубліковано: 18 січня 2017 А вот с этим, извините, не соглашусь. Може Ваша точка зору і вірна, особливо у світлі дачного кооперативу. Якщо питання тільки по сифонах, то достатньо тримати банку з дешевим етиленгліколем і заливати на відчалюваннях у сифони трішки етиленгліколю, тоді не замерзне, а оскільки водяного опалення взагалі немає, то все решта несуттєве. Усі підведення води слід буде зливати в каналізацію з труб, але це теж не важко організувати: під підлогою центральна магістраль має мати просто окремий кран перед насосом, щоб скинути всю воду. Посилання на коментар Поділитися на інших сайтах More sharing options...
Рекомендовані повідомлення
Створіть акаунт або увійдіть у нього для коментування
Ви маєте бути користувачем, щоб залишити коментар
Створити акаунт
Зареєструйтеся для отримання акаунта. Це просто!
Зареєструвати акаунтУвійти
Вже зареєстровані? Увійдіть тут.
Увійти зараз