Перейти до публікації
Пошук в
  • Додатково...
Шукати результати, які містять...
Шукати результати в...

Перепланировка квартиры в многоэтажке с переносом газовых труб и котла

alexdemua

Рекомендовані повідомлення

Здравствуйте.

В связи с началом ремонта в новостройке появилась идея перепланировки квартиры.

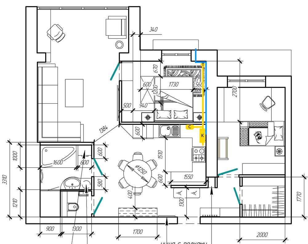
Чертежи по паспорту и желаемой планировки - прикрепил к сообщению.

Основная сложность на данном этапе - перенос газовых труб, газового двухконтурного котла и счётчика газа.

На чертежах газовая труба - жёлтая, Т - стояк газовой трубы, С - счётчик, К - котёл. Синяя линия - приточная вентиляция.

На данный момент есть несколько разных мнений людей с кем я общался, но единого пока не вырисовывается, такого, на основании которого можно было бы принять решение - делать такой вариант перепланировки или нет.

 

В общем, вот вопросы:

 

1) В связи с переносом котла и счётчика на кухню по мнению одного из моих знакомых специалистов происходит нарушение ДБН, а именно - газовое оборудование нельзя располагать в помещениях без окна/форточки. При этом, другой знакомый говорит, что вопрос спорный, и нарушения особо нет, т.к. это получается вроде как кухня-студия, ведь помещения объединяются и в объединённом помещении окно есть - то большое, которое в самой большой комнате вверху слева.

Соответственно, по мнению первого - если сделать эту перепланировку, то это нельзя будет сделать законно, более того - это не совсем хороший вариант с точки зрения безопасности.

А по мнению другого - по нормам если даже и не согласовать, то сделать всё можно, мол с точки зрения безопасности всё окей, а нормы тут просто можно трактовать по-разному. Главное сделать всё качественно и сделать пуск плиты сейчас, чтобы потом у газовщиков не было вопросов, когда будет уже всё переделано.

Трубы планируется никуда не прятать, доступ к ним будет (стояк будет идти как идёт, к нему под самым потолком вварится труба, которая пойдёт на кухню).

 

Как вы считаете, в данном случае нарушения по ДБН-ам есть?

Если всё же есть, то в чём именно?

Насколько реально опасны тогда эти нарушения?

Если всё же так сделать и не узаконить перемещение труб, котла и счётчика, то какой грозит штраф от газовщиков, если вообще грозит?

 

2) В обеих случаях говорят, что если уж так и делать, то обязательно тянуть приточную вытяжку. Единственное, что один говорит что протянуть трубу, немного заштробившись в стену и всё будет нормально.

А другой говорит, что в трубе в этом случае будет намерзать лёд и она вообще может замёрзнуть полностью.

Один товарищ сказал, что можно трубу утеплить тубексом или вообще из самого тубекса и соорудить, тогда ничего не замёрзнет и всё будет окей.

К слову, приточку планируется вывести под котёл, чтобы ему было откуда "кушать" кислород для горения.

Что думаете по этому вопросу?

 

3) Ещё есть момент по поводу дымохода из котла - он изначально находится сразу над котлом, поэтому при переносе его по стене нужно будет заворачивать гофру в канал, который перенести нельзя.

Соответственно, сам канал останется территориально в отгороженной комнате (спальне), а котёл переместится на кухню.

Значит нужно будет в спальне сооружать какой-то короб из гипсокартона, к которому будет доступ из шкафа на кухне, в котором будет размещаться котёл.

Здесь нюанс разве что в дверце под каналом, которая вроде как для очистки вентканала, но меня несколько человек уверяют, что у них уже по 3-5 лет они ничего не чистили, а когда туда заглядывали - всё было идеально чисто, поэтому эта дверца - чисто формальность и вряд ли понадобится.

Что думаете по этому моменту?

 

Надеюсь более-менее понятно описал ситуацию, рассчитываю на ваши советы.

Заранее спасибо.

1808913466_-.thumb.jpg.8dbe5f5922556ccde4e4ec36069527a1.jpg

1487056057_-.thumb.jpg.12829d23f1005c48c640764982f0039e.jpg

Посилання на коментар
Поділитися на інших сайтах

Вы в центре квартиры планируете разместить котел с открытой камерой сгорания, насколько я поняла, но без нормального притока воздуха и отвода дыма? А не боитесь однажды не проснуться всей семьёй?

Такой перенос коммуникаций - тяжелый и небезопасный гемор. Узаконить такое - вряд ли возможно.

Да и перепланировка - какая-то странная: кухня без окна и вентиляции, и , похоже, без канализации... Вы точно знаете, что вторую спальню стоит делать такой ценой?

Спальня родителей, как правило, это только спальня... Вот её и сделайте на том месте, где планируете кухню. Для освещения и вентиляции - окно в кухню под потолком.

Или увеличить кухню за счет зала, и сделать кухню-гостиную.

Посилання на коментар
Поділитися на інших сайтах

Вы в центре квартиры планируете разместить котел с открытой камерой сгорания, насколько я поняла, но без нормального притока воздуха и отвода дыма? А не боитесь однажды не проснуться всей семьёй?

Такой перенос коммуникаций - тяжелый и небезопасный гемор. Узаконить такое - вряд ли возможно.

Да и перепланировка - какая-то странная: кухня без окна и вентиляции, и , похоже, без канализации... Вы точно знаете, что вторую спальню стоит делать такой ценой?

Спальня родителей, как правило, это только спальня... Вот её и сделайте на том месте, где планируете кухню. Для освещения и вентиляции - окно в кухню под потолком.

Или увеличить кухню за счет зала, и сделать кухню-гостиную.

Спасибо за мнение, действительно решили отказаться от такой перепланировки. Теоретически там всё можно сделать, и канализация рядом, и с котлом всё решить, но уж больно много сложностей будет в процессе, да и узаконить это дело точно не получится.

Скорее всего, будем делать, как вы говорите: "или увеличить кухню за счет зала, и сделать кухню-гостиную".

Посилання на коментар
Поділитися на інших сайтах

Створіть акаунт або увійдіть у нього для коментування

Ви маєте бути користувачем, щоб залишити коментар

Створити акаунт

Зареєструйтеся для отримання акаунта. Це просто!

Зареєструвати акаунт

Увійти

Вже зареєстровані? Увійдіть тут.

Увійти зараз
×
×
  • Створити...