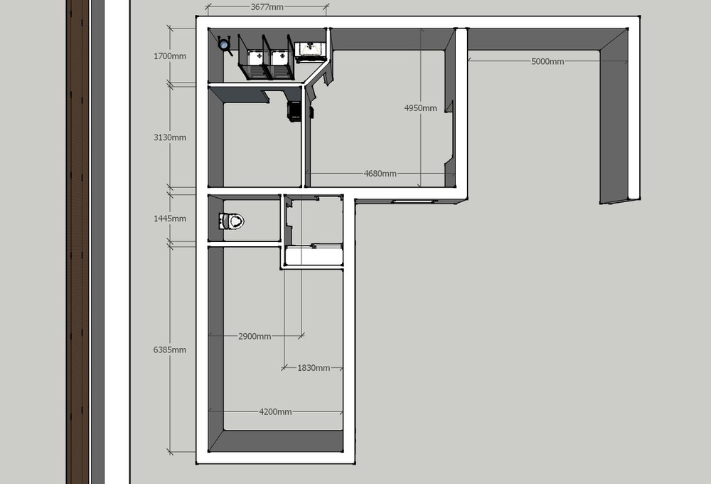
Hankey Опубліковано: 2 березня 2017 Поділитись Опубліковано: 2 березня 2017 Добрый день. Прошу совета и критики в планировке бани. Планирую построить баню с хозблоком и площадкой для барбекю. Вот набросал ориентировочную планировку, но что-то меня в ней смущает и я никак не могу понять, что именно, поэтому хотелось бы услышать дельных советов. Основные требования - размер парной для 3 - 4 человек и топка каменки обязательно должна быть со стороны комнаты отдыха. Во вложении примерно то что получилось. Плюс примерное расположение лавочек в парной (только развернуть нужно на 180 градусов.). Заранее благодарю за ответы. Посилання на коментар Поділитися на інших сайтах More sharing options...
Hankey Опубліковано: 2 березня 2017 Автор Поділитись Опубліковано: 2 березня 2017 Накидал еще один вариант. Немного увеличил размер парной. И уменьшил душевой. Кстати - забыл указать высота потолка в парной 2,4. Каменка планируется от 10м3 до 24м3. Посилання на коментар Поділитися на інших сайтах More sharing options...
Александр с Донецка Опубліковано: 3 березня 2017 Поділитись Опубліковано: 3 березня 2017 Аппендикс в предбаннике лишний, его хватит в уровень с парилкой. Расположить душевые лейки, над ними обливные ведра. Еще места хватит для небольшой, заглубленной в уровень с полом купели. Рукомойник там лишний. Добавлено через 16 минут Парилка, теряет полезную площадь за счет прохода между печью и полоком. Не хватает ширины, как то не уютно. Посилання на коментар Поділитися на інших сайтах More sharing options...
Dart L Опубліковано: 6 березня 2017 Поділитись Опубліковано: 6 березня 2017 Добрый день. Прошу совета и критики в планировке бани. Планирую построить баню с хозблоком и площадкой для барбекю. Вот набросал ориентировочную планировку, но что-то меня в ней смущает и я никак не могу понять, что именно, поэтому хотелось бы услышать дельных советов. Основные требования - размер парной для 3 - 4 человек и топка каменки обязательно должна быть со стороны комнаты отдыха. Во вложении примерно то что получилось. Плюс примерное расположение лавочек в парной (только развернуть нужно на 180 градусов.). Заранее благодарю за ответы. На каком расстоянии установлена дверь от угла стены рядом с печью? Судя потому, что видно на картинке, вы поставили дверь вплотную. Не нужно так. Или дверь переносить дальше или печь смещать. Посилання на коментар Поділитися на інших сайтах More sharing options...
Рекомендовані повідомлення
Створіть акаунт або увійдіть у нього для коментування
Ви маєте бути користувачем, щоб залишити коментар
Створити акаунт
Зареєструйтеся для отримання акаунта. Це просто!
Зареєструвати акаунтУвійти
Вже зареєстровані? Увійдіть тут.
Увійти зараз