Перейти до публікації
Пошук в
  • Додатково...
Шукати результати, які містять...
Шукати результати в...

Ремонт ТаунХауса

Stepashko

Рекомендовані повідомлення

Добрый день, хотим сделать ремонт в таунхаусе.

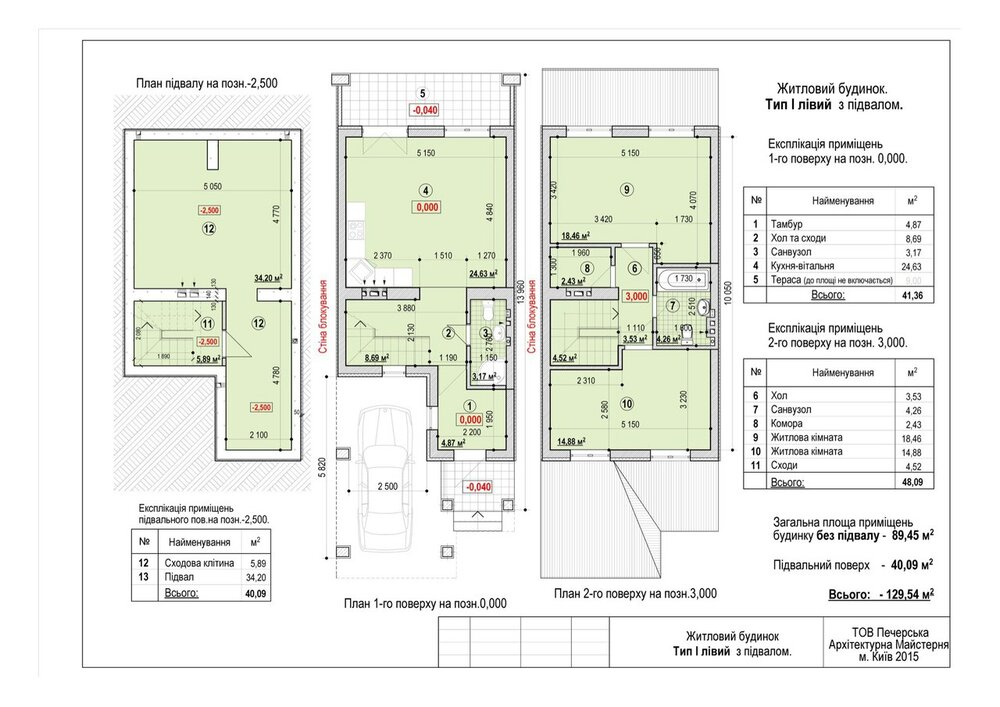
для начала нужно сделать теплый пол, на первом этаже, санузле на втором и в подвале возле лестницы, а также залить бетонную лестницу с подвала на первый этаж, с первого на второй и со второго на мансарду.

Интересуют цены на работы, а также нужна бригада которая выполнит все ремонтные работы под ключ

Tco83da2FD8.thumb.jpg.cc3fb902e5cd5e46122e5d65d25fd49d.jpg

350001534_4_1000x700_izgotovlenie-lestnits-iz-betona-biznes-i-uslugi_rev026.jpg.c8042b34c0499a8d59997b54fc7b03ef.jpg

Посилання на коментар
Поділитися на інших сайтах

Створіть акаунт або увійдіть у нього для коментування

Ви маєте бути користувачем, щоб залишити коментар

Створити акаунт

Зареєструйтеся для отримання акаунта. Це просто!

Зареєструвати акаунт

Увійти

Вже зареєстровані? Увійдіть тут.

Увійти зараз
×
×
  • Створити...