Перейти до публікації
Пошук в
  • Додатково...
Шукати результати, які містять...
Шукати результати в...

Монтаж керамической черепицы

Виктор П

Рекомендовані повідомлення

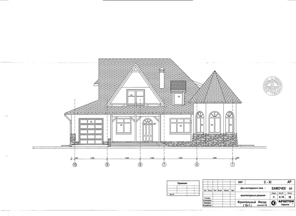
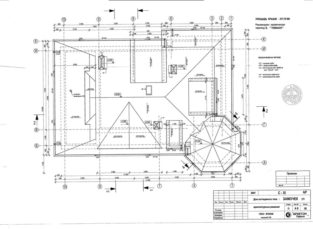
С середины лета планирую кровлю мансардного дома:

-площадь-250-270м.кв;

-черепица - tondach романская;

- подкровельная пленка - сдм;

- необходимые работы -устройство стропилки, укладка сдм и черепицы, лобовой доски, капельника. Подшиву, утепление и водосточку - не требуется.

- место работ - пригород Одессы (3 км).

Спасибо, жду предложений и вопросов, кому интересно)

3.thumb.jpg.41cb3b1272b55c761d56bd33945a6ce1.jpg

20110120165045642_00000001.thumb.jpg.53bf421bd4b15b1bac8e3d415da52983.jpg

20110120165103736_00000001.thumb.jpg.be6c25c50a59f984ed015a721c6ebfef.jpg

20110120165140454_00000001.thumb.jpg.c4c8f6d29cded1dbfd9248ed54f8de36.jpg

20110120165231464_00000001.thumb.jpg.2ca2253b615a30bfdb5c899798bd374b.jpg

20110120165244806_00000001.thumb.jpg.9138cc0c166f6e672dc62e7e3563311b.jpg

Посилання на коментар
Поділитися на інших сайтах

Рекомендую сделать подкровельную гидроизоляцию по сплошному настилу и с проклейкой лентой под контррейку.

 

Понимаю, что совета вы моего и не спрашивали, но наглядевшись на проблемы с такими крышами как у Вас, не могу пройти мимо.

 

Тем более, это наверняка повлияет на конечную стоимость работ.

  • Лайк 1
Посилання на коментар
Поділитися на інших сайтах

Створіть акаунт або увійдіть у нього для коментування

Ви маєте бути користувачем, щоб залишити коментар

Створити акаунт

Зареєструйтеся для отримання акаунта. Це просто!

Зареєструвати акаунт

Увійти

Вже зареєстровані? Увійдіть тут.

Увійти зараз
×
×
  • Створити...