Перейти до публікації
Пошук в
  • Додатково...
Шукати результати, які містять...
Шукати результати в...

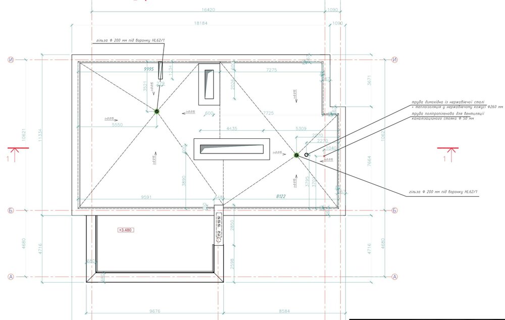
Плоская крыша 240 м2

V1.Sky

Рекомендовані повідомлення

Ищу специалистов. Необходимо сделать плоскую не экплуатируемую крышу 185 +55 м2 (на разных уровнях). Утепление XPS 200 мм, разуклонка, изоляция парапета и световых люков, ливневка.

 

Расмотрю предложения по производителям мембран и предварительной оценке стоимости работ.

 

При выборе подрядчика, опыт, положительные отзывы с предыдущих объектов приориететней цены .

 

Виталий

943342989_2017-07-1023_38_27.thumb.jpg.1b9982b9b4cceb5553f1e83ecfd2d502.jpg

Посилання на коментар
Поділитися на інших сайтах

Створіть акаунт або увійдіть у нього для коментування

Ви маєте бути користувачем, щоб залишити коментар

Створити акаунт

Зареєструйтеся для отримання акаунта. Це просто!

Зареєструвати акаунт

Увійти

Вже зареєстровані? Увійдіть тут.

Увійти зараз
×
×
  • Створити...