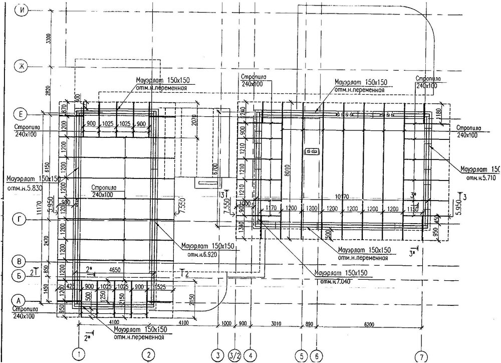
MOV Опубліковано: 23 вересня 2009 Поділитись Опубліковано: 23 вересня 2009 Кровля односкатная, битумка. Вот такие узлы предлагает конструктор. Прошу совета по нескольким пунктам: 1. Не велико ли сечение мауэрлата (150х150) и стропил (240х100) (хочется сэкономить)? 2. Нужен ли армопояс под мауэрлат? 3. А чем-то сейчас заменяют толь? Еврорубероид? Или что? 4. В проекте указано ОСБ 12, может можно 10? Заранее спасибо Посилання на коментар Поділитися на інших сайтах More sharing options...
Aleksei_Kiev Опубліковано: 23 вересня 2009 Поділитись Опубліковано: 23 вересня 2009 Кровля односкатная, битумка. Вот такие узлы предлагает конструктор. Прошу совета по нескольким пунктам: 1. Не велико ли сечение мауэрлата (150х150) и стропил (240х100) (хочется сэкономить)? 2. Нужен ли армопояс под мауэрлат? 3. А чем-то сейчас заменяют толь? Еврорубероид? Или что? 4. В проекте указано ОСБ 12, может можно 10? Заранее спасибо если конструктор рассчитывал вам нагрузки на кровлю то явно не спроста такие стропила и маурлат, кровля то пологая. ОСБ можно поменять на 10мм но при этом участить шаг обрешетки прийдется.... Посилання на коментар Поділитися на інших сайтах More sharing options...
MOV Опубліковано: 23 вересня 2009 Автор Поділитись Опубліковано: 23 вересня 2009 ОСБ можно поменять на 10мм но при этом участить шаг обрешетки прийдется.... Понятное дело, конструктор не с потолка придумал, но конструкторы склонны закладывать запас прочности не всегда оправданный. Поэтому и возникли у меня вопросы. А какой шаг обрешетки должен быть при 10 мм ОСБ? Посилання на коментар Поділитися на інших сайтах More sharing options...
Aleksei_Kiev Опубліковано: 24 вересня 2009 Поділитись Опубліковано: 24 вересня 2009 Понятное дело, конструктор не с потолка придумал, но конструкторы склонны закладывать запас прочности не всегда оправданный. Поэтому и возникли у меня вопросы. А какой шаг обрешетки должен быть при 10 мм ОСБ? шаг 312 мм, на осб 1250х2500 получиться по швам и три посередине листа, будет достаточно. 1 Посилання на коментар Поділитися на інших сайтах More sharing options...
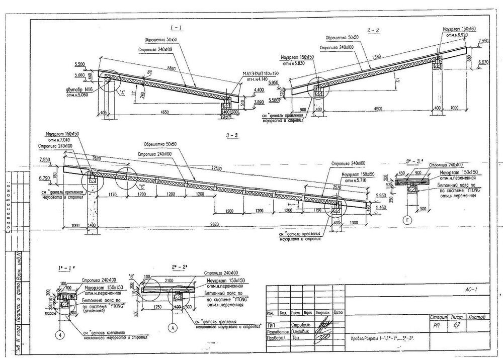
alexmetall Опубліковано: 24 вересня 2009 Поділитись Опубліковано: 24 вересня 2009 На чертежах не указан шаг стропил. Если у Вас битумная черепица: На 12 м пролете стропилина высотой 240 не спасет. Нужна металическая балка хотя бы двутавр №24, с шагом 4-5 м. На балки укладываются стропила - 150х50 с шагом 1 м. А в остальных пролетах - на 6 м нормально несет деревяная балка 180*50 шагом 800-1000 (максимум). Посилання на коментар Поділитися на інших сайтах More sharing options...
MOV Опубліковано: 24 вересня 2009 Автор Поділитись Опубліковано: 24 вересня 2009 Да там вроде и нету 12 метровых пролетов - максимум 9,6м, и шаг указан. Я сча еще один чертеж отсканирую, будет понятнее Посилання на коментар Поділитися на інших сайтах More sharing options...
alexmetall Опубліковано: 24 вересня 2009 Поділитись Опубліковано: 24 вересня 2009 Для балки 240х100 пролетом 9,6 м с нагрузкой 180 кг/м(снег+пирог кровли для Киева)-не проходит Результаты раcчета Проверено по СНиП Проверка Коэффициент использования п. 4.9 Прочность элемента при действии изгибающего момента 1,52 п.4.10 Прочность при действии поперечной силы 0,295 п.4.14 Устойчивость плоской формы деформирования 0,261 п.4.33 Прогиб 3,269 Коэффициент использования 3,269 - Прогиб Максимальный прогиб - 0,157 м Для балки 180х70 пролетом 4,7 м с нагрузкой 180 кг/м(снег+пирог кровли для Киева)-проходит Результаты раcчета Проверено по СНиП Проверка Коэффициент использования п. 4.9 Прочность элемента при действии изгибающего момента 0,921 п.4.10 Прочность при действии поперечной силы 0,274 п.4.14 Устойчивость плоской формы деформирования 0,125 п.4.33 Прогиб 1,312 Коэффициент использования 1,312 - Прогиб Максимальный прогиб - 0,031 м На 9 м. предлагаю сделать металические балки - швеллер 22 (неекономично но просто) или же если высота позволяет - фермочки(економично по металлу но чуть дольше по изготовлению Все это не в обиду Вашему конструктору. Посилання на коментар Поділитися на інших сайтах More sharing options...
MOV Опубліковано: 24 вересня 2009 Автор Поділитись Опубліковано: 24 вересня 2009 Спасибо за рекомендации! Я только наверное не совсем правильно написала - 9,6м это перекрываемое пространство, а балки лежат не вдоль, а поперек - по стороне которая 6,15м. Получается пролет 6,15м? Посилання на коментар Поділитися на інших сайтах More sharing options...
alexmetall Опубліковано: 24 вересня 2009 Поділитись Опубліковано: 24 вересня 2009 Да. Получается пролет балок - 6,15. Тогда стропилины 180х70 достаточно при шаге 1 м а не 1.2 как на чертеже. Просто на разрезе 3-3 расстояние между стенами - 9,6 м. Это и вводит в заблуждение. Сечение мауерлата при наличии монолитного пояса и шаге шпилек 1000 мм можно уменьшить до 100х100(если это в чем-то спасет). А так размер назначался скорее всего конструктивно. 1 Посилання на коментар Поділитися на інших сайтах More sharing options...
Рекомендовані повідомлення
Створіть акаунт або увійдіть у нього для коментування
Ви маєте бути користувачем, щоб залишити коментар
Створити акаунт
Зареєструйтеся для отримання акаунта. Це просто!
Зареєструвати акаунтУвійти
Вже зареєстровані? Увійдіть тут.
Увійти зараз