Перейти до публікації
Пошук в
  • Додатково...
Шукати результати, які містять...
Шукати результати в...

Свежий взгляд форумчан на планировку Таунхауза

SultArt

Рекомендовані повідомлення

Всем привет, Форумчане:flag1:.

 

Нужен свежий взгляд на планировку Таунхауза.

Стройка компания и покупка была сделана уже когда стены были выгнаны. Стены выполнены из красного кирпича, внутренние перегородки из газобетона (за исключением санузла).

 

Но увы та планировка которая предложена застройщиком не очень подходит.

3D 1.jpg

3D 2.jpg1.jpg

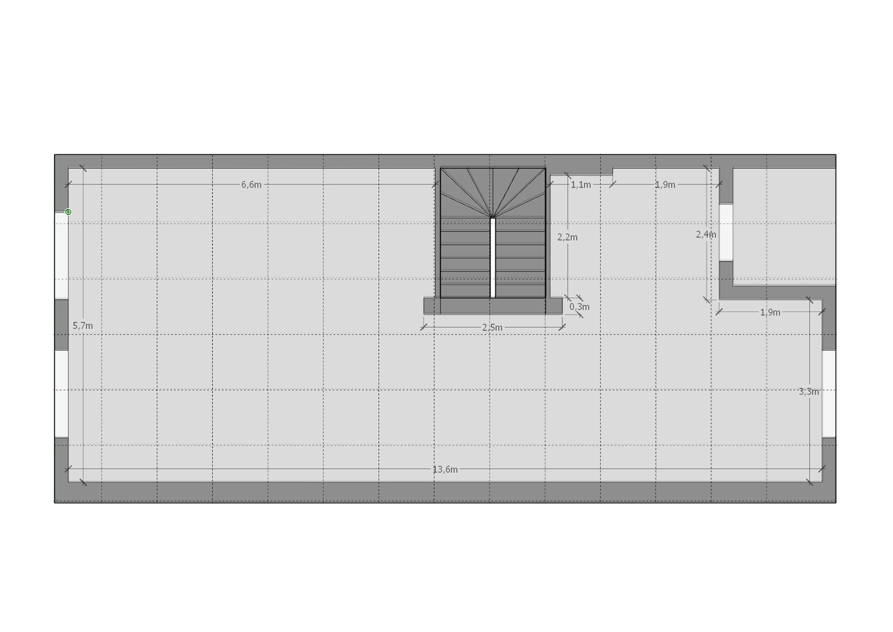
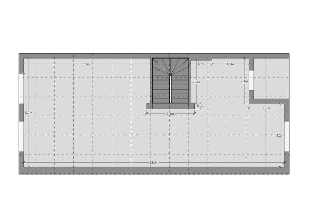
1st floor original.jpg

(Зеленый квардатик на плане это место Газового котла)

С супругой уже рассматривали разные варианты, но что-то все не совсем то что хочется (может зациклились на чём-то).

 

Поэтому любезно прошу Вас, дорогие Форумчане, может понакидаете каких-то свежих идей... Или подтвердите правильность наших мыслей...

Чистый лист.JPG (Чистый лист для творчества)

 

В свою очередь обязуюсь по мере возможности интересные идеи реализовывать в 3D

 

PS. Я не прошу сделать на шару дизайн проект, просто нужна какая-то идея, за которую можно зацепиться...:"":

997196921_3D1.thumb.jpg.1010b25625e4e7ea7ba7eb88e10abe2f.jpg

916645770_3D2.thumb.jpg.063d6a47f4cfc38cf668cb2590d11ee3.jpg

1.thumb.jpg.e8bcec8a117d1982fe68dd4d61f9beea.jpg

601024561_1stfloororiginal.thumb.jpg.baa9268e450e9b113cbc9158b6e97f5e.jpg

1930452349_.thumb.JPG.b35cce38f82eb696d9e0d913939fdaf5.JPG

Посилання на коментар
Поділитися на інших сайтах

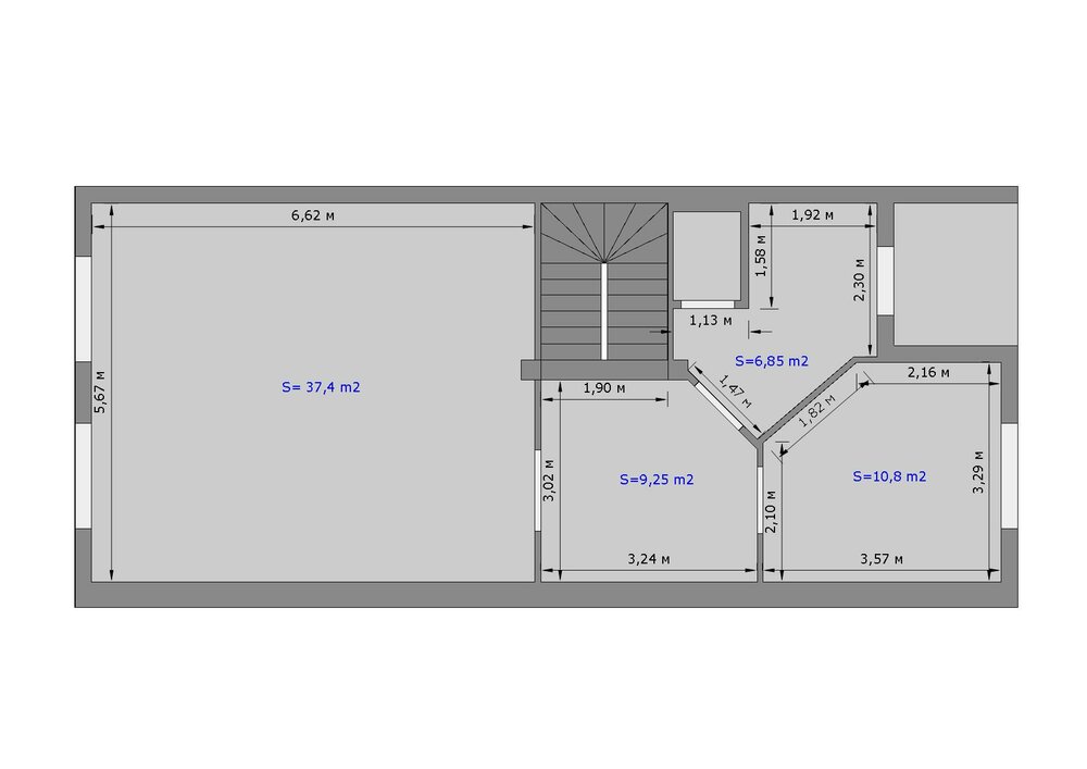
Так как хочется по максимуму избавиться от перегородок и сделать этот этаж более открытым, свободным то на данный момент есть вот такие мысли (см фото)

image.thumb.jpeg.13ff0d7cbec303fd4db0b030d6c5d4a7.jpeg

1. Прихожая

2. Кухня

3. Санузел

4. Большая Комната

С целью увеличить прихожую, санузел переносится на другую сторону от лестницы. Перегородки между кухней, холлом и большой комнатой сносятся.

 

Чуть позже выложу план в более аккуратном виде.

Посилання на коментар
Поділитися на інших сайтах

Посмотрите может пригодится. Планировки немного отличаются и обстановка отличается. alberta.brookfieldresidential.com/edmonton/grove-on-25th/floor-plans/twain-in-grove-on-25th/16115 alberta.brookfieldresidential.com/edmonton/grove-on-25th/floor-plans/van-gogh-in-grove-on-25th/490 alberta.brookfieldresidential.com/edmonton/grove-on-25th/floor-plans/michelangelo-grove-orchards/491 alberta.brookfieldresidential.com/edmonton/grove-on-25th/floor-plans/shakespeare-in-grove-on-25th/16102 alberta.brookfieldresidential.com/edmonton/grove-on-25th/floor-plans/franklin-in-grove-on-25th/16100

Размещение кухни посередине , как раз напротив лестницы. Выбираете интерактивный тур и бродите https://www.rohitcommunities.com/regina/new-duplexes/bridgeport/

 

Добавлено через 28 минут

Почему то коряво отражаются ссылки, не могу понять почему

Змінено користувачем larsenam
Посилання на коментар
Поділитися на інших сайтах

Створіть акаунт або увійдіть у нього для коментування

Ви маєте бути користувачем, щоб залишити коментар

Створити акаунт

Зареєструйтеся для отримання акаунта. Це просто!

Зареєструвати акаунт

Увійти

Вже зареєстровані? Увійдіть тут.

Увійти зараз
×
×
  • Створити...