Stolica999 Опубліковано: 1 жовтня 2009 Поділитись Опубліковано: 1 жовтня 2009 Думаю стоит только поменять комнату с кухней местами Посилання на коментар Поділитися на інших сайтах More sharing options...
Comondor Опубліковано: 1 жовтня 2009 Поділитись Опубліковано: 1 жовтня 2009 В принципе нормальный проект, каналы для кухни рядом - можно и поменять. Кровлю придеться подкоректировать, веранду перенести, да и в гостиной дверь сделать для спальни. Вроде проблем быть не должно. А по плану неплохо, так сказать на вкус. =) Посилання на коментар Поділитися на інших сайтах More sharing options...
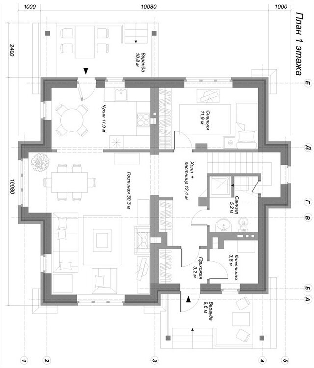
Sokratus-A Опубліковано: 17 жовтня 2009 Поділитись Опубліковано: 17 жовтня 2009 Как по мне: 1. Кухня очень удачно находится рядом с гостинной, если менять местами, то получается из спальни, в негляже, мимо гостей. 2. Спальня на втором этаже великовата (23,5м). Можно сделать хорошую гардеробную, т.к. на первом этаже нет кладовок и др. подс помещений, в связи с этим и крышу можно подкоректировать. 3. Спальня (11,9м) - без окон 4. Жаль нет фото фасадов, Как выглядит крыша? Это типовой проект? В целом - удачный проект! Посилання на коментар Поділитися на інших сайтах More sharing options...
ALEXX17 Опубліковано: 17 жовтня 2009 Поділитись Опубліковано: 17 жовтня 2009 Лично для меня, дом начинаеться с внешнего вида, а не с планировки. Если мне не нравиться внешний вид - я даже не рассматриваю планировку. А как по вашим планировка можно судить о доме? Посилання на коментар Поділитися на інших сайтах More sharing options...
vorona Опубліковано: 17 жовтня 2009 Поділитись Опубліковано: 17 жовтня 2009 Да с внешним видом тоже все отлично. Это проект Шильникова www.shilnikov.ru/page8.htm Пол России его уже оценило на форуме "дом и дача" в разделе "лучший проект". Пора уже клуб поклонников этого проекта открывать. Мне он тоже очень нравится. А в маленькой спальне на втором этаже есть мансардное окно. Думаю, она больше под гостевую подошла бы. 1 Посилання на коментар Поділитися на інших сайтах More sharing options...
ALEXX17 Опубліковано: 17 жовтня 2009 Поділитись Опубліковано: 17 жовтня 2009 Да, действительно суперовый проект. Жаль мне не влезет по ширине!!!:( Посилання на коментар Поділитися на інших сайтах More sharing options...
Рекомендовані повідомлення
Створіть акаунт або увійдіть у нього для коментування
Ви маєте бути користувачем, щоб залишити коментар
Створити акаунт
Зареєструйтеся для отримання акаунта. Це просто!
Зареєструвати акаунтУвійти
Вже зареєстровані? Увійдіть тут.
Увійти зараз