Перейти до публікації
Пошук в
  • Додатково...
Шукати результати, які містять...
Шукати результати в...

Поругайте пожалуйста, 2-а этажа без цоколя, спасибо.

v@nya

Рекомендовані повідомлення

Всем привет, вот и мы решились,

как раз очень благоприятный момент для стройки :)

 

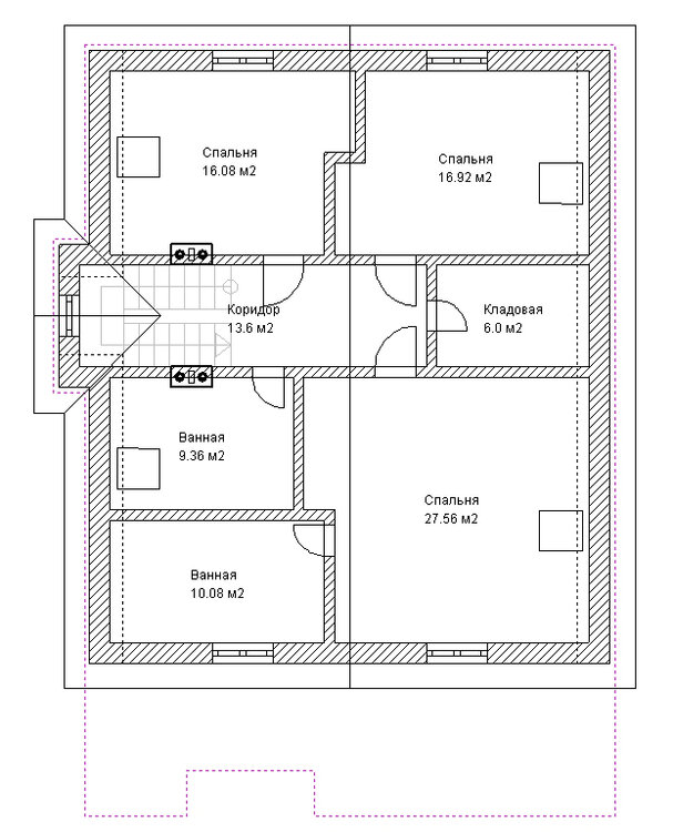
Дом планируется в два этажа, без цоколя.

 

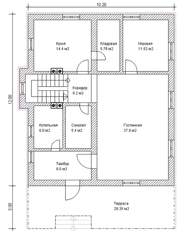
Выставляю первый этаж (возле туалета будет лестница на второй этаж, упустил).

 

Сильно не ругайте, освоил програмку за 5-ть минут.

2143353624_perviyetag.thumb.JPG.d96244c8e01413771db19df98581d8cb.JPG

Посилання на коментар
Поділитися на інших сайтах

как-то не очень.

смущают угловые комнаты гардеробная и детская игровая. как-то гостинная неуютно будет. да и не очень экономно - лишние стены

Посилання на коментар
Поділитися на інших сайтах

Здравствуйте. Лично мне не очень понравилось, т.к. гостинная проходная (но это каждому свое), с трудом представляю как разместить лестницу и как она будет выходить на мансарду, что естественно скажется на планировке последней, и конечно же архитектура (внешний вид) здания, по-моему будет жах. Попробовал оставить расположение и вот что получилось:

1073612899_1-.thumb.jpg.c07c0aa69d495d4bcb39b9dcc2a13036.jpg

1443392100_.thumb.jpg.a74afcaa38efda4ccc1199802d42ba2e.jpg

Посилання на коментар
Поділитися на інших сайтах

Створіть акаунт або увійдіть у нього для коментування

Ви маєте бути користувачем, щоб залишити коментар

Створити акаунт

Зареєструйтеся для отримання акаунта. Це просто!

Зареєструвати акаунт

Увійти

Вже зареєстровані? Увійдіть тут.

Увійти зараз
×
×
  • Створити...