banker Опубліковано: 13 серпня 2007 Поділитись Опубліковано: 13 серпня 2007 на всеобщее так сказать обсуждение. к критике готов любого типа (конструктив, проста так, осуждение) :-D Посилання на коментар Поділитися на інших сайтах More sharing options...
homeauto.com.ua Опубліковано: 13 серпня 2007 Поділитись Опубліковано: 13 серпня 2007 на всеобщее так сказать обсуждение. к критике готов любого типа (конструктив, проста так, осуждение) :-D Домик-симпатяга. С почином и удачи! Посилання на коментар Поділитися на інших сайтах More sharing options...
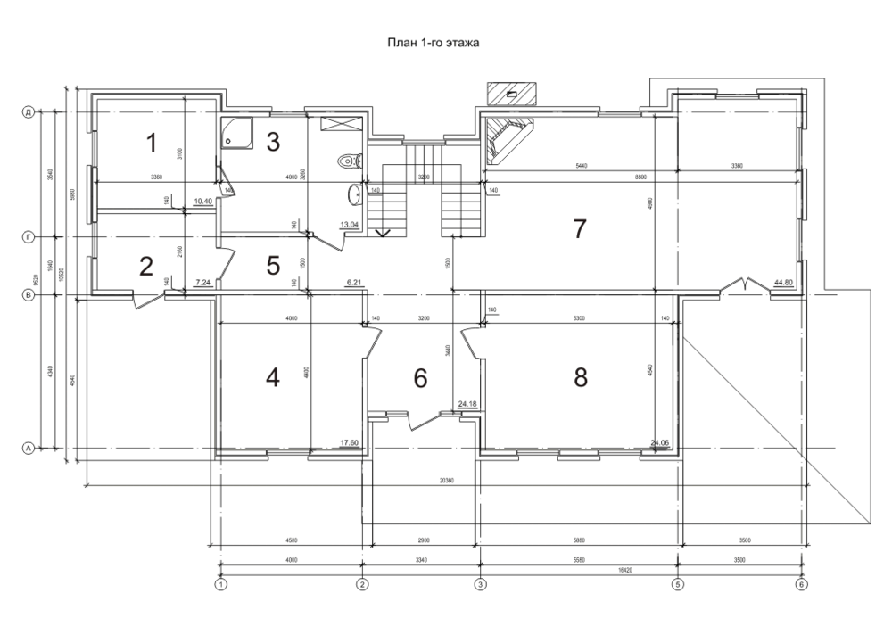
homeauto.com.ua Опубліковано: 13 серпня 2007 Поділитись Опубліковано: 13 серпня 2007 Я тут немного подредактировал план помещений - добавил комнату №8. По-моему для гостинной/каминной (№7) 44 кв.м. вполне досточно. Возможно также нужно сделать предбанник для основного входа чтобы удерживалось тепло. Как я понимаю №1 это прачечная, №2 - топочная, №4 - кухня. Посилання на коментар Поділитися на інших сайтах More sharing options...
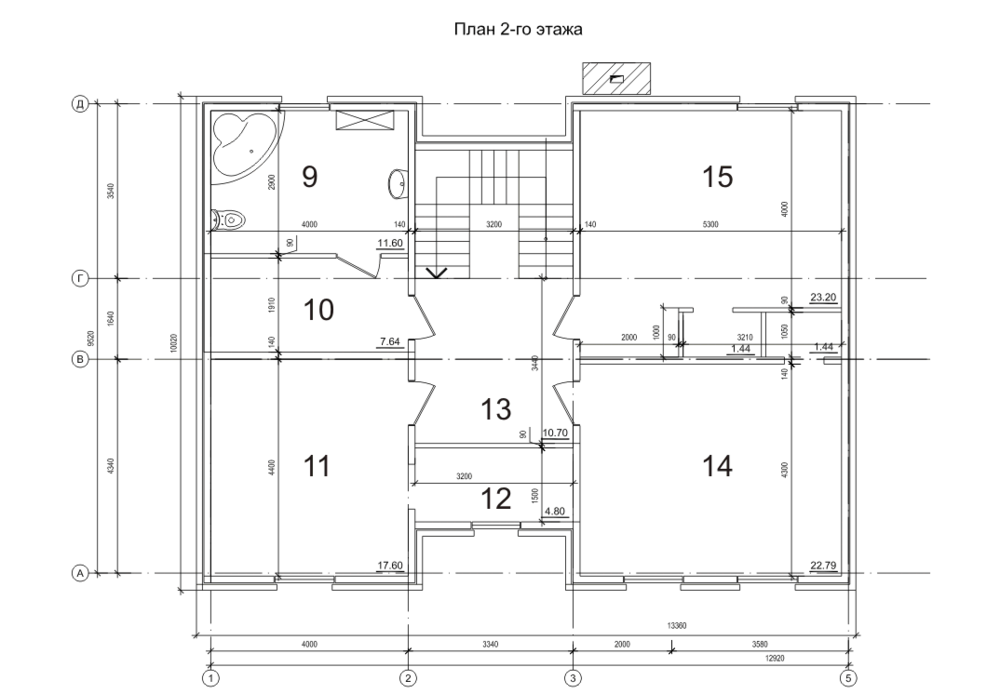
banker Опубліковано: 14 серпня 2007 Автор Поділитись Опубліковано: 14 серпня 2007 пасиба за коменты. 1. 8 - это кухня. 2. 2 - это топочная. 3. 1 - это сауна - сразу вопрос - хочу сауну на 3/4 чел. какая площадь подойдет? и как встроенная сауна повлияет? надо ли ей закрытое простарснтсо или можно объединиьт с сануздом ? 4. с тамбуром согласен, буду добавлять - наверное 1м или 1,5м 5. 4 - это гостевая комната, вход наверное придется перенести в коридорчик перед санузлом/сауной. 6. на втором этаже думаю добавить 2-й маленький (3-й) санузел: унитаз+умывальник еще возникли вопросы: 1. где в гостинной разместить плазму? 2. ставни на окна, деревянные с закрытием изнутри 3. роллеты на балконные двери? 4. топочная кажется маленькой как для размещения в ней котла, бойлера, или попдойдет 7,24 м2? З.Ы. продолжение следует. :-D Посилання на коментар Поділитися на інших сайтах More sharing options...
homeauto.com.ua Опубліковано: 14 серпня 2007 Поділитись Опубліковано: 14 серпня 2007 5. 4 - это гостевая комната, вход наверное придется перенести в коридорчик перед санузлом/сауной. Imho, если сделать вход с коридорчика, то еще лучше будет. А на освободившемся месте можно гардероб сделать. 1. где в гостинной разместить плазму? В изначальном варианте это сделать труднее, чем в моей модификации - не хватает стен. Схема размещения домашнего кинотеатра примерно следующая. Если для боковых и задних колонок допускается размещение в потолке (со скрипом на душе), то фронт и сабвуфер нужно размещать по линии зрителя/телевизора. Если перегородить стену между гостиной и кухней, то на ней можно повесить плазму любых размеров и все передние колонки разместить. Но тогда возникают проблемы с входом на кухню. 2. ставни на окна, деревянные с закрытием изнутри 3. роллеты на балконные двери? По этому вопросу на форуме есть хорошая дискуссия. Свое видение как автоматизировать это дело я выложил здесь. 4. топочная кажется маленькой как для размещения в ней котла, бойлера, или попдойдет 7,24 м2? Вполне достаточно. Мой знакомый на подобной площади ставит довольно таки мощный котел Viessmann. Правда нужна независимая естественная вентиляция помещения. P.S. Как можно отцентрировать картинку в сообщении? P.P.S. Это только у меня пропала возможность сохранять изображения на сервере форума или у всех форумчан те же проблемы? Посилання на коментар Поділитися на інших сайтах More sharing options...
banker Опубліковано: 14 серпня 2007 Автор Поділитись Опубліковано: 14 серпня 2007 пасиба. по плазме нестіковка в том что за спиной будет камин, которій в углу. планируется поставить возле него кресла ,диванчики. а справа телик не повесишь, ибо окна. есть еще вопрос по террасе. вроде советуют ее делать в закрітой для просмотра зоне (интимной) а у нас получается она фасадная, ибо открівается весь луг (вид обалденній ), а задняя часть дома смотрит на соседский. наш участок стоит во второй линии от дороги. кстати вопрос по планированию участка? форма прямоугольная 32*45. пятно дома с террасой и навесом под машину получается 11*20. біла идея посадить его поглубже на участке, но тогда заезд, дорожка к дому место будет седать и лужайка будет не за домом а справа. а может кто посоветует толкового дизайнера по участку? понятное дело что не на безвозмездной основе :-D Посилання на коментар Поділитися на інших сайтах More sharing options...
homeauto.com.ua Опубліковано: 14 серпня 2007 Поділитись Опубліковано: 14 серпня 2007 по плазме нестіковка в том что за спиной будет камин, которій в углу. планируется поставить возле него кресла ,диванчики. В этом помещении очень непросто удачно разместить домашний кинотеатр. Однако, очень часто так получается, что телевизор размещается на противоположной стороне от камина, а кресла, журнальный столик - перпединкулярно телевизору и камину. На вопрос, а как же при этом смотреть телевизор знакомая дизайнерша отвечает, что "нужно повернуться к нему лицом", что "вся Европа так смотрит". :-D есть еще вопрос по террасе. Как я понял (скорее всего не правильно) у тебя получается следующее расположение участка и дома. А где будет навес для автомобиля, с какой стороны заезд, что вы хотите разместить на участке? Imho, вначале нужно определиться с требованиями, а уже потом идти к ландшафтному дизайнеру. Посилання на коментар Поділитися на інших сайтах More sharing options...
banker Опубліковано: 14 серпня 2007 Автор Поділитись Опубліковано: 14 серпня 2007 правильон но не совсем. сверху сосед с первой линии. слева и справа тоже соседи. спереди (снизу) заезд, дорога за которой откріваются поля и долині. посему дом плаинировал смещать в левую часть. так что навес будет как раз рядом с забором соседа. сразу вопрос : 5 метров от межи считается от здания или от крайней стойки навеса? так же вопрос по ходу: септик можно копать за территорией, за забором? или можно будет под навесом его забацать? а относительно телик напротив камина - вариант, поразмішляю. З.І. а ваще я думал что индивидуальніе проекті домов мало кому интресені, так что спасибо Вам homeauto.com.ua за дельніе советі. Посилання на коментар Поділитися на інших сайтах More sharing options...
homeauto.com.ua Опубліковано: 14 серпня 2007 Поділитись Опубліковано: 14 серпня 2007 правильон но не совсем. Исправил, но возможно не совсем так как нужно. навес будет как раз рядом с забором соседа... 5 метров от межи считается от здания или от крайней стойки навеса? так же вопрос по ходу: септик можно копать за территорией, за забором? или можно будет под навесом его забацать? Это расстояние касается дома (или даже капитальных сооружений, которые регистрируются как недвижимое имущество под отдельными артикулами - нужно проверить). Imho, септик можно копать где-угодно, главное согласовать этот вопрос с заинтересованными сторонами и зафиксировать договоренность надлежащим способом... :-D ваще я думал что индивидуальніе проекті домов мало кому интресені Ну почему же, они как раз и интересны. Спутниковое и эфирное телевидение будет? Если да, то антену и тарелку где будете ставить ? Ландшафное освещение делать будете? Посилання на коментар Поділитися на інших сайтах More sharing options...
banker Опубліковано: 14 серпня 2007 Автор Поділитись Опубліковано: 14 серпня 2007 получается что интересні , только не всем (пока только радуюсь нашему диалогу, но готов разделить нашу радость с новіми участниками ) :-D Посилання на коментар Поділитися на інших сайтах More sharing options...
homeauto.com.ua Опубліковано: 14 серпня 2007 Поділитись Опубліковано: 14 серпня 2007 получается что интересні , только не всем (пока только радуюсь нашему диалогу, но готов разделить нашу радость с новіми участниками ) :-D Уверен, что интересны. Народ пока не освободился от работы, щас набегут, такую тему не пропустят ... :-D Посилання на коментар Поділитися на інших сайтах More sharing options...
teninch Опубліковано: 14 серпня 2007 Поділитись Опубліковано: 14 серпня 2007 где в гостинной разместить плазму? Для своего проекта я попросил архитектора сделать предварительную расстановку мебели. Обещала сделать за день, по факту делала три дня, при этом переставила по-другому половину перегородок, поменяла расположение окон. Сразу ушли лишние споры. О проекте. Хорошо все. Что нравится(особо)- Шикарная лестница. Если постараться , отделать нетривиально-просто бомба. Что непонятно-при входе нет гардероба. И....а где гараж?, что за помещение 10? Какая у вас ширина террасы? Из чего собираетесь делать покрытие террасы и ,за одно,чем крышу крыть собираетесь, какая наружная облицовка планируется? Посилання на коментар Поділитися на інших сайтах More sharing options...
teninch Опубліковано: 14 серпня 2007 Поділитись Опубліковано: 14 серпня 2007 Вгляделся вваш зал. У вас идет архитектурное зонирование зала на две логичные части-диванная группа плюс телевизор и каминная группа. Так и нужно размещать. Очень просто , если бы не было окна на стене примыкания камина. (оно вам надо)? Если окна не меняем, тогда можно повесить ТВ на простенок между окнами, диваны вогруг. Возле камина пара кресел. Вуаля. Посилання на коментар Поділитися на інших сайтах More sharing options...
banker Опубліковано: 15 серпня 2007 Автор Поділитись Опубліковано: 15 серпня 2007 приветики. по порядку: наверное убью наповал если скажу что весь проект - концепция демисезонного загороднего дома (апр-нояб). посему гараж заменил навесом, гардероб в прихожей наверное заменю рядовой вешалкой + тумбой/полками под обувь в тамбуре. 10 - это типа постирочная + поглажечная. вот этот вход в ванну 9 через эту комнату меня напрягает. думал убрать перестенок + двери с корридора, и малость ее сокартить за счет дополнительного санузла возле стены. %) относительно окна на стене у камина - если его убрать то сдается мне будет темновато, учитывая что рядом очень светлая часть. хотя это вариант. террасу хочу застелить доской. крыша и облицовка -- основные вопросы, терзающие душу. базовый вариант вижу - штукатурка + камень, крыша - битумная черепица. сайдинг и блокхаус - не в обиду поклонникам, но кажется что относительно недорогой вариант, снижает товарный вид. З.Ы. а процесс пошел... Посилання на коментар Поділитися на інших сайтах More sharing options...
teninch Опубліковано: 15 серпня 2007 Поділитись Опубліковано: 15 серпня 2007 Чем мне понравился ваш проект- заявленным подходом. Очевидно желание уйти от квартирных неудобств и получить роскошь больших и светлых комнат, большого и торжественного зала, отсутствие занятого туалета, уютной террасы ( надеюсь закат солнца оттуда виден), отсутствие замороченности. Дом требует дорогой отделки и хорошего дизайна. Но… мне кажется не все продумано. 1.гардероб на входе заменить тумбочкой можно, если вы не собираетесь ни кого не приглашать в гости. Когда они повесят все свои шубы и снимут обувь, наблюдал не раз, вид жуткий, а театр, сами знаете, начинается с вешалки…Да что там гости , у многих жен столько обуви, отдельный контейнер нужен… 2. У вас … мало санузлов. Если кто-то в сауне парится, а дети заняли свой (они это любят), то вы опять в очереди. За что спрашивается боролись… 3. санузел на 2 этаже 12 метров – просто мастер санузел, а вход в него через прачечную! И как это будет выглядеть? Имхо –вид потерян. Предложение –плафон в гардеробе 2 этажа сделать витражом в технике тиффани. Теперь к отделке. Мой дом немного перекликается с вашим. В оригинале у меня облицовка стены – лицевой кирпич плюс дерево. На вопрос, чем можно заменить дерево ( у нас возле моря большая влажность) без потери качества, был ответ –штукатуркой. Все иное-снижает эффект. Крышу буду крыть гибкой черепицей. Как вы думаете обезопасить дом ? Посилання на коментар Поділитися на інших сайтах More sharing options...
banker Опубліковано: 16 серпня 2007 Автор Поділитись Опубліковано: 16 серпня 2007 с добрым утром. это вы правильно угадали, закат именно с террасы 1. принимается, хотя вешалка и тумбочка это было кодовое название, а на самом деле планировалось на изрядное кол-во посетителей. 2. принимается. посему решил санузел на 1-м этаже изолировать от сауны с душевой. а на втором решил добавить еще один (по -моему выше уже писл об этом) 3. это тоже решил. вход будет из коридора. добился за счет выноса лестницы наружу дома ( а не внутрь как на рисунке) 4. про безопасность - 2. ставни на окна, деревянные с закрытием изнутри 3. роллеты на балконные двери? пока очень актуален вопрос дизайна участка -- кто подкиент вменяемых специалистов? Посилання на коментар Поділитися на інших сайтах More sharing options...
homeauto.com.ua Опубліковано: 16 серпня 2007 Поділитись Опубліковано: 16 серпня 2007 пока очень актуален вопрос дизайна участка -- кто подкиент вменяемых специалистов? 2Banker: пока Вы будете искать ландшафтного дизайнера было бы неплохо общими усилиями немного пофантазировать и набросать примерный дизайн (схему обустройства) Вашего участка. Один профессиональный дизайнер хорошо, но и толпа учасников форума "Строим дом" - тоже не плохо. Потом Вы эти фантазии сможете обговорить с дизайнером. Такая дискуссия также будет полезна для учасников и посетителей форума. P.S. Конечно при условии, что у Вас есть желания вынести эту тему на суд публики. Посилання на коментар Поділитися на інших сайтах More sharing options...
banker Опубліковано: 17 серпня 2007 Автор Поділитись Опубліковано: 17 серпня 2007 P.S. Конечно при условии, что у Вас есть желания вынести эту тему на суд публики. огромное!!! проверю фоты участка, и выложу для обсуждения. Посилання на коментар Поділитися на інших сайтах More sharing options...
WhiteEagle Опубліковано: 21 серпня 2007 Поділитись Опубліковано: 21 серпня 2007 1. Как мне кажеться фактически нет хоз. помещений на такой большой дом. А где будет хранится различная утварь....? 2. Из сауны сразу вход в туалет и ванну не логично, ибо часть людей парится другая хочет по нужде. Необходимо разделить. Добавить предбанник и вход в санузел лучше, чтобы был один. Также возле сауны сделать открытый выход(или небольшую террасу) во двор например зимой очень приятно будет в снег плюхнуться или даже летом просто облится холодной водой. 3. Кухню можно отделить например стекляными дверьми раздвежными, когда идёт готовка пищи то араматы не будут ходить по дому, в тоже время если хочеться простора открыт двери будёт большой обьём и красота. 4. Судя по тому что закат солнца будет виден с террасы, смею предположить что восход сонца в доме будет наблюдать сауна, туалеты, ванна и лестница. 5. Топочную лучше сделать отдельно, а то изрядно выпившие гости в сауне могут и к котлу полезть, всякое бывает в результате могут быть проблемы. 6. 10 комната явно напрашивается на перепланировку. Идеи добавить туалет и сделать арку, вход в 11 сделать напротив санузла, за счёт этого 12 гардероб расширить до возможности установки гладильной доски. Стиральную машину можно установить в санузле или возле, спрятав например её в шкаф купе небольной. 7. Безопасность, ставни и ролеты, нужны скорее автоматические потому что руками всё это закрывать очень будет сложно. Посилання на коментар Поділитися на інших сайтах More sharing options...
Olesia Опубліковано: 22 серпня 2007 Поділитись Опубліковано: 22 серпня 2007 а сколько у вас человек будет жить? тут ребята в общем форуме спрашивали совет по лагерю на берегу моря :-D по-моему как раз сори, ничего против не имею, ехидничаю выбирая проект для себя (максимум 3 взрослых и 2 ребенка, пока что только 2 взрослых), я выбрала 200 квадратов, 4 комнаты + гостинная. с кем ни общалась, из живущих в домах, говорят, что от 150 до 200 это более чем достаточно. больше 200 - половина помещений будет пустовать. просто ИМХО Посилання на коментар Поділитися на інших сайтах More sharing options...
banker Опубліковано: 27 серпня 2007 Автор Поділитись Опубліковано: 27 серпня 2007 семья у меня не большая: 2+2. было бы море под домом, так я бы и лагерь построил, но нема. :-D пришел к выводу что общий размер 200 или 150 или 300 - это неправильный подход. отталкиваться нужно от удобства и пространства помещений. и думать на пару шагов вперед, даже не взирая на временные трудности с финансами, и прочее. все еще не видел дельных советов по дизайну участка. больше всего муляет то , что у меня голое поле, а хочеться отдыхать в тени деревьвев, насколько это реално посадить сосны, березы, но только так чтоб не ждать 20 лет пока вырастут. может еще чего посоветуете? Посилання на коментар Поділитися на інших сайтах More sharing options...
homeauto.com.ua Опубліковано: 27 серпня 2007 Поділитись Опубліковано: 27 серпня 2007 семья у меня не большая: 2+2. было бы море под домом, так я бы и лагерь построил, но нема. :-D Ну так смоделируйте кусочек моря возле своего дома... :-D все еще не видел дельных советов по дизайну участка. больше всего муляет то , что у меня голое поле, а хочеться отдыхать в тени деревьвев, насколько это реално посадить сосны, березы, но только так чтоб не ждать 20 лет пока вырастут. может еще чего посоветуете? Imho, легче купить землю в лесу и там построить дом. Определитесь в каком окружении хотите жить и попытайтесь смоделировать его. Если хочется воды - окружайте себя водой, зелени - зеленью, песка - песком, ... В конце-концов забацайте себе мини Дисней-Ленд на участке - будет оригинально. P.S. Когда выложите обещанные фотографии участка? Посилання на коментар Поділитися на інших сайтах More sharing options...
banker Опубліковано: 28 серпня 2007 Автор Поділитись Опубліковано: 28 серпня 2007 Imho, легче купить землю в лесу и там построить дом. как говорят некторіе люди - гуд пойнт, но как говорят другие люди - єто ш савсем разніе деньги. а если серьезно, кому-то єто может показаться глупостью, но хочеться и : а) иметь участко с хорошим видом на луг б) и чтб на нем росли деревья, но уже взросліе. конечно иметь участок в лесу єто самій что ни на есть дрим, но мест таких уже практически нет, по относительно разумной цене (до 3тіс/сотка). а если и есть, то километраж уже не тот. а фоті будут, как грил Остап, ждите. Посилання на коментар Поділитися на інших сайтах More sharing options...
banker Опубліковано: 3 вересня 2007 Автор Поділитись Опубліковано: 3 вересня 2007 все кто еще не успел оставить отзыв по старым эскизам, и не видя фотографий учатска потерпите до завтра. обещают выслать уже отредактированный проект, сов семи замеячаниями изложенными выше, а также выложу фоты, ибо поеду с геологами делать наализ участка, а также вынос в натуру. :-D Посилання на коментар Поділитися на інших сайтах More sharing options...
Chiara Опубліковано: 4 вересня 2007 Поділитись Опубліковано: 4 вересня 2007 Вгляделся вваш зал. где в углу стоит скромный аквариум, в котором незаметно плавает бегемот. 8) ... сорри за ОФФ - "морем" из предыдущих постов навеяло Посилання на коментар Поділитися на інших сайтах More sharing options...
Рекомендовані повідомлення
Створіть акаунт або увійдіть у нього для коментування
Ви маєте бути користувачем, щоб залишити коментар
Створити акаунт
Зареєструйтеся для отримання акаунта. Це просто!
Зареєструвати акаунтУвійти
Вже зареєстровані? Увійдіть тут.
Увійти зараз