Свеча Опубліковано: 14 серпня 2007 Поділитись Опубліковано: 14 серпня 2007 Народ, помогите пож с поиском проекта. Исходные запросы: 1 эт. : кухня-столовая (15 м) гостиная (не оч большая - до 30 м) кабинет (12-15м) санузел гостевой гараж. 2 эт. : 3спальни (в сред - 15м) санузел с ванной. Участок у нас расположен четко с юга на север, т.е. вход д.б. с юга. По расположению сторон света и комнат наиболее нравился проект homeplans.ru/projects/index.php?info=H-0734-3&analog=509380#wplan . Гараж на западе, санузлы на севере, куня-столовая север-восток, гостиная - юго-восток. Южная сторона затеняется беседкой (оч желательный элемент) Понравилась большая комната (оранжерея) над гаражом - хор место тусни детей, я бы туда еще и теннисный стол поставила). Присмотрелась. Длинный достаточно узкий коридор (даже холлом не назовешь), маленькие окна, по мне - слишком большие спальни наверху и совсем не нужный мне огромный цокольный этаж. Долго не нравились архетоновские проекты из-за мансардного этажа. (Не люблю острые углы над головой) Вопрос оказался решаемым - подниманием крыши. Оч понравился проект Jarikа (с позиции неск поднять крышу) www.archon.com.ua/index.php?act=12&sid=m4107a2c6e180b&lang=ua. Возникает проблема со стронами света. Этот проект лучше располагать входом на север? Склонна к варианту, подобному проекту Jarikа. Но чтоб можно было удачно расположить входом на юг. Подскажите, может кто встречал подобные проекты? Посилання на коментар Поділитися на інших сайтах More sharing options...
aaronbuni Опубліковано: 14 серпня 2007 Поділитись Опубліковано: 14 серпня 2007 www.homeplans.ru/projects/index.php?info=F-0577-0 а такой? Посилання на коментар Поділитися на інших сайтах More sharing options...
Свеча Опубліковано: 14 серпня 2007 Автор Поділитись Опубліковано: 14 серпня 2007 Забавно . Надо подумать. Интересно, что тоже с homeplans.ru. Посилання на коментар Поділитися на інших сайтах More sharing options...
aaronbuni Опубліковано: 14 серпня 2007 Поділитись Опубліковано: 14 серпня 2007 я его строю...ну почти такой Посилання на коментар Поділитися на інших сайтах More sharing options...
sevlad Опубліковано: 14 серпня 2007 Поділитись Опубліковано: 14 серпня 2007 маленькие окна, по мне - слишком большие спальни наверху и совсем не нужный мне огромный цокольный этаж. Долго не нравились архетоновские проекты из-за мансардного этажа. (Не люблю острые углы над головой) Вопрос оказался решаемым - подниманием крыши. Т.е маленькие окна и цоколь это проблема, а поднять крышу не проблема? :-D Класс Цоколь - вы все равно будете привязку к вашему участку у нас делать, пересчитывая фундамент под ваш участок - ну так и скажите архитектору что бы "засыпал землей" ненужные помещения. Хотя бы этого не делал...... зы. Покупать типовый проект в России больше чем за штуку зелени, непонятного качетсва..... Посилання на коментар Поділитися на інших сайтах More sharing options...
Свеча Опубліковано: 14 серпня 2007 Автор Поділитись Опубліковано: 14 серпня 2007 Т.е маленькие окна и цоколь это проблема, а поднять крышу не проблема? :-D Класс. Цоколь - вы все равно будете привязку к вашему участку у нас делать, пересчитывая фундамент под ваш участок - ну так и скажите архитектору что бы "засыпал землей" ненужные помещения. Хотя бы этого не делал...... зы. Покупать типовый проект в России больше чем за штуку зелени, непонятного качетсва..... Дык... Дилетанты мы. А цена самих смущает. (Было бы по цене польского, уже б, наверное, был на руках) Потому и медлю. Да и много нюансов в самом проекте. Мне кажется, что окна перепланировать не так просто. Я бы их вообще не так ставила. И др размеров. И большим он мне кажется. Хочется поэкономней (в плане самой постройки и последующей эксплуатации). Посилання на коментар Поділитися на інших сайтах More sharing options...
Свеча Опубліковано: 15 серпня 2007 Автор Поділитись Опубліковано: 15 серпня 2007 Странное дело. Начала в тупую просматривать планы польских проектов площадью от 150 (magazinproektov.com.ua - у них много польских в наличии) И вот что странно. Кухня практически везде слева от зимнего входа (с тамбуром), если я правильно понимаю - основного, с этой же стороны и въезд в гараж. Т.е. такой типаж отлично подходит для северной стороны. (терасса с летним входом - на южной). Или я что-то не так понимаю? Если у меня выход на юг, то не хотелось бы жариться на кухне на солнце, в то время как гостиная с кабинетом бы выходили на север Пока что лишь проект homeplans.ru/projects/index.php?info=H-0734-3&analog=509380#wplan соответствует предпочтениям по расположению комнат. Только таки он велик для нас (хотелось бы покомпактней) и слишком уж прямоугольный внутри (мне нравится в польских проектах решение обеденного места в полукруглом пространсте, как к примеру, в www.archon.com.ua/index.php?act=12&sid=m4107a2c6e180b&lang=ua. Люди, плиз, подскажите, как можно выйти из этой ситуации?! %) Посилання на коментар Поділитися на інших сайтах More sharing options...
Dron Опубліковано: 15 серпня 2007 Поділитись Опубліковано: 15 серпня 2007 Люди, плиз, подскажите, как можно выйти из этой ситуации?! %) Ищите архитектора, даёте ему картинки того что нравится и размеры комнат какие требуются, он это дело рисует и вы имеете на руках свой проект. Я собственно так и делал. Посилання на коментар Поділитися на інших сайтах More sharing options...
sevlad Опубліковано: 15 серпня 2007 Поділитись Опубліковано: 15 серпня 2007 Только таки он велик для нас (хотелось бы покомпактней) и слишком уж прямоугольный внутри (мне нравится в польских проектах решение обеденного места в полукруглом пространсте, как к примеру, в www.archon.com.ua/index.php?act=12&sid=m4107a2c6e180b&lang=ua. Люди, плиз, подскажите, как можно выйти из этой ситуации?! %) Ну так поставь этот проект гостиной на юг, в чем проблема? Будет вход с востока... не вижу проблем. Вход совсем не обязательно болжен быть напротив калитки... Сместишь калитку/ворота чуть правее дома. , в перед эркером озеро искуственое.. и все логично будет. зы. Рекомендую не просматривать тонны ерунды в инете, а помотреть что строят люди в форуме. 1. раз их выбрали - значит стоящие проекты 2. можно увидеть в реале что получишь 3. можно купить у одноклубника за полцены 4. они адаптированы под наши плиты (чаще всего). И т.д. Посилання на коментар Поділитися на інших сайтах More sharing options...
Свеча Опубліковано: 16 серпня 2007 Автор Поділитись Опубліковано: 16 серпня 2007 зы. Рекомендую не просматривать тонны ерунды в инете, а помотреть что строят люди в форуме. 1. раз их выбрали - значит стоящие проекты 2. можно увидеть в реале что получишь 3. можно купить у одноклубника за полцены 4. они адаптированы под наши плиты (чаще всего). И т.д. Дык! Золотыя слова. Именно этим и был второй этап! (Первым было копание в инете, пока добрые люди не подсказали сайт ) Именно это меня и привлекало: помимо того что я могу ЭТО увидеть в реале, так еще те, кто строили, наверняка порасскажут всяких нюансов и поделятся опытом . Типовой проект, пользующийся популярностью у людей, имеет кучу плюсов - он проверен, подправлен, и прочая. В инет полезла опять от безысходности А личный архитектор не привлекает с точки зрения финансов, и помимо того, нет гарантии, что он дока. Не хочется нашибать шишки на чужих ошибках. (Тем более, если это будет твой дом) Ну так поставь этот проект гостиной на юг, в чем проблема? Будет вход с востока... не вижу проблем. Вход совсем не обязательно болжен быть напротив калитки... Сместишь калитку/ворота чуть правее дома. , в перед эркером озеро искуственое.. и все логично будет. Попробую повертеть. Спасибо за ответы Хотя пока мне это не кажется удобным (Ширина нашего участка 30м, длина прим 70) Посилання на коментар Поділитися на інших сайтах More sharing options...
Gitan Опубліковано: 18 серпня 2007 Поділитись Опубліковано: 18 серпня 2007 А мне приглянулся проект homeplans.ru/projects/index.php?info=G-0734-0&analog=509380#wplan Подвал строить не позволяет высокий уровень грунтовых вод. Посилання на коментар Поділитися на інших сайтах More sharing options...
Свеча Опубліковано: 20 серпня 2007 Автор Поділитись Опубліковано: 20 серпня 2007 А мне приглянулся проект homeplans.ru/projects/index.php?info=G-0734-0&analog=509380#wplan Подвал строить не позволяет высокий уровень грунтовых вод. Ха! Так это тот же проект, что и homeplans.ru/projects/index.php?info=H-0734-3&analog=509380#wplan . Там разница небольшая. Вообще, мне он все так же нравится, но в соотношениями с реалиями, для нас он велик, в первую очередь. И слишком уж прямоугольный Если будете строить - поделитесь впечатлениями . Посилання на коментар Поділитися на інших сайтах More sharing options...
Gitan Опубліковано: 27 серпня 2007 Поділитись Опубліковано: 27 серпня 2007 Насчет больших спален на 2 эт, смотрите зеркальный проект. Там спальни поделены. www.homeplans.ru/projects/index.php?info=G-0734-0&mirr=1 А вообще спасибо за наводку на проект. Пока остановился на нем. Готов рассмотреть покупку проекта вскладчину. У нас на фирме есть лицензия на проектирование , так что печатей поставим сколько нужно на копии. Звонил в Киев. Хотят 5200 грн за этот проект. Можно в Росиии дешевле. У них скидка щас 10% Посилання на коментар Поділитися на інших сайтах More sharing options...
Свеча Опубліковано: 30 серпня 2007 Автор Поділитись Опубліковано: 30 серпня 2007 Насчет больших спален на 2 эт, смотрите зеркальный проект. Там спальни поделены. www.homeplans.ru/projects/index.php?info=G-0734-0&mirr=1 Да, я на него смотрела.)) А вообще спасибо за наводку на проект. Пока остановился на нем. ))) Готов рассмотреть покупку проекта вскладчину. У нас на фирме есть лицензия на проектирование , так что печатей поставим сколько нужно на копии. Звонил в Киев. Хотят 5200 грн за этот проект. Можно в Росиии дешевле. У них скидка щас 10% Оч интересная мысль. Я все еще копаюсь в проектах, и все-таки возвращаюсь к нему. Мне он казался большим, но все интересные небольшие польские проекты оказались прим такими же по площади (нижнего этажа). Они меньше за счет мансардного спального этажа. Но от мансарды, похоже, придется отказаться (муж - 1м85 см, он и так все люстры в хрущевках цепляет , на мансарду не соглашается))) Вопрос в срочности покупки - у нас пока не горит, и мы все еще не определились. Ждет ли это у вас? - Если реально, то этой осенью мы должны заложить фундамент. Возможный вариант - если вы таки купите, мы купим у вас копию за 50%. (Это для нас был бы оч хороший вариант, полная цена его мне не нравится . Но реально - все нужно обсудить в семейном кругу . Посилання на коментар Поділитися на інших сайтах More sharing options...
Gitan Опубліковано: 30 серпня 2007 Поділитись Опубліковано: 30 серпня 2007 Ответил в личку. Посилання на коментар Поділитися на інших сайтах More sharing options...
Gitan Опубліковано: 30 серпня 2007 Поділитись Опубліковано: 30 серпня 2007 Вот нарисовал свое видение проекта (ссылка устарела) Рисрвал с учетем перекрытия путотелыми плитами 6,028 и 3,58. Ну и свое видение планировки. Вход в дом южной стороны. Цоколь 1.2м, 1 эт - 3м. 2 эт - 2.8м Стены газобетон 40 см. (ссылка устарела) Лестница заводская 2720*1330*1050. (ссылка устарела) Нравится планировка. По крыше сомнения. Может и придумаю другую Буду рад советам, критике. Посилання на коментар Поділитися на інших сайтах More sharing options...
NP Опубліковано: 31 серпня 2007 Поділитись Опубліковано: 31 серпня 2007 посмотрите мой проект -тема По пр фирсова в осокорках. При подходящих грунтах легко добавить цоколь убрать туда котел и все дивайсы, а на образовавшейся площади...(по проекту высота фундамента 180, еще ряд блоков - будет 240, а это доп площадь 100м итого250 притом, что доп расходы на эти доп 100м-3000-уе) на 2 этаже можно сделать 4 комнаты- 2по 11,15,22, ну и я понял что вам нужно зеркало. Посилання на коментар Поділитися на інших сайтах More sharing options...
Gitan Опубліковано: 31 серпня 2007 Поділитись Опубліковано: 31 серпня 2007 Ваш проект не подходит. Мне нужна комната для бабушки на 1 эт. Цокольный этаж строить не могу и не хочу. Близко грунтовые воды. По дальнему концу участка течет вода после дождя. (ссылка устарела) (ссылка устарела) Посилання на коментар Поділитися на інших сайтах More sharing options...
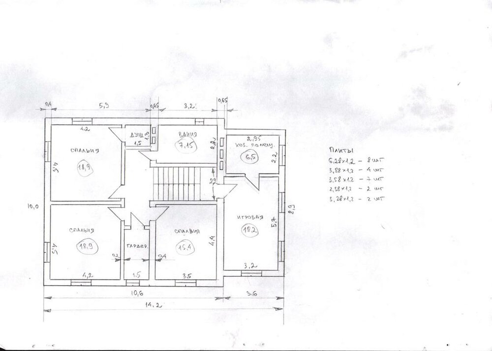
Свеча Опубліковано: 31 серпня 2007 Автор Поділитись Опубліковано: 31 серпня 2007 Вот нарисовал свое видение проекта ...... буду рад советам, критике. Если я правильно понимаю, вы передвинули лестницу, сделав спальню на 1-м этаже побольше. (Эт мне нравится. Мне как раз не нравилось, что р-р этой комнаты мал.) Но. Коридор (холлом его сложно назвать) стал еще длиннеее. И учли ли вы р-р лестницы? На исх. проекте, похоже, она не шире метра (я пыталась все перекинуть на милиметровку) У вашей, если я поняла - 1.33? А чем вам крыша не нравится? И еще, расскажите, если вы берете зеркальный вариант, сложно ли нам будет обратно перевернуть зеркало? ( :-D А не проще ли переворачивать зеркало от исходного и - чем грозит "выворот" инженерных сетей - и возможно ли такое?) Цоколь 1.2м, 1 эт - 3м. 2 эт - 2.8м Цоколь - 1.2 из-за мокрости участка? И, , нельзя ли прочертить размеры сторон комнат на плане? Посилання на коментар Поділитися на інших сайтах More sharing options...
Gitan Опубліковано: 31 серпня 2007 Поділитись Опубліковано: 31 серпня 2007 Вот нарисовал свое видение проекта ...... буду рад советам, критике. Если я правильно понимаю, вы передвинули лестницу, сделав спальню на 1-м этаже побольше. (Эт мне нравится. Мне как раз не нравилось, что р-р этой комнаты мал.) Но. Коридор (холлом его сложно назвать) стал еще длиннеее. И учли ли вы р-р лестницы? На исх. проекте, похоже, она не шире метра (я пыталась все перекинуть на милиметровку) У вашей, если я поняла - 1.33? А чем вам крыша не нравится? И еще, расскажите, если вы берете зеркальный вариант, сложно ли нам будет обратно перевернуть зеркало? ( :-D А не проще ли переворачивать зеркало от исходного и - чем грозит "выворот" инженерных сетей - и возможно ли такое?) Цоколь 1.2м, 1 эт - 3м. 2 эт - 2.8м Цоколь - 1.2 из-за мокрости участка? И, , нельзя ли прочертить размеры сторон комнат на плане? Рисовал с учетом прекоытия плитами определенного размера. 8 шт - 6.28м*1,2., 3,88*1,2-6 шт, 3,58*1,2-7 шт. 2,38*1,2-2 шт Лстница ЖБК, ширина 1м.05, площадка 1м. Итого - 2м ширина, длина 3,9 (с площадкой) Цоколь хотелось повыше, а итог получился исходя из соображений - перекрятие гаража песередине 2 эт. Для того, чтоб лестница была с одинаковыми пролетами. Холл длинный. Гм. Дело в том, что все определяют размеры плит. Двинать стены можно только на расстояние кратно 1.2м ПОэтому лестницу не сдвинешь. Выложить рисунки в размерами нет проблем. Вот только сканера своего нет. НАдо добавить и оять просить сканировать. По поводу зеркальности. Перерисовать зеркально не проблема. А вот с инженерными сетями я не сталкивался. Как инженер я понимаю как. но могут быть нюансы. мелочи. Не зная которых можно попасть на деньги. Хотя из того что я начитался за форумах расположение правитьное. А советы по отоплению , воде, газу давайте просить форумчан или заказывать профи. Посилання на коментар Поділитися на інших сайтах More sharing options...
Свеча Опубліковано: 31 серпня 2007 Автор Поділитись Опубліковано: 31 серпня 2007 Рисовал с учетом прекрытия плитами определенного размера. 8 шт - 6.28м*1,2., 3,88*1,2-6 шт, 3,58*1,2-7 шт. 2,38*1,2-2 шт Лестница ЖБК, ширина 1м.05, площадка 1м. Итого - 2м ширина, длина 3,9 (с площадкой) Я в размерах плит и их расположении пока еще о проекте не думаю... И про лестницу, видимо невнимательно читала Цоколь хотелось повыше, а итог получился исходя из соображений - перекрятие гаража песередине 2 эт. Для того, чтоб лестница была с одинаковыми пролетами. А вот про цоколь, да, я когда-то об этом уже задумывалась, чтобы перекрытие гаража совпало с лестничной площадкой, цоколь д.б. высоким. Но вот вопрос - а что внутри цоколя? не "дурное" ли пространство, т.к. цок этаж вроде как не нужен? И лишние затраты? Холл длинный. Гм. Дело в том, что все определяют размеры плит. Двигать стены можно только на расстояние кратно 1.2м ПОэтому лестницу не сдвинешь. Здесь длинну холла можно уменьшить, немного увеличив тамбур и сделав его больше прихожей (детям, бегающим туда-сюда будет лучше там бросать обувь (не зимой :-D )) а в конце холла сделать в кухню витражное окно. Выложить рисунки в размерах нет проблем. Вот только сканера своего нет. НАдо добавить и опять просить сканировать. А, может, и для общей ясности, - рисунок как и какие плиты собираетесь расположить по площади? (Если не оч сложно?) Посилання на коментар Поділитися на інших сайтах More sharing options...
NP Опубліковано: 31 серпня 2007 Поділитись Опубліковано: 31 серпня 2007 2gitan вместо гаража - комната для бабаушки 17 метров. а поповоду грунтов ( у меня такая же беда- угв весной 70см) может стоит сделать прослойку глины ? она обычно дешевле песка. Посилання на коментар Поділитися на інших сайтах More sharing options...
Gitan Опубліковано: 2 вересня 2007 Поділитись Опубліковано: 2 вересня 2007 www.mukhin.ru/catalogpr/p/j-208-1p.html Тот же проект, только от Мухина. Посилання на коментар Поділитися на інших сайтах More sharing options...
Gitan Опубліковано: 4 вересня 2007 Поділитись Опубліковано: 4 вересня 2007 И, , нельзя ли прочертить размеры сторон комнат на плане? С размерами. Посилання на коментар Поділитися на інших сайтах More sharing options...
Свеча Опубліковано: 5 вересня 2007 Автор Поділитись Опубліковано: 5 вересня 2007 Пасибки . Только вот с плитами не все понятно. 8шт 6,28х1,2 - понятно. А вот дальше... И проект от Мухина - как-то подозрительно. Еще один перепродавец, но почему дешевле? Посилання на коментар Поділитися на інших сайтах More sharing options...
Рекомендовані повідомлення
Створіть акаунт або увійдіть у нього для коментування
Ви маєте бути користувачем, щоб залишити коментар
Створити акаунт
Зареєструйтеся для отримання акаунта. Це просто!
Зареєструвати акаунтУвійти
Вже зареєстровані? Увійдіть тут.
Увійти зараз